콘크리트 부재도면의 예

Tekla Structures
수정됨: 7 3월 2025
2025
Tekla Structures

콘크리트 부재도면의 예

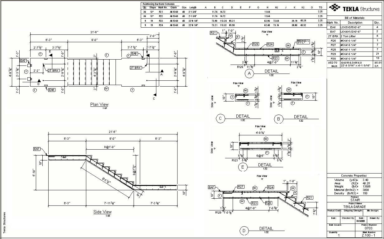
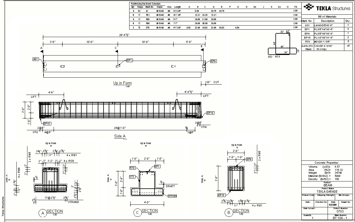
콘크리트 부재도면은 콘크리트 설계 및 시공에 사용되는 치수, 양식 작업 또는 철근 도면입니다. 캐스트 인 임베디드, 가장자리 모따기 및 하드 및 소프트 단열재를 표시합니다. 현장타설 구조물을 표시하는 콘크리트 부재 도면은 일반적으로 예를 들어 A1 또는 인치 표준 크기 24"x36"와 같은 큰 시트 크기를 사용합니다. 프리캐스트 구조를 표시하는 도면은 일반적으로 예를 들어 A3 또는 인치 표준 크기 11"x17"와 같은 더 작은 시트 크기를 사용합니다.

콘크리트 부재 및 캐스트 인 임베디드(콘크리트 부재에 추가된 철골 부재 또는 어셈블리)의 콘크리트 부재도면만 생성할 수 있습니다. 콘크리트 부재도면은 또한 철골 부재의 볼트나 용접부를 표시합니다. 콘크리트 부재의 용량 및 중량 정보는 콘크리트 부재 내부에 절단부가 있는 경우에도 정확합니다.

콘크리트 부재도면 생성에 대한 자세한 내용을 보려면 아래 링크를 클릭하십시오.

Tekla Structures 도면 빠른 시작

제작 도면 생성

AI 및 클라우드 컬렉션을 사용하여 제작 도면 생성(미리 보기)

빠른 실행을 통해 단품도면, 조립도면 또는 콘크리트 부재도면 생성

마스터 도면 카탈로그에서 저장된 설정을 사용하여 단품, 조립 및 콘크리트 부재도면 생성

마스터 도면 카탈로그에서 규칙 집합 또는 마법사를 사용하여 도면 생성

자동도면 생성

콘크리트 부재도면 속성에 대한 자세한 내용은 콘크리트 부재도면 속성을 참조하십시오.

콘크리트 부재도면의 예

반전된 T 보의 철근 도면 및 결합 구조:

보용 코벨 또는 플레이트를 제외한 외부 기둥의 철근 도면 및 결합 구조:

계단참을 포함한 계단의 철근 도면 및 결합 구조:

도움이 되었습니까?
전송
이전
다음