Tekla Structures 도면 빠른 시작
Tekla Structures 도면을 처음 사용하는 경우 본 문서를 읽으십시오.
다음을 배울 수 있습니다.
-
Tekla Structures 도면에 고유한 사항 및 도면에 포함되는 항목
-
도면을 생성하기 전에 할 일
-
환경에서 사전 정의된 설정을 사용하여 첫 번째 프로젝트에서 도면을 생성하는 방법
-
도면 모드에서 생성된 도면을 수동으로 수정하는 방법
자세한 내용을 보려면 파란색 링크를 클릭하십시오. 다음은 링크의 예입니다.
Tekla Structures 도면 기본 사항
최신 도면
다음 이유 때문에 Tekla Structures도면은 항상 최신 상태를 유지합니다.
-
도면에 표시된 빌딩 객체는 모델에서 생성된 모델 객체와 정확하게 동일합니다. 도면에서 표시를 변경할 수 있지만 빌딩 객체의 지오메트리나 위치를 변경하거나 빌딩 객체를 삭제할 수는 없습니다. 빌딩 객체를 변경하는 모든 작업은 모델에서 이루어집니다.
-
도면에 있는 객체는 대부분 연결되어 해당 모델 객체가 변경될 때 자동으로 업데이트됩니다. 예를 들어 모델 객체의 크기를 조정하면 관련된 치수점이 도면에서 해당하는 객체와 함께 이동하고, 치수가 재계산되고, 관련 데이터가 마크에서 업데이트됩니다. 도면에서 수동으로 변경한 사항은 사라지지 않습니다. 치수점이 이동하지 않는 경우에는 빌딩 객체와 연결되지 않은 것입니다.
도면 객체, 뷰 및 도면 레이아웃
도면 객체는 선택한 설정에 따라 선택한 도면 레이아웃에 배치되는 도면 뷰 안에 구성됩니다.
-
도면 객체에는 빌딩 객체(부재, 볼트, 용접, 모따기, 철근, 표면처리 등), 주석 객체(마크, 메모, 치수, 텍스트, 링크로 연결된 객체, 참조 객체 등), 스케치 객체(선, 직사각형, 클라우드, 원 등)가 포함됩니다.
이러한 객체는 모두 조정할 수 있습니다.
몇 가지 예로 빌딩 객체, 치수, 마크, 텍스트 및 클라우드가 있습니다.

-
도면 뷰는 도면에 포함되도록 선택한 모델의 빌딩 객체 또는 영역을 담는 역할을 합니다. 도면 뷰 크기는 필요할 때 더 많은 내용이 들어가도록 자동으로 조정됩니다. 도면 뷰는 여러 방향(상단, 정면, 후면, 하단) 또는 횡단면에서 빌딩 객체를 표시할 수 있습니다. 뷰 깊이, 스케일 등의 뷰 설정은 조정할 수 있습니다.
입면 뷰 및 상세 뷰가 있는 기본도면의 예:

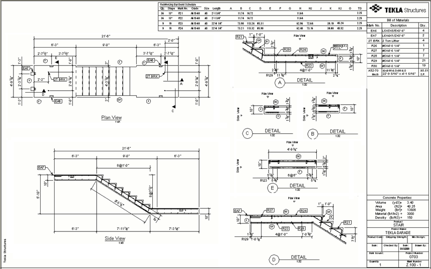
2개의 메인 뷰와 2개의 상세 뷰가 있는 계단 및 계단참의 결합된 형상 및 철근 도면의 예:

메인 뷰와 단면 뷰가 있는 보 조립도면의 예:

-
도면 레이아웃은 다음을 정의합니다.
-
테이블 집합(리비전 테이블, 제목 블록, 재질 목록, 재질 명세서, 일반 참고 사항 포함)
테이블의 데이터는 모델 데이터에서 직접 파생됩니다. 템플릿 편집기에서 테이블을 생성하고, 도면 레이아웃에서 테이블을 추가하고, 레이아웃 편집기에서 레이아웃 설정을 조정할 수 있습니다.
다음은 일반적인 제작 도면 레이아웃의 예입니다.

(1) 도면 프레임과 가장 바깥쪽 뷰 사이의 여백
(2) 뷰 간 간격
(3) 상단 뷰
(4) 정면 뷰
(5) 단면 뷰 A-A 및 B-B
(6) 도면 프레임
(7) 키 플랜
(8) 재질 목록
(9) 리비전 테이블
(10) 도면 제목 블록
(11) 접힘 표시
사전 정의된 도면 설정
환경에는 여러 레벨에서 다양한 용도에 적합한 사전 정의된 도면 설정이 포함되어 있습니다.
도면을 처음 생성할 때 사용하기에 가장 적합한 사전 정의된 도면 설정을 선택하기만 하면 됩니다.
도면 레벨 설정은 사용되는 레이아웃도 정의한다는 점에 유의하십시오.
이러한 설정을 수정하고 이후 도면을 위해 사용자 고유의 설정 파일을 저장할 수 있습니다.
다음은 기본도면의 도면 설정 목록의 예입니다.

Tekla Structures에서 도면을 생성하기 전에
-
프로젝트의 어느 단계에서나 도면을 생성할 수 있지만 재작업을 최소화하려면 최대한 상세하고 작성하고 도면 생성 전에 넘버링을 완료해야 합니다. 넘버링은 단품도면, 조립도면 및 콘크리트 부재도면을 생성하기 위한 기본 요건입니다.
-
모델의 객체 분류 및 이름 지정이 필터링과 일치하는지 확인합니다. 회사 규칙을 따릅니다.
-
모델에서 기본도면에 필요한 모든 뷰를 생성합니다. 기본도면 뷰의 방향과 내용은 모델 뷰와 동일합니다. 예를 들어, 설치 입면 뷰 또는 바닥 평면도 뷰를 생성합니다. 두 점을 사용하여 모델 뷰에 작업 영역을 맞추고 도면에 표시할 영역을 선택하는 것이 좋습니다.
-
기본도면에서 사용할 뷰 깊이를 결정합니다. 효율적이고 투명한 작업공정을 위해 초기 모델 뷰에서 원하는 뷰 깊이를 설정합니다. 도면에는 모델의 뷰에 정의된 깊이가 사용됩니다.
-
사용할 사전 정의된 설정과 도면 레이아웃을 결정합니다. 적합한 기본 설정과 환경에서 사용 가능한 레이아웃을 선택합니다.
기본도면 생성
기본도면 수정
도면 모드에서 도면을 수동으로 수정하여 원하는 결과를 얻습니다.
결과가 만족스러우면 이 도면을 다른 비슷한 모델 내용의 도면 생성용 템플릿으로 사용합니다. 이후 프로젝트에서 현재 프로젝트의 도면을 템플릿으로 사용할 수도 있습니다.
다음은 기초 설계 도면의 예입니다.
도면을 전체 크기로 보려면 여기를 마우스 오른쪽 버튼으로 클릭하고 다른 브라우저 창에서 PDF 도면을 여는 옵션을 선택합니다.

(1) 그리드 치수
(2) 부재 마크
(3) 단면 마크 A-A, B-B, C-C
(4) 수동 치수
(5) 단면 뷰 A-A, B-B, C-C
(6) 철근 그룹 마크
(7) 풀아웃 그림 포함 철근 마크
(8) 레벨 마크
(9) 리비전 테이블
(10) 도면 제목 블록 테이블
(11) 도면 프레임 및 여백
프리캐스트 제작 도면 생성
이번이 첫 번째 프로젝트이므로 사용자 환경에서 사전 정의된 설정을 사용하여 프리캐스트 제작 도면을 생성한 후 필요에 따라 도면 모드에서 수동으로 도면을 수정하는 것이 좋습니다.
콘크리트 부재도면에 대한 자세한 내용은 제작 도면 생성 및 콘크리트 부재도면 속성을 참조하십시오.
프리캐스트 제작 도면 수정
도면 모드에서 프리캐스트 제작 도면을 수동으로 수정하여 원하는 결과를 얻습니다.
결과가 만족스러우면 이 도면을 유사한 콘크리트 부재에 대한 도면을 생성하기 위한 템플릿으로 사용할 수 있습니다.
다음은 콘크리트 부재 거푸집 도면의 예입니다.
도면을 전체 크기로 보려면 여기를 마우스 오른쪽 버튼으로 클릭하고 다른 브라우저 창에서 PDF 도면을 여는 옵션을 선택합니다.

(1) 연결 메모
(2) 자동으로 생성된 3D 뷰
(3) 기호(무게중심)
(4) 선
(5) 텍스트
(6) 도면 2D 라이브러리 또는 이미지에서 2D 상세
(7) 풀아웃 그림에 대한 그래픽 필드가 있는 철근 굽힘 일정
(8) 테이블 헤더 행, 테이블 내용 행, 총 철근 중량 행 및 총 콘크리트 부재 중량 합계 행이 있는 재질 목록 테이블
(9) 히든선이 있는 리세스
(10) 콘크리트 부재
(11) 임베디드 부재/철근
(12) 자동으로 생성된 전체 치수
(13) 자동으로 생성된 리세스 치수
(14) 자동으로 생성된 필터 치수
(15) 거푸집 정면 뷰
(16) 단면 마크 A-A
(17) 부재 윤곽
(18) 치수 태그
(19) 자동으로 생성된 단면 뷰 A-A
(20) 풀아웃 그림 포함 철근 마크
(21) 철근 그룹 마크
(22) 철근
(23) 철근 정면 뷰
(24) 철근 그룹 치수
(25) 상세 마크
(26) 상세 뷰
(27) 도면 제목 블록 테이블
(28) 테이블 내 속성(Tekla Corporation) 및 고정 텍스트(제품 이름)
(29) 리비전 테이블
(30) 테이블 내 이미지
(31) 도면 프레임 및 여백
철골 제작 도면 생성
철골 제작 도면 수정
도면 모드에서 철골 제작 도면을 수동으로 수정하여 원하는 결과를 얻습니다.
결과가 만족스러우면 이 도면을 비슷한 어셈블리에 대한 도면 생성 시 템플릿으로 사용할 수 있습니다.
다음은 기둥 조립도면의 예입니다.
도면을 전체 크기로 보려면 여기를 마우스 오른쪽 버튼으로 클릭하고 다른 브라우저 창에서 PDF 도면을 여는 옵션을 선택합니다.

(1) 그리드 위치 테이블은 모델에서 어셈블리가 어느 그리드선에 위치하는지 알려줍니다.
(2) 자동으로 생성된 단면 A-A, 수동 마크 및 치수
(3) 용접 마크 모델링
(4) 부재 마크
(5) 단면 마크 A-A, B-B, C-C
(6) 정면 뷰
(7) 볼트 마크
(8) 볼트
(9) 기둥 C/54
(10) 기둥 윤곽
(11) 수동 단면 마크 C-C단면 뷰 없음). 식별자 C-C는 이 단면이 단면 뷰가 있는 C-C 단면과 동일하다는 것을 나타냅니다.
(12) 자동으로 생성된 단면 C-C, 수동 마크 및 치수
(13) 상단 뷰
(14) 다른 부재로 가려진 볼트, 플레이트 및 마크
(15) 도면 프레임 및 여백
(16) 리비전 테이블
(17) 도면 제목 블록
(18) 도면에 있는 메인 부재의 총 수를 나타내는 취소선 테이블
(19) 재질 목록 테이블
(20) 치수: 대부분의 치수는 자동 통합 치수입니다. 단면 뷰 치수는 수동입니다.
(21): 자동으로 생성된 단면 B-B, 수동 마크 및 치수























