キャスト ユニット図の例

Tekla Structures
変更済み: 7 3月 2025
2025
Tekla Structures

キャスト ユニット図の例

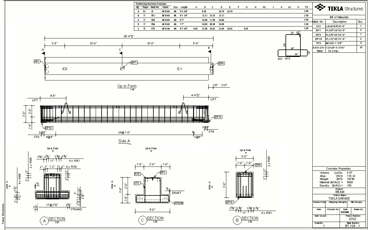
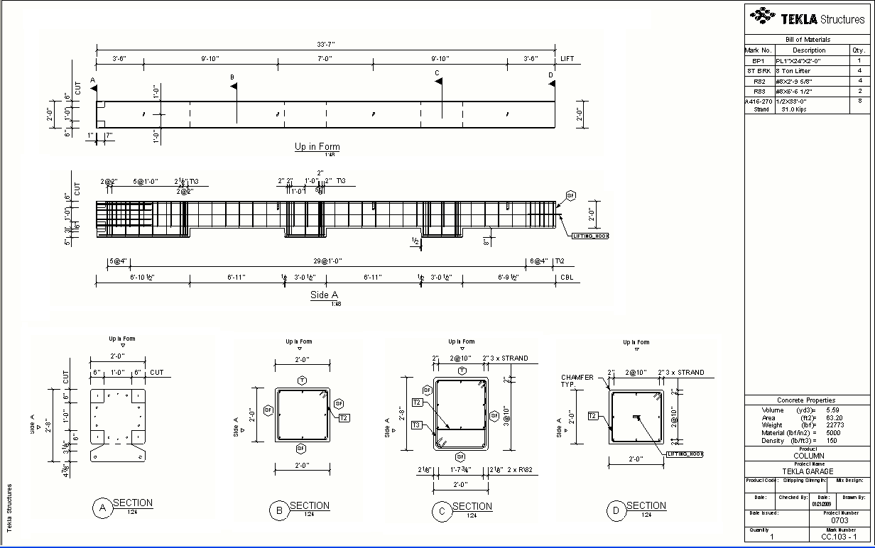
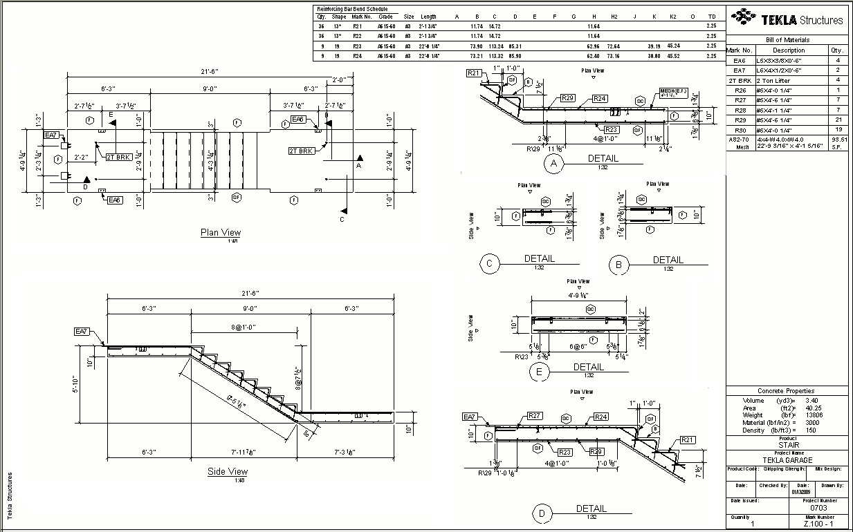
キャスト ユニット図は、コンクリート設計および製造で使用される寸法、型枠、または配筋図面です。キャスト ユニット図では、鋳込み埋込み材、面取り、ハード断熱材、およびソフト断熱材が表示されます。現場打ちのコンクリート構造を示すキャスト ユニット図には、大きい用紙サイズ (A1 やインペリアル標準サイズ 24" x 36" など) を使用するのが一般的です。工場製作されるプレキャスト構造を示す図面には、小さめの用紙サイズ (A3 やインペリアル標準サイズ 11" x 17" など) を使用するのが一般的です。

コンクリート部材および鋳込み埋込み材 (キャスト ユニットに追加する鋼製部材または製品) についてのみ、キャスト ユニット図を作成できます。キャスト ユニット図では、鋼製部材のボルトと溶接も表示できます。キャスト ユニット内部にカットがあっても、キャスト ユニットの体積と重量に関する情報は正確に維持されます。

キャスト ユニット図の作成方法の詳細については、以下のリンクをクリックしてください。

初めての Tekla Structures 図面

製作図の作成

AI とクラウド コレクションを使用した製作図の作成 (プレビュー)

クイック起動を使用した単品図、製品図、またはキャスト ユニット図の作成

マスター図面カタログにおける保存された設定を使用した単品図、製品図、キャスト ユニット図の作成

マスター図面カタログにおけるルール セットまたはウィザードを使用した図面の作成

自動図面作成を作成する

キャスト ユニット図のプロパティの詳細については、「キャスト ユニット図のプロパティ」を参照してください。

キャスト ユニット図の例

逆 T 梁の結合された形状と鉄筋図:

梁のハンチやプレートを使用していない外部柱の接合方式と鉄筋図:

踊り場のある階段の結合された形状と鉄筋図。

役に立ちましたか?
前へ
次へ