Beispiele für Zusammenbauzeichnungen

Tekla Structures
Geändert: 7 März 2025
2026
Tekla Structures

Beispiele für Zusammenbauzeichnungen

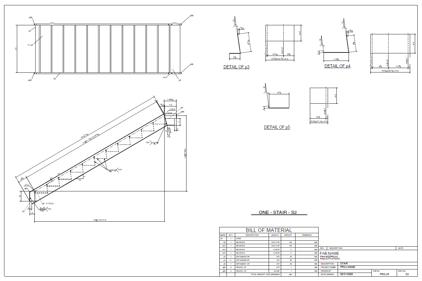
Zusammenbauzeichnungen sind normalerweise Werkstattzeichnungen, die alle zur Herstellung einer Baugruppe benötigten Informationen beinhalten. Eine Baugruppe besteht in der Regel aus einem Hauptteil und Nebenteilen. Die Nebenteile werden mit einem Hauptteil verschweißt oder verschraubt. Für Zusammenbauzeichnungen werden normalerweise größere Blattgrößen verwendet als für Einzelteilzeichnungen, zum Beispiel A3 oder A2.

Klicken Sie auf die untenstehenden Links, um mehr über das Erstellen von Zusammenbauzeichnungen zu erfahren:

Schnellstart mit Tekla Structures-Zeichnungen

Fertigungszeichnungen erstellen

Fertigungszeichnungen mit KI-Cloud-Fertigungszeichnungen erstellen (Preview)

Erstellen von Einzelteil-, Zusammenbau- oder Bauteilzeichnungen über den Schnellstart

Erstellen von Einzelteil-, Zusammenbau- und Bauteilzeichnungen im Master-Zeichnungskatalog mit Hilfe von gespeicherten Einstellungen

Erstellen von Zeichnungen im Master-Zeichnungskatalog mit Hilfe von Regelsätzen oder Assistenten

Erstellen von Zeichnungen mit dem Zeichnungsassistenten

Weitere Angaben zu den Eigenschaften von Zusammenbauzeichnungen finden Sie unter Eigenschaften Zusammenbauzeichnung.

Beispiele für Zusammenbauzeichnungen

Zusammenbauzeichnung für einen Träger:

Zusammenbauzeichnung für eine Treppe:

Zusammenbauzeichnung für ein Geländer:

Fanden Sie das hilfreich?
Absenden
Zurück
Weiter