Ejemplos de dibujos de conjunto

Tekla Structures
Modificado: 7 Mar 2025
2026
Tekla Structures

Ejemplos de dibujos de conjunto

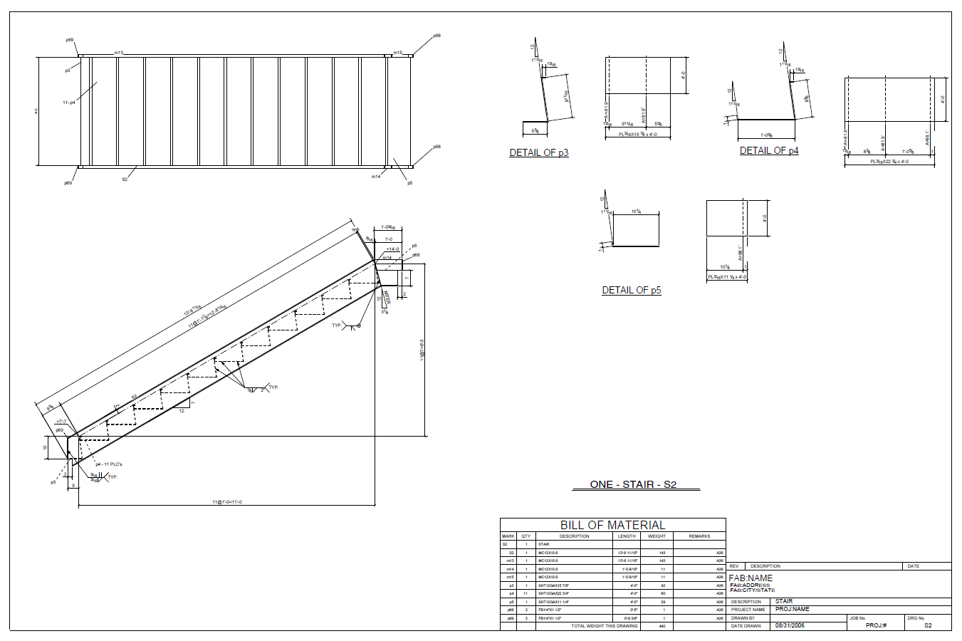
Los dibujos de conjunto normalmente son dibujos de taller que muestran la información de fabricación para un conjunto. En la mayoría de casos, un conjunto consta de una parte principal y varias partes secundarias. Las partes secundarias están atornilladas o soldadas a una parte principal. Los dibujos de conjunto utilizan normalmente tamaños de hoja mayores que los dibujos de parte, por ejemplo A3 o el tamaño imperial estándar de 11" x 17".

Para obtener más información sobre la creación de dibujos de conjunto, haga clic en los siguientes enlaces:

Introducción rápida a los dibujos de Tekla Structures

Crear dibujos de fabricación

Crear dibujos de fabricación utilizando IA y colecciones en la nube (Preliminar)

Crear dibujos de parte, conjunto o unidad de colada usando Inicio rápido

Crear dibujos de parte, conjunto y unidad de colada utilizando configuraciones guardadas en la Base de datos dibujos maestros

Crear dibujos utilizando conjuntos de reglas o asistentes en la Base de datos dibujos maestros

Crear Asistentes Dibujos

Para obtener detalles sobre las propiedades del dibujo de conjunto, consulte Propiedades de dibujo de conjunto

Ejemplos de dibujos de conjunto

Dibujo de conjunto de viga:

Dibujo de conjunto de escalera:

Dibujo de conjunto de barandilla:

¿Le ha resultado útil?
Enviar
Anterior
Siguiente