Examples of assembly drawings

Tekla Structures
Modified: 7 Mar 2025
2025
Tekla Structures

Examples of assembly drawings

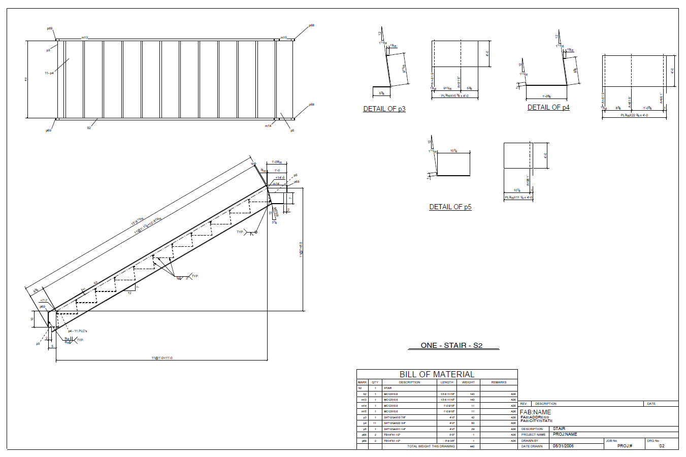
Assembly drawings are typically workshop drawings showing fabrication information for one assembly. In most cases, an assembly consists of a main part and secondary parts. The secondary parts are either welded or bolted to a main part. Assembly drawings usually use larger sheet sizes than single-part drawings, for example, A3 or imperial standard size 11" x 17".

Click the links below to find out more about creating assembly drawings:

Quick start to Tekla Structures drawings

Create fabrication drawings

Create fabrication drawings using AI and cloud collections (Preview)

Create single-part, assembly, or cast unit drawings through Quick launch

Create single-part, assembly and cast unit drawings using saved settings in Master drawing catalog

Create drawings using rule sets or wizards in Master drawing catalog

Create AutoDrawings

For details about assembly drawing properties, see Assembly drawing properties

Examples of assembly drawings

Beam assembly drawing:

Stairs assembly drawing:

Rail assembly drawing:

Was this helpful?
Submit
Previous
Next