改进了图纸自动化 - 更好地复制和更新视图和尺寸
Tekla Structures 2025 在图纸复制和更新方面进行了改进,特别是在放置尺寸和图纸视图方面。
- 视图放置逻辑已得到改进,防止视图重叠、错位以及视图放置在图纸边框之外。现在,图纸中的视图放置方式与模板图纸中的放置方式相似。此外,现在还沿袭剖面图的相对位置。以前存在很多视图重叠问题以及视图放置在图纸之外的情况,导致需要额外的工作来清理图纸。
- 尺寸放置逻辑以及避免尺寸与其他文本重叠的机制已经得到改进,现在已复制图纸中的尺寸放置方式与模板图纸中的放置方式相似。图纸更新时的螺栓对象尺寸逻辑也得到了改进。以前,尺寸并不总是按照模板图纸中使用的原始放置模式放置在已复制图纸中。当必须将尺寸移动到适当位置时,这会增加额外的工作。
由于图纸复制和更新方面得到了改进,以下Tekla Structures功能现在可以更可靠地运行并获得更好的效果:
- 制造图纸创建中的智能创建
- 通过文档管理器复制
- 模型更改导致的通用图纸更新行为
改进示例
要查看完整尺寸的图像,请单击每张图像下方的全尺寸图像链接。您也可以右键单击图像并选择适当的命令在新选项卡上打开图像。
示例 1a:之前
尺寸次序不正确,尺寸线之间的距离不规则。

示例 1b:之后
尺寸次序正确,尺寸线之间的间隔规则。

示例 2a:之前
主视图和剖面图重叠。

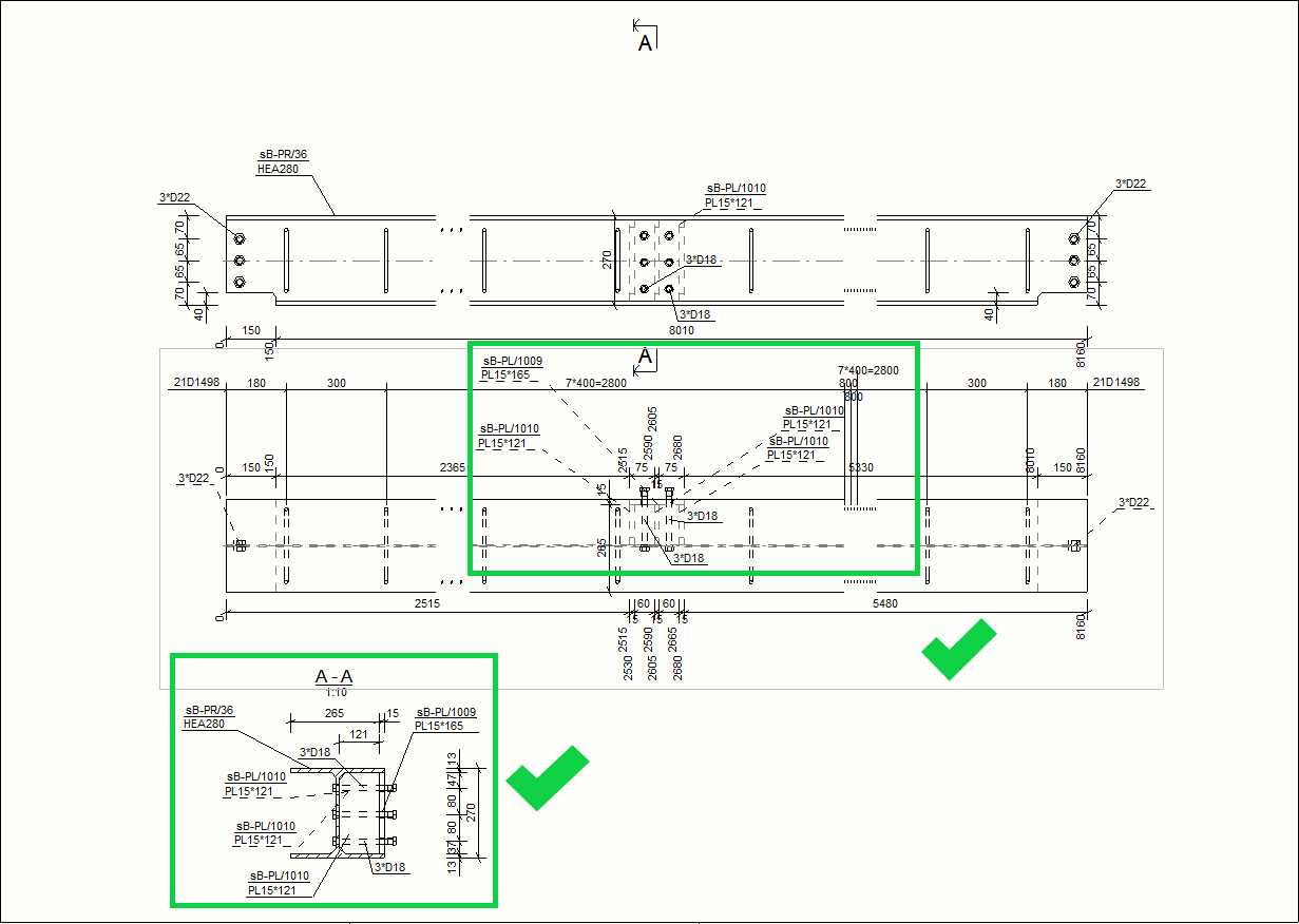
示例 2b:之后
视图对齐放置,不发生重叠。

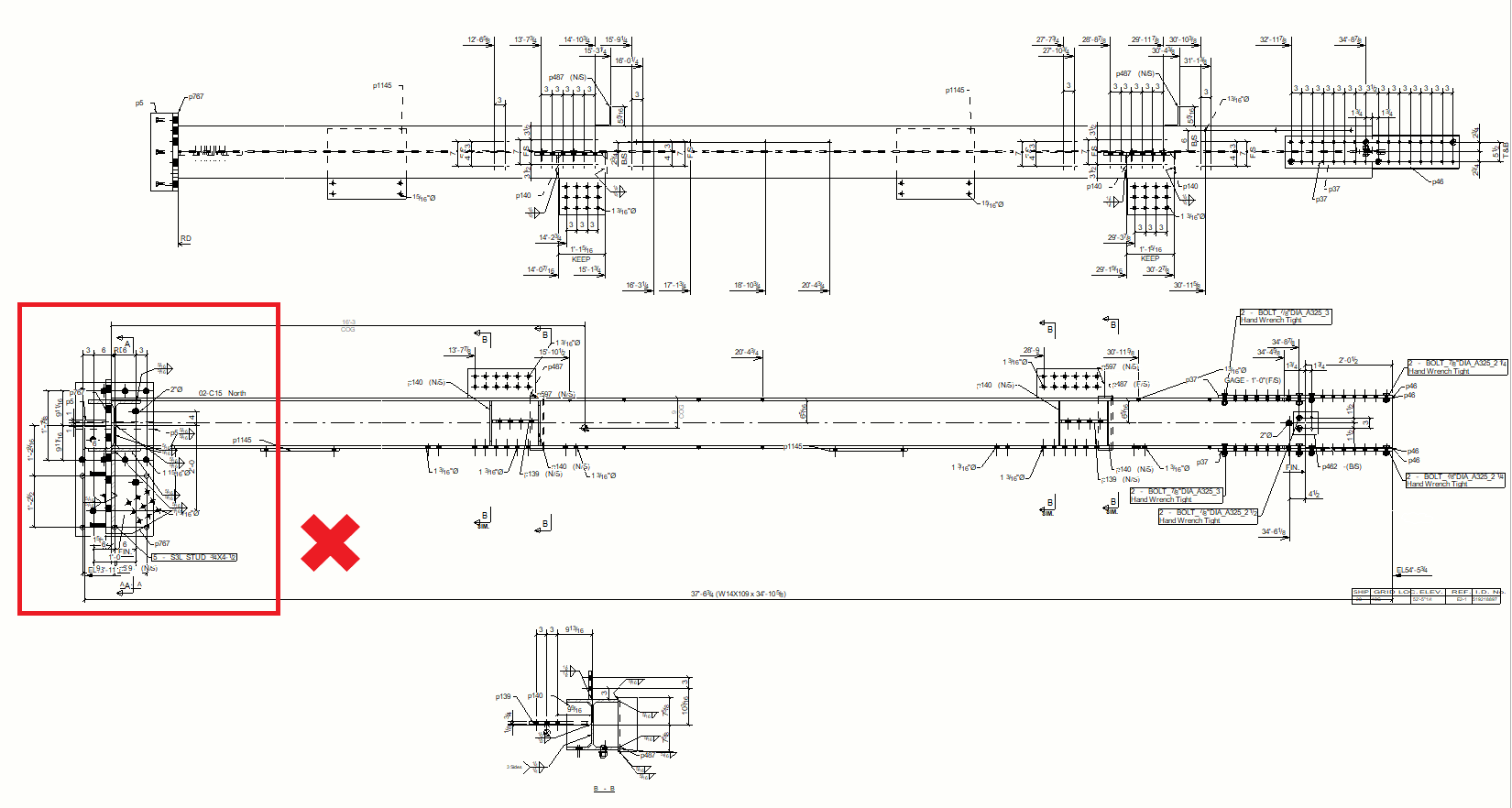
示例 3a:之前
尺寸次序不正确,尺寸线之间的间隔不规则。

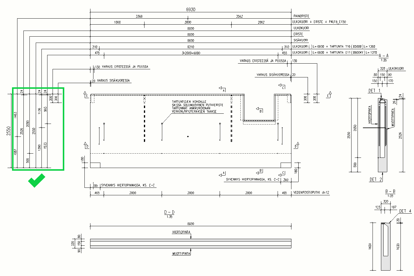
示例 3b:之后
尺寸次序正确,尺寸线之间的间隔规则。

示例 4a:之前
尺寸次序不正确,并且一些标记与其他对象重叠。

示例 4b:之后
尺寸次序正确,并且标记放置不重叠。

复制和更新方面的其他改进
- 现在,复制时可以更好地保留锁掉尺寸。
- 图纸更新和图纸复制中半径尺寸的处理已得到改进。
- 以前,在已复制的图纸视图中,手动创建的钢筋对象或埋件尺寸在某些情况下可能没有关联。此问题现已修正。
- 在复制中,细部视图不再与视图中不存在的对象相关联。