Tekla Structures 图纸快速入门
如果您不熟悉 Tekla Structures 图纸,请阅读这篇文章!
您将学习:
-
Tekla Structures 图纸特有的内容以及图纸中包含的内容
-
创建任何图纸之前的准备工作
-
如何使用环境中的预定义设置在第一个工程中创建图纸
-
如何在图纸模式下手动修改已创建的图纸
单击蓝色链接以了解更多信息。这是一个示例链接。
Tekla Structures 图纸的基础知识
不需更新的图纸
Tekla Structures 图纸始终是最新的,因为:
图纸对象、视图和图纸布置
图纸对象 组织在图纸视图 内部,图纸视图根据选定的设置放置在选定的图纸布置 中:
-
图纸对象包括建筑对象(零件、螺栓、焊缝、折角、钢筋、表面处理等)、注释对象(标记、注释、尺寸、文本、链接的对象、参考对象等)和草图对象(线、矩形、云、圆等)。
所有这些对象都是可调整的。
建筑对象、尺寸、标记、文本和云的一些示例:

-
图纸视图充当建筑对象的容器,或已选择要包含在图纸中的模型区域的容器。图纸视图的尺寸会根据需要自动调整以适合更多内容。图纸视图可以从不同方向(顶部、前面、后面、底部)显示建筑对象,或作为剖面图。视图设置(如视图深度和比例)是可调整的。
具有安装标高视图和细部视图的 GA 图纸的示例:

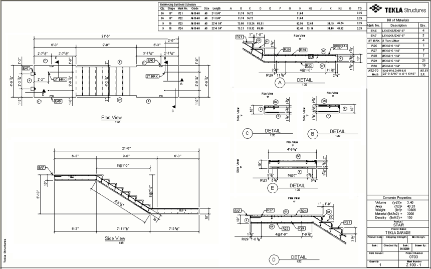
具有两个主视图和几个细部视图的带平台的楼梯组合形状和钢筋图纸示例:

具有一个主视图和一个剖面图的梁构件图的示例:

-
图纸布置定义:
-
表格组,包括修订表格、标题块、材料列表、材料清单和整体注释。
下面是典型的制造图纸布置的示例:

(1) 图纸边框与最外侧视图之间的边距
(2) 视图之间的间距
(3) 顶视图
(4) 前视图
(5) 剖面图 A-A 和 B-B
(6) 图纸边框
(7) 索引平面图
(8) 材料列表
(9) 修订表格
(10) 图纸标题块
(11) 折叠符号
预定义的图纸设置
您的环境在多个级别上包含适用于各种目的的预定义图纸设置。
首次创建图纸时,您所要做的就是 选择最合适的预定义图纸设置 来使用。
请注意,图纸级别设置还定义了使用哪种布置。
您可以修改这些设置,并保存自己的设置文件以用于将来的图纸。
以下是 GA 图纸中的图纸设置列表的示例:

在 Tekla Structures 中创建图纸之前
创建整体布置图
修改 GA 图纸
在图纸模式下,手动修改图纸以获得所需的结果。
当您对结果满意时,可以将此图纸用作用于创建其他类似模型内容的图纸的模板。您也可以将当前工程中的图纸用作未来工程中的模板。
下面是基础平面图的示例。
要查看完整尺寸的图纸,请右键单击这里并选择可在另一个浏览器窗口中打开 PDF 图纸的选项。

(1) 轴线尺寸
(2) 零件标记
(3) 剖面标记 A-A、B-B 和 C-C
(4) 手动尺寸
(5) 剖面图 A-A、B-B 和 C-C
(6) 钢筋组标记
(7) 带插图的钢筋标记
(8) 水平标记
(9) 修订表格
(10) 图纸标题块表格
(11) 图纸边框和边距
创建预制的制造图纸
修改预制的制造图纸
在图纸模式下,手动修改预制制造图以获得所需的结果。
如果您对结果满意,则可以将此图纸用作 创建类似浇筑体图纸的模板。
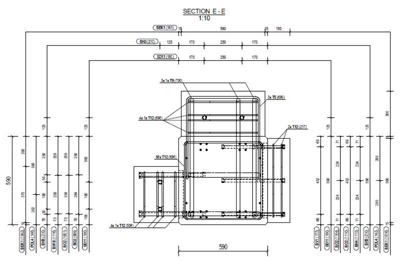
以下是浇筑体框架图纸的示例。
要查看完整尺寸的图纸,请右键单击这里并选择可在另一个浏览器窗口中打开 PDF 图纸的选项。

(1) 相关注释
(2) 自动创建的 3D 视图
(3) 符号(重心)
(4) 线
(5) 文本
(6) 来自图纸 2D 库或图像的 2D 细部
(7) 带插图的图形域的钢筋弯曲计划
(8) 带表格标题行、表格内容行、钢筋总重量行和浇筑体重量总和行的材料列表表格
(9) 带隐藏线的凹槽
(10) 混凝土零件
(11) 埋件/钢筋
(12) 自动创建的总尺寸
(13) 自动创建的凹槽尺寸
(14) 自动创建的过滤尺寸
(15) 模板前视图
(16) 剖面标记 A-A
(17) 零件轮廓
(18) 尺寸标签
(19) 自动创建的剖面图 A-A
(20) 带插图的钢筋标记
(21) 钢筋组标记
(22) 钢筋
(23) 钢筋前视图
(24) 钢筋组尺寸
(25) 细部标记
(26) 细部视图
(27) 图纸标题块表格
(28) 表格中的属性 (Tekla Corporation) 和固定文本(产品名)
(29) 修订表格
(30) 表格中的图像
(31) 图纸边框和边距
创建钢结构制造图纸
修改钢结构制造图纸
在图纸模式下,手动修改钢结构制造图纸以获得所需的结果。
如果您对结果感到满意,可以在为类似构件创建图纸时将此图纸用作模板。
下面是柱构件图的示例。
要查看完整尺寸的图纸,请右键单击这里并选择可在另一个浏览器窗口中打开 PDF 图纸的选项。

(1) 轴线位置表格说明构件位于模型中的哪个轴线上
(2) 自动创建的 A-A 剖面、手动标记和尺寸
(3) 模型焊接标记
(4) 零件标记
(5) 剖面标记 A-A、B-B 和 C-C
(6) 前视图
(7) 螺栓标记
(8) 螺栓
(9) 柱 C/54
(10) 柱轮廓
(11) 手动剖面标记 C-C(不带剖面图)。标识符为 C-C,表示此剖面与具有剖面图的 C-C 剖面相同
(12) 自动创建的 C-C 剖面、手动标记和尺寸
(13) 顶视图
(14) 螺栓、板和其他零件隐藏的标记
(15) 图纸边框和边距
(16) 修订表格
(17) 图纸标题块
(18) 取消表格,指示图纸中主零件的总数
(19) 材料列表表格
(20) 尺寸:大多数尺寸都是自动的整体尺寸。剖面图尺寸为手动尺寸。
(21):自动创建的 B-B 剖面、手动标记和尺寸























