Улучшенная автоматизация чертежей — более качественное клонирование и обновление видов и размеров
В Tekla Structures 2025 усовершенствовано клонирование и обновление чертежей, в частности, размещение размеров и видов чертежа.
- Мы улучшили логику размещения видов, чтобы избежать их накладывания друг на друга, смещения и размещения за пределами рамки чертежа. Теперь виды на чертежах размещаются так же, как были расположены на чертежах шаблонов. Кроме того, теперь соблюдается относительное местоположение видов сечений. В прошлом возникало много проблем с наложением видов друг на друга и случаев, когда виды размещались за пределами листа чертежа. Это влекло за собой лишнюю работу по приведению чертежей в порядок.
- Мы усовершенствовали логику размещения размеров и механизм, который позволяет избежать наложения размеров на другой текст. Теперь размеры на клонированных чертежах размещаются так же, как были расположены на чертежах шаблонов. Мы также улучшили логику простановки размеров объектов болтов при обновлении чертежей. Ранее размеры на клонированных чертежах не всегда размещались в соответствии с исходной схемой, используемой на чертеже шаблона. В результате приходилось тратить дополнительное время на перемещение размеров в соответствующие места.
Благодаря усовершенствованиям клонирования и обновления чертежей удалось повысить надежность и производительность следующих функций Tekla Structures:
- Интеллектуальное создание в процессе создания рабочих чертежей
- Клонирование через Диспетчер документов
- Общая процедура обновления чертежа, обусловленная изменениями в модели
Примеры усовершенствований
Чтобы просмотреть изображения в полном размере, нажмите ссылку В полную величину под каждым изображением. Кроме того, вы можете открыть изображение на новой вкладке, нажав на него правой кнопкой мыши и выбрав соответствующую команду.
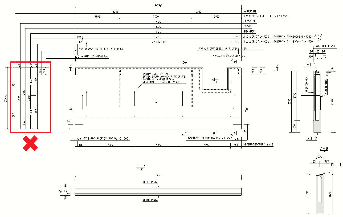
Пример 1a: До
Неправильный порядок размещения размеров, неравномерные расстояния между размерными линиями.

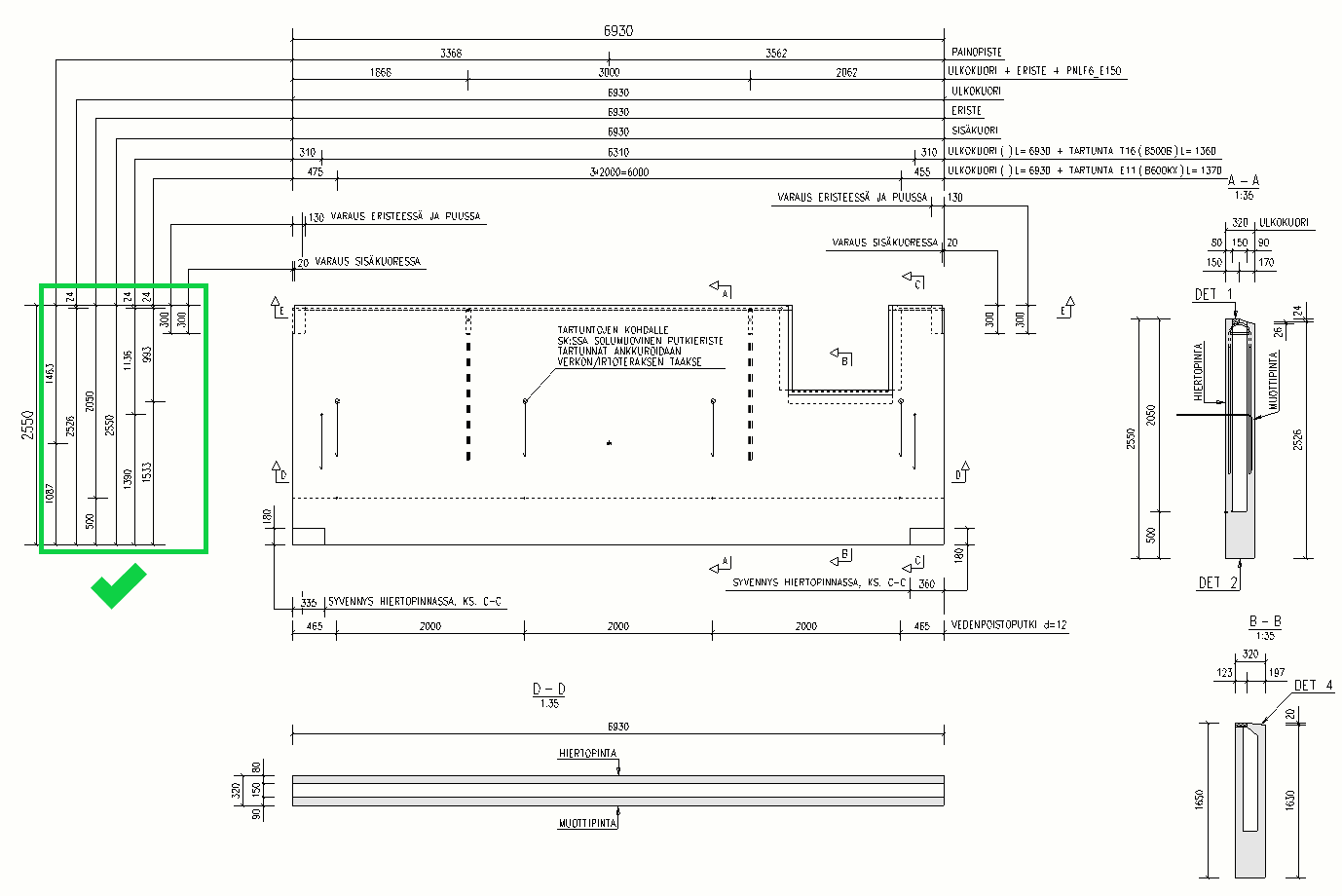
Пример 1b: После
Правильный порядок размещения размеров, равномерные интервалы между размерными линиями.

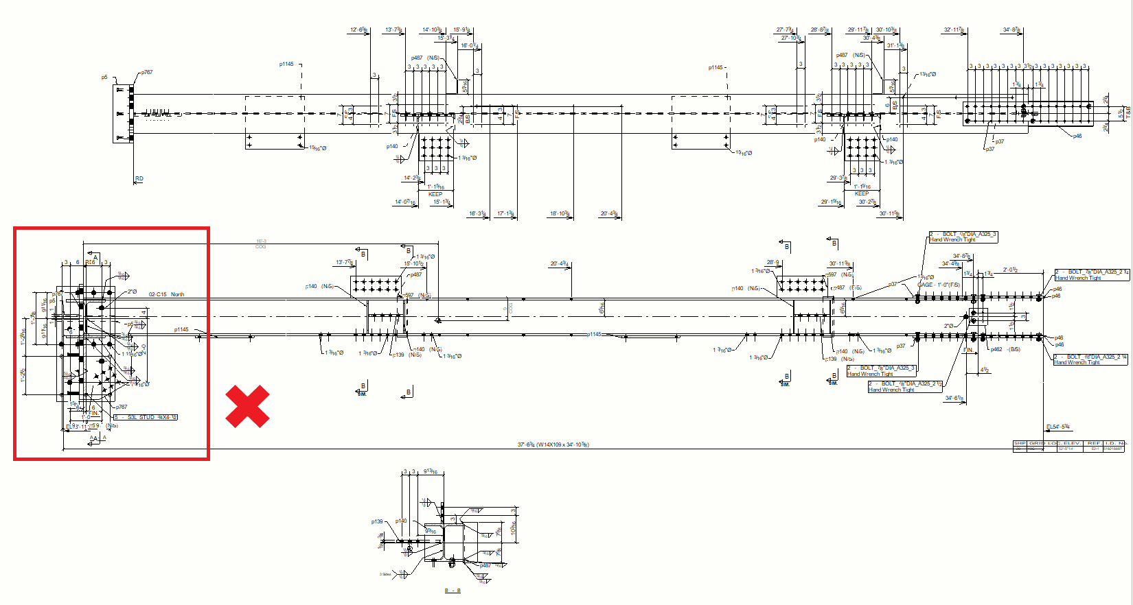
Пример 2a: До
Главные виды и виды сечений накладываются друг на друга.

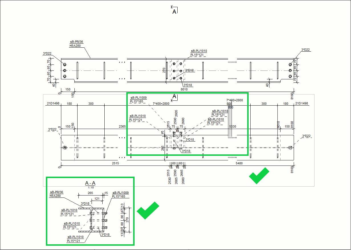
Пример 2b: После
Виды выровнены и не накладываются друг на друга.

Пример 3a: До
Неправильный порядок размещения размеров, неравномерные интервалы между размерными линиями.

Пример 3b: После
Правильный порядок размещения размеров, равномерные интервалы между размерными линиями.

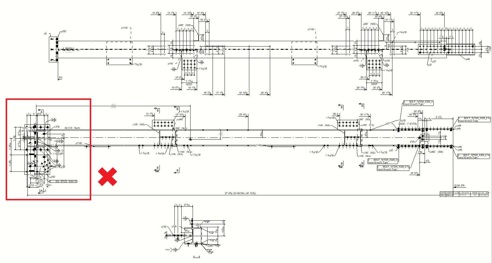
Пример 4a: До
Неправильный порядок размещения размеров, некоторые метки накладываются на другие объекты.

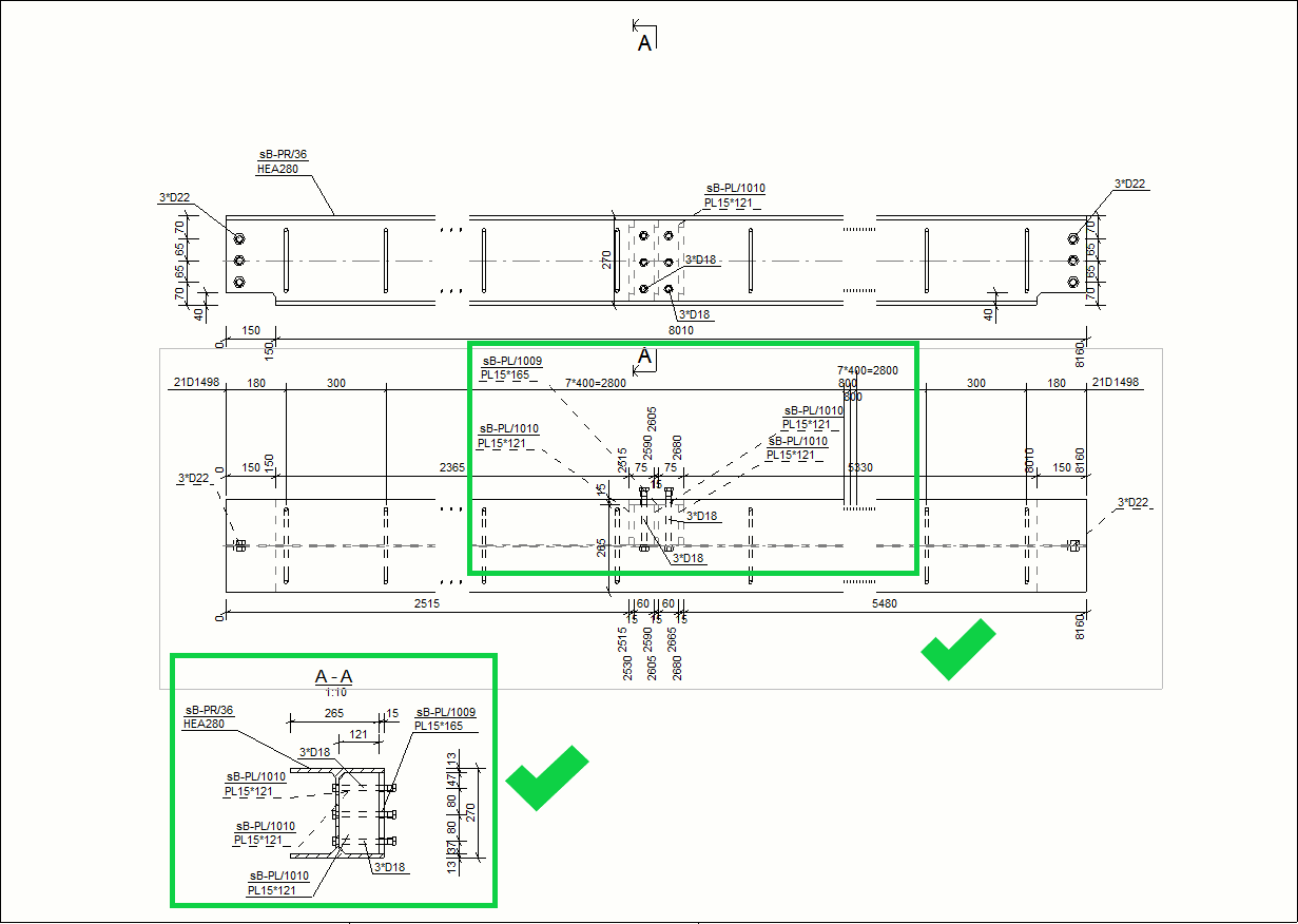
Пример 4b: После
Правильный порядок размещения размеров, метки не накладываются на другие элементы.

Другие усовершенствования, связанные с клонированием и обновлением
- Теперь при клонировании лучше сохраняются составные размеры.
- Усовершенствовано обработку радиальных размеров при обновлении и клонирование чертежей.
- Ранее на клонированных видах чертежа размеры, созданные вручную для объектов арматуры или закладных, в некоторых случаях могли быть неассоциативными. Теперь эту проблему исправлено.
- При клонировании виды узлов больше не связаны с объектами, которых нет на виде.