Краткое руководство по подготовке чертежей в Tekla Structures
Если вы еще не работали с чертежами в Tekla Structures, прочитайте эту статью!
Вы узнаете:
-
чем чертежи Tekla Structures отличаются от других чертежей и что в них входит;
-
что необходимо сделать, прежде чем создавать какие-либо чертежи;
-
как создать чертежи в вашем первом проекте с использованием предустановленных настроек из вашей среды;
-
как вручную внести в созданные чертежи изменения в режиме работы с чертежом.
Переходите по голубым ссылкам, чтобы узнать больше. Вот пример такой ссылки.
Основные сведения о чертежах Tekla Structures
-
В Tekla Structures чертеж — это окно в модель, в котором трехмерные конструкции модели показаны в двумерном пространстве вместе с размерами объектов и другими обозначениями, созданными на основе данных модели. Ниже приведен пример вида на чертеже, содержащего объекты строительной конструкции, метки и размеры:

-
Из Tekla Structures можно получать чертежи общего вида, чертежи отдельных деталей, чертежи сборок, чертежи ЖБ элементов и комплексные чертежи.
Актуальность чертежей
Чертежи Tekla Structures всегда актуальны, потому что:
-
Объекты строительной конструкции, показанные на чертеже, в точности соответствуют объектам, созданным в модели. Вы можете изменить их представление на чертеже, однако изменить геометрию или местоположение объектов, равно как и удалить их, нельзя. Все изменения в объекты строительной конструкции вносятся в модели.
-
Большинство объектов на чертеже являются ассоциативными и автоматически обновляются при изменении соответствующих объектов модели. Например, если изменить размер объекта модели, соответствующие размерные точки перемещаются с соответствующим объектом на чертеже, размеры пересчитываются, и связанные с ними данные в метках обновляются. В то же время все изменения, внесенные в чертеж вручную, сохраняются. Если размерные точки не перемещаются, это значит, что они не связаны ни с какими объектами строительной конструкции.
Объекты, виды и компоновка чертежа
Объекты чертежа находятся внутри видов чертежа, которые размещаются в выбранной компоновке чертежа в соответствии с выбранными параметрами:
-
К объектам чертежа относятся объекты строительной конструкции (детали, болты, сварные швы, фаски, армирование, обработка поверхности и т. д.), объекты аннотаций (метки, примечания, размеры, текст, присоединенные объекты, опорные объекты и т. д.) и эскизные объекты (линии, прямоугольники, облака, окружности и т. д.).
Все эти объекты можно корректировать.
Некоторые примеры объектов строительной конструкции, размеров, меток, текста и облаков:

-
Виды чертежа играют роль контейнеров для объектов строительной конструкции или областей модели, выбранных для включения в чертеж. При необходимости размеры вида чертежа автоматически корректируются, чтобы в нем поместилось дополнительное содержимое. Объекты строительной конструкции на видах чертежа могут быть показаны с разных ракурсов (сверху, спереди, сзади, снизу), а также в виде сечений. Настройки видов, например глубину и масштаб вида, можно корректировать.
Пример чертежа общего вида с видом в вертикальном разрезе и видами узлов:

Пример комбинированного чертежа формы и арматуры лестничного марша с площадками с двумя главными видами и несколькими видами узлов:

Пример чертежа сборки балки с одним главным видом и видом сечения:

-
Компоновка чертежа определяет:
-
набор таблиц, включая таблицу изменений, штамп, список материалов, спецификацию и общие примечания.
Данные в таблицах извлекаются непосредственно из данных модели. Вы можете создавать таблицы в Редакторе шаблонов, а также добавлять таблицы в компоновку чертежа и корректировать настройки компоновки в Редакторе компоновок.
Ниже приведен пример типовой компоновки рабочего чертежа:

(1) Поля между рамкой чертежа и крайними видами
(2) Промежутки между видами
(3) Вид сверху
(4) Вид спереди
(5) Виды сечений A-A и B-B
(6) Рамка чертежа
(7) Компоновочный план
(8) Список материалов
(9) Таблица изменений
(10) Штамп
(11) Метки линий сгиба
Предустановленные настройки чертежей
Используемая вами среда содержит предустановленные настройки чертежей, подходящие для различных задач. Существует несколько уровней таких настроек.
При создании чертежа в первый раз все, что вам нужно сделать, — это выбрать наиболее подходящий файл предустановленных настроек чертежа из списка в диалоговом окне свойств чертежа.
Обратите внимание, что настройки уровня чертежа также определяют, какая компоновка используется.
Вы можете вносить изменения в эти настройки и сохранять свои собственные файлы настроек для будущих чертежей.
Ниже приведен пример списка файлов настроек для чертежа общего вида:

Что нужно сделать перед созданием чертежей в Tekla Structures
-
Создавать чертежи можно на любом этапе проекта, но, чтобы свести к минимуму переделки, рекомендуем деталировать конструкции как можно тщательнее и закончить нумерацию, прежде чем приступать к созданию чертежей. Нумерация — это необходимое условие для создания чертежей отдельных деталей, сборок и ЖБ элементов.
-
Убедитесь, что категории и имена объектов в вашей модели соответствуют фильтрам. Придерживайтесь требований, принятых в вашей компании.
-
В модели создайте все необходимые виды для чертежей общего вида. Виды на чертежах общего вида будут иметь ту же ориентацию и содержимое, что и вид модели. Например, создайте вертикальный разрез или план этажа. Имеет смысл подогнать рабочую область на виде модели по двум точкам, чтобы выбрать ту ее часть, которую требуется показать на чертеже.
-
Решите, какую глубину вида вы будете использовать на чертежах общего вида. Установите нужную глубину вида на исходном виде модели; это сделает ваш рабочий процесс эффективнее и прозрачнее. На чертежах будет использоваться глубина, заданная для вида в модели.
-
Решите, какие предустановленные настройки и компоновку чертежа вы хотите использовать. Выберите подходящие предусмотренные по умолчанию настройки и компоновку, доступную в вашей среде.
Создание чертежа общего вида
В рамках вашего первого проекта попробуйте создать чертеж общего вида с использованием предустановленных настроек из вашей среды, а затем внести в этот чертеж необходимые изменения вручную в режиме работы с чертежом.
Дополнительные сведения о чертежах общего вида см. в разделах Создание чертежей общего вида и Свойства чертежей общего вида.
Внесение изменений в чертеж общего вида
В режиме работы с чертежом внесите изменения в чертеж вручную, чтобы получить желаемый результат.
Если вы довольны результатом, используйте этот чертеж в качестве шаблона для создания чертежей для другого аналогичного содержимого модели. Можно также использовать чертежи в текущем проекте в качестве шаблонов в ваших будущих проектах.
Ниже приведен пример чертежа плана фундамента.
Чтобы просмотреть этот чертеж в полную величину, щелкните правой кнопкой здесь и выберите команду, которая открывает PDF-файл в новом окне браузера.

(1) Размеры относительно сетки
(2) Метки деталей
(3) Метки сечений A-A, B-B и C-C
(4) Проставленные вручную размеры
(5) Виды сечений A-A, B-B и C-C
(6) Метка группы арматуры
(7) Метка арматуры с врезкой
(8) Метки уровня
(9) Таблица изменений
(10) Таблица штампа
(11) Рамка и поле чертежа
Создание рабочего чертежа сборного ЖБ элемента
Поскольку это ваш первый проект, мы рекомендуем создать рабочий чертеж сборного ЖБ элемента с использованием предустановленных настроек из вашей среды, а затем внести в этот чертеж необходимые изменения вручную в режиме работы с чертежом.
Дополнительные сведения о чертежах ЖБ элементов см. в разделах Создать рабочие чертежи и Свойства чертежей ЖБ элементов.
Внесение изменений в рабочий чертеж сборного ЖБ элемента
В режиме работы с чертежом внесите вручную изменения в рабочий чертеж сборного ЖБ элемента, чтобы получить желаемый результат.
Если вы довольны результатом, используйте этот чертеж в качестве шаблона для создания чертежей аналогичных ЖБ элементов.
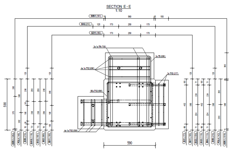
Ниже приведен пример чертежа устройства формы ЖБ элемента.
Чтобы просмотреть этот чертеж в полную величину, щелкните правой кнопкой здесь и выберите команду, которая открывает PDF-файл в новом окне браузера.

(1) Ассоциативное примечание
(2) 3D-вид (созданный автоматически)
(3) Символ (центр тяжести)
(4) Линия
(5) Текст
(6) 2D-узел из окна 2D-библиотека чертежей или изображение
(7) Спецификация арматуры с графическими полями для врезок
(8) Таблица со списком материалов со строкой заголовков, строками с содержимым, строкой итогов по массе армирования и строкой итогов по массе ЖБ элемента
(9) Углубление со скрытыми линиями
(10) Бетонная деталь
(11) Закладная деталь/арматура
(12) Габаритные размеры (созданные автоматически)
(13) Размеры углублений (созданные автоматически)
(14) Размеры по фильтру (созданные автоматически)
(15) Вид спереди устройства формы
(16) Метка сечения A-A
(17) Контур детали
(18) Тег размера
(19) Вид сечения A-A (созданный автоматически)
(20) Метка арматуры с врезкой
(21) Метка группы арматуры
(22) Арматура
(23) Вид спереди армирования
(24) Размер группы арматуры
(25) Метка узла
(26) Вид узла
(27) Таблица штампа
(28) Атрибут (Tekla Corporation) и фиксированный текст (наименование изделия) в таблице
(29) Таблица изменений
(30) Изображение в таблице
(31) Рамка и поле чертежа
Создание рабочего чертежа металлоконструкции
Поскольку это ваш первый проект, мы рекомендуем создать рабочий чертеж металлоконструкции с использованием предустановленных настроек из вашей среды, а затем внести в этот чертеж необходимые изменения вручную в режиме работы с чертежом. Инструкции ниже относятся к чертежам сборок.
Дополнительные сведения о чертежах сборок см. в разделах Создать рабочие чертежи и Свойства чертежей сборок.
Внесение изменений в рабочий чертеж металлоконструкции
В режиме работы с чертежом внесите вручную изменения в рабочий чертеж металлоконструкции, чтобы получить желаемый результат.
Если вы довольны результатом, используйте этот чертеж в качестве шаблона при создании чертежей для аналогичных сборок.
Ниже приведен пример чертежа сборки колонны.
Чтобы просмотреть этот чертеж в полную величину, щелкните правой кнопкой здесь и выберите команду, которая открывает PDF-файл в новом окне браузера.

(1) Таблица местоположений на сетке дает возможность понять, на какой линии сетки сборка находится в модели
(2) Сечение A-A (созданное автоматически) с добавленными вручную метками и размерами
(3) Метки сварных швов, созданных в модели
(4) Метки деталей
(5) Метки сечений A-A, B-B и C-C
(6) Вид спереди
(7) Метка болта
(8) Болты
(9) Колонна C/54
(10) Контур колонны
(11) Добавленная вручную метка сечения C-C (без вида сечения). Идентификатор C-C указывает на то, что это сечение идентично сечению C-C, у которого есть вид сечения.
(12) Сечение C-C (созданное автоматически) с добавленными вручную метками и размерами
(13) Вид сверху
(14) Болты, пластины и метки, скрытые другими деталями
(15) Рамка и поле чертежа
(16) Таблица изменений
(17) Штамп
(18) Таблица с указанием общего количества главных деталей на чертеже
(19) Таблица со списком материалов
(20) Размеры: Большинство размеров проставлены автоматически с использованием типа Интегрированные размеры. На виде сечения размеры проставлены вручную.
(21): Сечение B-B (созданное автоматически) с добавленными вручную метками и размерами






















