Quick start to Tekla Structures drawings

Tekla Structures
Modificado: 22 Jul 2025
2025
Tekla Structures

Quick start to Tekla Structures drawings

Read this article if Tekla Structures drawings are new to you!

You will learn:

  • What is specific to Tekla Structures drawings, and what is included in the drawings

  • What to do before creating any drawings

  • How to create drawings in your first project using the predefined settings in your environment

  • How to modify the created drawings manually in drawing mode

Click the blue links to learn more. Here is an example link.

Basics of Tekla Structures drawings

Up-to-date drawings

Tekla Structures drawings are always up to date because:

  • The building objects shown in the drawing are exactly the same as the model objects created in the model. You can change their representation in the drawing, but you cannot change the geometry or the location of the building object, or delete building objects; all changes to building objects are made in the model.

  • Most objects in the drawing are associative and automatically updated when the corresponding model objects change. For example, if you resize a model object, the associated dimension points move with the corresponding object in the drawing, the dimensions are recalculated, and the related data is updated in markings. Still, you do not lose any manual changes that you have made in the drawing. Note that if the dimension points do not move, they are not associated with any building objects.

Drawing objects, views, and drawing layout

Drawing objects are organized inside drawing views, which are placed in the selected drawing layout according to the selected settings:

  • Drawing objects include building objects (parts, bolts, welds, chamfers, reinforcement, surface treatment, etc.), annotation objects (marks, notes, dimensions, texts, linked objects, reference objects, etc.) and sketch objects (lines, rectangles, clouds, circles, etc.).

    All these objects are adjustable.

    Some examples building objects, dimensions, marks, texts, and clouds:

  • Drawing views act as containers for the building objects, or for areas in the model that you have selected to include in the drawing. The drawing view size adjusts automatically to fit in more content when necessary. Drawing views can show building objects from different directions (top, front, back, bottom), or as cross sections. View settings, for example the view depth and scale, are adjustable.

    Example of a GA drawing with an erection elevation view and detail views:

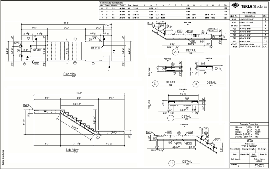
    Example of a combined form and reinforcing bar drawing of stairs with landings with two main views and a couple of detail views:

    Example of a beam assembly drawing with one main view and a section view:

  • A drawing layout defines:

    Below is an example of a typical fabrication drawing layout:

    (1) Margins between the drawing frame and the outermost views

    (2) Spaces between the views

    (3) Top view

    (4) Front view

    (5) Section views A-A and B-B

    (6) Drawing frame

    (7) Key plan

    (8) Material list

    (9) Revision table

    (10) Drawing title block

    (11) Fold marks

Predefined drawing settings

Your environment contains predefined drawing settings suited for various purposes, on multiple levels.

When you create drawings for the first time, all you have to do is to pick the most suitable predefined drawing settings to use.

Note that the drawing level settings also define which layout is used.

You can modify these settings and save your own settings files for your future drawings.

Below is an example of a list of drawing settings in a GA drawing:

Before creating drawings in Tekla Structures

  • You can create drawings at any stage of the project, but to minimize re-work, take the detailing as far as possible, and finish numbering before drawing creation. Numbering is a prerequisite for creating single-part, assembly, and cast unit drawings.

  • Ensure that the object classifications and naming in your model matches filtering. Follow the company conventions.

  • In the model, create all necessary views for GA drawings. GA drawing views will have the same orientation and content as the model view. For example, create an erection elevation view or a floor plan view. A good idea is to fit the work area in the model view using two points to select the area that you want to show in the drawing.

  • Decide the view depth to use in GA drawings. Set the desired view depth in the initial model view for efficient and transparent workflow. The drawings will use the depth defined for the view in the model.

  • Decide which predefined settings and drawing layout you want to use. Select suitable default settings and a layout available in your environment.

Create a general arrangement drawing

In your first project, the idea is to create a general arrangement (GA) drawing using predefined settings from your environment, and then modify the drawing manually in drawing mode as necessary.

  1. In modeling mode, go to the Drawings & reports tab on the ribbon, and select Drawing properties > GA drawing.
    • Open the drawing settings list, and select a predefined settings file that suits your needs.

    • Check the general settings. If you modify the settings in the subdialogs, remember to click OK:

      • Define Name and Title 1 - Title 3.

      • Go to Layout... settings and change the layout to another one if necessary.

      • Go to View... settings and select the Scale and the Label. The depth is taken automatically from the model view.

      • Go to building object (part, reinforcement, surface treatment, etc.) settings and modify the representation.

      • Go to Filter... settings and create filters. Decide which objects you want to show in the drawing, and filter other objects away. Optimize the filter so that it handles only the relevant objects.

        In the following example, you only want to show columns, beams, and footings:

      • Click Apply in the General Arrangement Drawing Properties dialog to apply the changes to the drawing that you will create. Also, save the drawing settings so that you can use the saved settings in your next projects.
  2. On the Drawings & reports tab on the ribbon, click Create GA Drawing.
  3. In the Create general arrangement drawing dialog, select the view from which you want to create the drawing among the views that you created earlier in the model.

    GA drawings are based on model views, so select a suitable floor plan view or grid line view, for example.

  4. To create the drawing, click Create.

For more information about GA drawings, see Create general arrangement drawings and General arrangement drawing properties.

Modify a GA drawing

In drawing mode, modify the drawing manually to get the desired result.

  1. On the Drawings & reports tab on the ribbon, click Document manager, and select and open the GA drawing you created earlier.
  2. Check the layout, tables, and the title block; all content outside the views. To modify the layout, open Layout editor by double-clicking a table in the layout. Save the modified layout.

    For example, double-click the title block:

  3. Check the view, and change the view settings by double-clicking the view frame. The view frame is visible when your mouse pointer is within the view frame.
    • Is the scale appropriate?

    • Is the view label appropriate?

    • Does the view contain the building objects that you want? If not, change the object visibility settings and filtering.

    • Are you happy with the building object representations? If not, check the part, bolt, surface treatment, reinforcement, etc. representations.

    • When you are done, click Modify. Also save the view settings so that you can use them in your next projects.

  4. Create the necessary detail views, and add 2D details from 2D Library. The view creation commands are located on the drawing Views tab, and 2D details in Drawing 2D Library in the side pane.

  5. Check and modify the content of the views, one by one:
  6. Arrange the views, or align all views vertically or horizontally with the main view.

    The Arrange command is located on the Views tab on the drawing ribbon, and the alignment commands on the context menu.

When you are happy with the result, use this drawing as a template for creating drawings for other similar model content. You can also use drawings in the current project as templates in your future projects.

Below is an example of a foundation plan drawing.

To see the drawing in full size, right-click here and select the option that opens the PDF drawing in another browser window.

(1) Grid dimensions

(2) Part marks

(3) Section marks A-A, B-B, and C-C

(4) Manual dimensions

(5) Section views A-A, B-B, and C-C

(6) Rebar group mark

(7) Rebar mark with pull-out picture

(8) Level marks

(9) Revision table

(10) Drawing title block table

(11) Drawing frame and margin

Create a precast fabrication drawing

As this is your first project, we recommend that you create a precast fabrication drawing using predefined settings from your environment, and then modify the drawing manually in drawing mode as necessary.

  1. Go to the Drawings & reports tab on the ribbon, and select Drawing properties > Cast unit drawing.
  2. Open the drawing settings list, and select the drawing settings file that suits your needs.

  3. Check and change the general settings in Cast Unit Drawing Properties:
    • Define Name and Title 1 - Title 3.

    • Go to Layout settings and change the layout to another one if necessary.

    • Go to Section view and set the default section view depth and section mark content.

    • Go to View creation and define at least one main view to create, for example, front view, and type a Label for the view.

  4. Select a view that you created from the view list and go to View properties. Modify the view settings. If you decide to create several main views, modify the settings for each view separately.

    • Set the Scale.

    • Modify building object settings and set the object representation.

      In your first project, you will probably have one concrete part and some embed parts. Set the part representation to either Outline or Exact. Set the reinforcement to Visible, and the reinforcement representation to single line with filled ends, for example. Also, remember to check surface treatment settings.

    • Go to Filter... settings and create filters. Decide which objects you want to show in the drawing, and filter other objects away. Optimize the filter so that it handles only the relevant objects.

      In the following example, all other rebars have been filtered out, except embeds:

    • When you are done, Save the view settings and click Close.

  5. Click Apply in the Cast Unit Drawing Properties dialog to apply the changes to the drawing that you will create. Also, save the drawing settings so that you can use the saved settings in your next projects.
  6. Select the objects.

    Use assembly selection switches to control which drawing types are created. If the Select assemblies switch is enabled, only assembly and cast-unit drawings are created. If the Select objects in assemblies selection switch is enabled OR none of the assembly selection switches are active, single-part, assembly, and cast-unit drawings are created. Alternatively, you can use appropriate selection filters or the Object visibility in the list options in the Creation review dialog to define the objects for which you want to create drawings.

  7. On the Drawings & reports tab, click Create fabrication drawing, ensure that the Creation review switch is enabled, and click Create fabrication drawing.
  8. In the Creation review dialog, select Manual selection, which suggests Applied settings, and click Create.
    Tip:
    • Instead, you could select Settings suggestion and select the settings that you modified earlier from the list of saved settings.
    • You could also use Template suggestion: In the beginning of the project, when no drawing templates are available, it is not possible to find a matching drawing template. If no drawing template match is found, the system automatically looks for the best matching saved settings, and if no saved settings match is found, applied settings are suggested.

For more information about cast unit drawings, see Create fabrication drawings and Cast unit drawing properties.

Modify a precast fabrication drawing

In drawing mode, modify the precast fabrication drawing manually to get the desired result.

  1. On the Drawings & reports tab on the ribbon, click Document manager, and select and open the precast fabrication drawing that you created earlier.
  2. Check the layout, tables and title blocks; all content outside the views. To modify the layout, go to Layout editor by double-clicking a table in the layout. Save any changes that you make in the layout.

    For example, double-click the title block:

  3. Check the settings in the main view that you created, and change the view settings by double-clicking the view frame. The view frame is visible when your mouse pointer is within the view frame.
    • Is the scale appropriate?

    • Is the view label appropriate?

    • Does the view contain the building objects that you want? If not, change the object visibility settings and filtering.

    • Are you happy with the building object representations? If not, check the part, surface treatment, reinforcement, etc. representations.

    • When you are done, click Modify. Also save the view settings so that you can use them in your next projects.

  4. Create other views (section views, detail views), and check the view settings in the same way as for the main view you created. Also, add 2D details from 2D Library, and links to DXF files and images. The view creation commands are located on the drawing Views tab, 2D details in Drawing 2D Library in the side pane, and the linking commands on the Drawing tab.

  5. Check and modify the content of the views, one by one:
  6. Arrange the views, or align all views vertically or horizontally with the main view.

    The Arrange command is located on the Views tab on the drawing ribbon, and the alignment commands on the context menu.

When you are happy with the result, you can use this drawing as a template for creating drawings for similar cast units.

Below is an example of a cast unit formwork drawing.

To see the drawing in full size, right-click here and select the option that opens the PDF drawing in another browser window.

(1) Associative note

(2) 3D view created automatically

(3) Symbol (center of gravity)

(4) Line

(5) Text

(6) 2D detail from Drawing 2D Library or image

(7) Rebar bending schedule with graphical fields for pull-out pictures

(8) Material list table with table header row, table content rows, total reinforcement weight row and total cast unit weight sum row

(9) Recess with hidden lines

(10) Concrete part

(11) Embed part/rebar

(12) Overall dimensions created automatically

(13) Recess dimensions created automatically

(14) Filter dimensions created automatically

(15) Formwork front view

(16) Section mark A-A

(17) Part contour

(18) Dimension tag

(19) Section view A-A created automatically

(20) Rebar mark with pull-out picture

(21) Rebar group mark

(22) Rebar

(23) Reinforcement front view

(24) Rebar group dimension

(25) Detail mark

(26) Detail view

(27) Drawing title block table

(28) Attribute (Tekla Corporation) and fixed text (Product name) in table

(29) Revision table

(30) Image in table

(31) Drawing frame and margin

Create a steel fabrication drawing

As this is your first project, we recommend that you create a steel fabrication drawing using predefined settings from your environment, and then modify the drawing manually in drawing mode as necessary. The instructions below apply to assembly drawings.

  1. Go to the Drawings & reports tab on the ribbon, and select Drawing properties > Assembly drawing.
  2. Open the drawing settings list, and select the settings file with a name that suits your needs.
  3. Check and change the general settings in Assembly Drawing Properties:
    • Define Name and Title 1 - Title 3.

    • Go to Layout settings and change the layout to another one if necessary.

    • Go to Section view and set the default section view depth and section mark content.

    • Go to View creation and define at least one main view to create, for example, front view, and type a Label for the view. You can also create section views and end views here.

      Also, define the bolt and weld visibility settings common to all views. Check and fill in the user-defined attributes that are common to all your fabrication drawings.

  4. Select a view that you created from the view list, for example the front view, and go to View properties. Modify the view settings. If you decided to create several main views, modify the settings for each view separately.

    • Set the Scale.

    • Go to building object (part, neighbor part, bolt, weld, reference object, grid, etc.) settings and set the object visibility and representation.

      For parts, Outline usually works for parts shown in main views. Exact is ideal for parts in detail, section, and end views, because it shows the true contours of hot-rolled profiles, for example. For welds, you can define whether to show the modeled welds or not. For bolts, you can define whether to show bolt holes and bolt axis, or actual bolts. If you prefer it simple, use the hole representation.

    • When you are ready, Save the view settings and click Close.

  5. Click Apply in the Assembly Drawing Properties dialog to apply the changes to the drawing that you will create. Also, save the drawing settings so that you can use the saved settings in your next projects.
  6. Select the objects.

    Use assembly selection switches to control which drawing types are created. If the Select assemblies switch is enabled, only assembly and cast-unit drawings are created. If the Select objects in assemblies selection switch is enabled OR none of the assembly selection switches are active, single-part, assembly, and cast-unit drawings are created. Alternatively, you can use appropriate selection filters or the Object visibility in the list options in the Creation review dialog to define the objects for which you want to create drawings.

  7. On the Drawings & reports tab, click Create fabrication drawing, ensure that the Creation review switch is enabled, and click Create fabrication drawing.
  8. In the Creation review dialog, select Manual selection, which suggests Applied settings, and click Create.
    Tip:
    • Instead, you could select Settings suggestion and select the settings that you modified earlier from the list of saved settings.
    • You could also use Template suggestion: In the beginning of the project, when no drawing templates are available, it is not possible to find a matching drawing template. If no drawing template match is found, the system automatically looks for the best matching saved settings, and if no saved settings match is found, applied settings are suggested.

For more information about assembly drawings, see Create fabrication drawings and Assembly drawing properties.

Modify a steel fabrication drawing

In drawing mode, modify the steel fabrication drawing manually to get the desired result.

  1. On the Drawings & reports tab on the ribbon, click Document manager, and select and open the steel fabrication drawing you created earlier.
  2. Check the layout, tables and title blocks; all content outside the views. To modify the layout, go to Layout editor by double-clicking a table in the layout.

    For example, double-click the shop material list:

  3. Check the settings in the main views (top, front, bottom, back) that you created, and change the view settings by double-clicking the view frame. The view frame is visible when your mouse pointer is within the view frame.
    • Is the scale appropriate?

    • Is the view label appropriate?

    • Does the view contain the building objects that you want? If not, change the object visibility settings.

    • Are you happy with the building object representations? If not, check the part, surface treatment, bolt, weld, etc. representations.

    • When you are done, click Modify. Also, save the view settings so that you can use them in your next projects.

  4. Create other views (section views, detail views), and check the view settings in the same way as for the main views you created. Also, add 2D details from 2D Library, or links to DXF files. The view creation commands are located on the drawing Views tab, the Drawing 2D Library in the side pane, and the commands for adding links on the Drawing tab.

  5. Check and modify the content of the views, one by one:
  6. Arrange the views, or align all views vertically or horizontally with the main view.

    The Arrange command is located on the Views tab on the drawing ribbon, and the alignment commands on the context menu.

When you are happy with the result, you could use this drawing as a template when you are creating drawings for similar assemblies.

Below is an example of a column assembly drawing.

To see the drawing in full size, right-click here and select the option that opens the PDF drawing in another browser window.

(1) Grid location table tells on which grid line the assembly is located in the model

(2) Section A-A created automatically, manual marks and dimensions

(3) Model weld marks

(4) Part marks

(5) Section marks A-A, B-B, and C-C

(6) Front view

(7) Bolt mark

(8) Bolts

(9) Column C/54

(10) Column contour

(11) Manual section mark C-C (without a section view). The identifier is C-C to indicate that this section is identical to the C-C section that has a section view

(12) Section C-C created automatically, manual marks and dimensions

(13) Top view

(14) Bolts, plates and marks hidden by other parts

(15) Drawing frame and margin

(16) Revision table

(17) Drawing title block

(18) Call off table indicating the total number of main parts in the drawing

(19) Material list table

(20) Dimensions: Most dimensions are automatic Integrated dimensions. The section view dimensions are manual.

(21): Section B-B created automatically, manual marks and dimensions

Esta informação foi útil?
Anterior
Seguinte