Ulepszona automatyzacja rysunków - Lepsze klonowanie oraz aktualizacja widoków i wymiarów
Tekla Structures 2025 oferuje ulepszone klonowanie i aktualizacje rysunków, w szczególności w odniesieniu do umieszczania wymiarów i widoków rysunku.
- Ulepszono logikę umieszczania widoków, aby zapobiec nakładaniu się, brakowi wyrównania i umieszczaniu widoków poza ramką rysunku. Widoki na rysunkach są teraz umieszczane w sposób analogiczny do tego, w jaki były umieszczane na rysunkach szablonów. Ponadto położenie względne widoków przekroju jest teraz respektowane. Wcześniej występowało wiele przypadków nakładania się widoków oraz sytuacji, w których widoki były umieszczane poza arkuszem rysunku, co generowało dodatkową pracę przy czyszczeniu rysunków.
- Logika umieszczania wymiarów i mechanizm unikania nakładania się wymiarów z innymi tekstami zostały ulepszone. Teraz wymiary na sklonowanych rysunkach są umieszczane podobnie do tego, jak były umieszczane na rysunkach szablonu. Ulepszono również logikę wymiarowania obiektu podczas aktualizacji rysunku. Wcześniej wymiary nie zawsze były umieszczane na sklonowanych rysunkach zgodnie z oryginalnym wzorcem umieszczania na rysunku szablonu, co powodowało dodatkową pracę, gdy wymiary musiały być przenoszone w odpowiednie miejsca.
Dzięki ulepszeniom klonowania i aktualizacjom rysunków następujące funkcje Tekla Structures są teraz bardziej niezawodne i oferują lepsze wyniki:
- Utwórz inteligentnie w tworzeniu rysunku produkcyjnego
- Klonowanie za pomocą okna Menedżer dokumentów
- Ogólne zachowanie aktualizacji rysunku spowodowane zmianami w modelu
Przykłady ulepszeń
Aby wyświetlić obrazy w pełnym rozmiarze, kliknij link Obraz pełnowymiarowy pod każdym obrazem. Można też kliknąć obraz prawym przyciskiem myszy i wybrać odpowiednie polecenie, aby otworzyć obraz w nowej karcie.
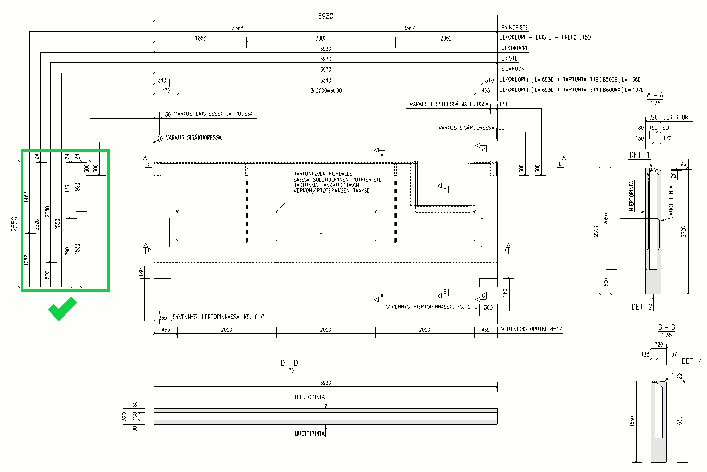
Przykład 1a: Przed
Kolejność wymiarów jest nieprawidłowa, a odległości między liniami wymiarowymi są nieregularne.

Przykład 1b: Po
Kolejność wymiarów jest prawidłowa z regularnymi odstępami między liniami wymiarowymi.

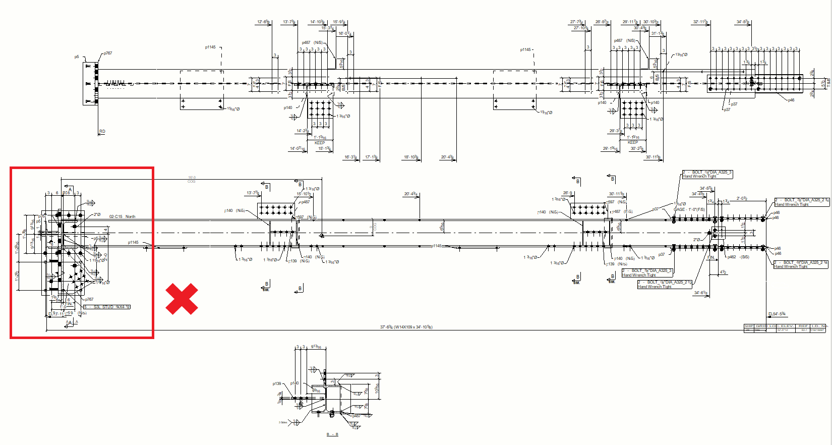
Przykład 2a: Przed
Widoki główne i widoki przekroju nakładają się na siebie.

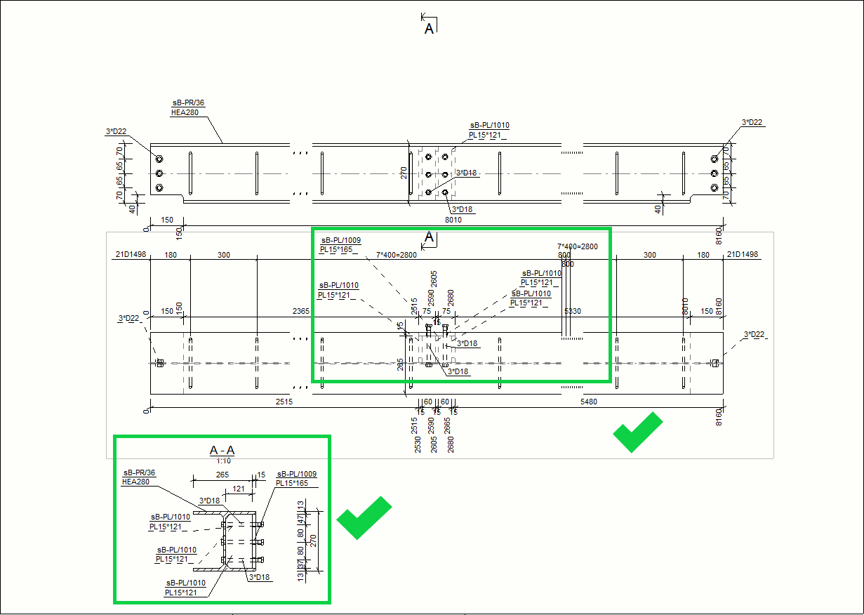
Przykład 2b: Po
Widoki są wyrównane i umieszczone bez nakładania się.

Przykład 3a: Przed
Kolejność wymiarów jest nieprawidłowa, a odstępy między liniami wymiarowymi są nieregularne.

Przykład 3b: Po
Kolejność wymiarów jest prawidłowa z regularnymi odstępami między liniami wymiarowymi.

Przykład 4a: Przed
Kolejność wymiarów jest nieprawidłowa, a niektóre znaki nakładają się na inne obiekty.

Przykład 4b: Po
Kolejność wymiarów jest prawidłowa, a znaki są umieszczane bez nakładania się.

Inne ulepszenia klonowania i aktualizacji
- Wymiary do punktów roboczych są teraz lepiej zachowywane podczas klonowania.
- Poprawiono obsługę wymiarów promieniowych podczas aktualizacji i klonowania rysunku.
- Wcześniej w sklonowanych widokach rysunku ręcznie utworzone wymiary dla obiektów prętów zbrojeniowych lub elementów osadzonych mogły być w niektórych przypadkach niepowiązane. Ten problem został naprawiony.
- Podczas klonowania widoki detali nie są już powiązane z obiektami, które nie istnieją w widoku.