Pokaż spoiny na rysunkach
Tekla Structures umożliwia wyświetlenie spoin utworzonych do modelu jako ścieżki spoin i znaki spoin na rysunkach. Na rysunkach można dodawać do spoin modelu inteligentne znaki zarówno automatycznie, jak i ręcznie. Znaki spoin rysunku można również dodawać ręcznie, ale te znaki nie muszą być powiązane z fizyczną spoiną w modelu.
Jak spoiny są wyświetlane na rysunkach
Tekla Structures umożliwia wyświetlenie spoin dodanych do modelu jako szwy spoin i znaki spoin na rysunkach. Na otwartym rysunku można dodawać znaki spoin także ręcznie.
Pojęcia dotyczące spoin
Spoiny modelu są wyświetlane na rysunkach jako znaki spoin i spoiny lub szew spoiny. Spoinami i znakami spoin można sterować oddzielnie. Można na przykład wyświetlić spoiny na jednym widoku rysunku, a na innym znaki spoin.
Spoiny modelu 3D stanowią realną prezentację spoin w świecie rzeczywistym. Bryły spoin na rysunkach są przedstawieniem spoin w modelach. Szew spoiny jest to element ścieżki spoiny, na której rysowana jest bryła spoiny. Ścieżka spoiny może składać się z wielu szwów spoiny.
Bryły spoin są wyświetlane na rysunkach dla następujących typów spoin:
-
Bryły spoin są wyświetlane na rysunkach dla tych typów spoin, które opierają się na rzeczywistej bryle. Spoiny, które nie opierają się na rzeczywistej bryle, są przedstawiane na modelu za pomocą sześciokątnego symbolu zastępczego, a na rysunkach bryły spoin nie są wyświetlane.
-
Obsługiwane są także spoiny z przekrojami definiowanymi przez użytkownika.
Bryły spoin mogą być wyświetlane jako obrysy lub ścieżki z liniami niewidocznymi albo bez nich.
W pierwszym przykładzie spoiny znajdujące się z prawej strony i po środku mają obrysy oraz własne linie ukryte. W przypadku spoiny z lewej strony wyświetlana jest ścieżka spoiny oraz linie ukryte:
Drugi przykład przedstawia przekrój konstrukcji. Spoiny znajdujące się z lewej strony i po środku mają obrysy, a w przypadku spoiny z prawej strony wyświetlana jest ścieżka. Wymiary spoiny zostały dodane ręcznie.
Symbole spoin wewnątrz znaków spoin wskazują właściwości spoiny zdefiniowane dla spoiny modelu w modelu lub dla znaku spoiny na rysunku. Poniżej przedstawiono przykład szwu spoiny modelu (kolor czerwony) oraz znaku spoiny modelu (kolor zielony) na rysunku.
Zobacz również: Typy spoin i symbole typu spoiny.
Znak spoiny oprócz symboli spoiny zawiera także linię odniesienia i strzałkę. Strzałka łączy linię odniesienia ze stroną połączenia wskazywaną przez grot strzałki. Właściwości spoiny dla spoin po stronach elementu wskazywanych przez groty strzałek i dla spoin po innych stronach elementu mogą być różne.
Umieszczanie spoiny
Jeśli elementy są ze sobą zespawane, możesz umieszczać spoiny:
-
Tylko po stronach wskazywanych przez groty strzałek
-
Tylko po innych stronach
-
Po stronach wskazywanych przez groty strzałek i po innych stronach
Poniższe obrazy ilustrują podstawowe zasady umieszczania spoin.
(1) Nad linią
(2) Pod linią
(3) Spoina po stronie strzałki
(4) Spoina po innej stronie
Tekla Structures domyślnie umieszcza spoiny nad linią zgodnie z normą ISO. Można to zmienić na umieszczanie poniżej linii w celu zapewnienia zgodności z normą AIS. Służy do tego opcja zaawansowana XS_AISC_WELD_MARK.
Właściwości spoin modelu
Aby zmienić właściwości spoiny modelu, należy zmodyfikować spoinę w modelu. Podczas aktualizacji modelu obiekty spoiny i znaki spoin są aktualizowane na rysunku zgodnie ze zmianami wprowadzonymi w modelu. Na rysunkach można modyfikować zawartość i wygląd znaków spoin modelu oraz widoczność, sposób przedstawienia i wygląd obiektów spoin modelu.
Bryły spoin mogą być pokazywane na rysunkach pojedynczych elementów, zespołów oraz zestawczych.
Dodawanie znaków spoin rysunku ręcznie
Znaki spoin można dodawać ręcznie na otwartym rysunku. Tekla Structures tworzy ręczne znaki spoin rysunku przy użyciu bieżących właściwości znaku spoin rysunku. W celu ręcznego dodania znaków spoin rysunku nie ma potrzeby wyświetlania spoiny modelu na rysunku.

Przykład: Znaki spoiny rysunku dodane na rysunkach
W tym przykładzie pierwszy obraz przedstawia właściwości znaku spoiny rysunku w panelu Właściwości rysunku. Właściwości są ponumerowane na obrazie. Drugi obraz przedstawia znak spoiny na rysunku oraz sposób wyświetlania właściwości w znaku.
(1) Krawędź/Obwodowa - tutaj używany jest symbol spoiny obwodowej
(2) Warsztat/Budowa - tutaj używany jest symbol spoiny na budowie
(3) Przedrostek spoiny
(4) Typ spoiny
(5) Rozmiar spoiny
(6) Kąt spoiny
(7) Symbol konturu spoiny
(8) Symbol wykończenia spoiny
(9) Pokrycie efektywne
(10) Szerokość grani
Ręczne dodawanie znaków spoin modelu
Można dodawać znaki do spoin modelu na otwartym rysunku, np. jeśli nie zostały utworzone już podczas tworzenia rysunku. Aby ręcznie dodać znaki spoin modelu, na rysunku musi się znajdować spoina modelu. Tekla Structures tworzy znaki spoin modelu przy użyciu właściwości określonych dla spoiny w modelu. Można również dostosować widoczność i wygląd znaku spoiny modelu na rysunku.
Zmiany zostaną zastosowane.
Znaki spoin można przeciągać w inne miejsce. Należy pamiętać, że nie można przeciągnąć znaku od powiązanej spoiny. Można go tylko przeciągać wzdłuż szwu spoiny. Aby uzyskać więcej informacji, zobacz poniższą sekcję „Przeciąganie znaków spoin”.
Przykłady: Znaki spoiny modelu na rysunkach
Spoiny modelu są to spoiny, które zostały dodane do modelu. Na rysunkach są one reprezentowane przez szwy spoin i znaki spoin. Poniżej podano kilka przykładów przedstawiających właściwości spoiny w modelu oraz wygląd znaków spoiny na rysunkach.
Przykład 1
W pierwszym przykładzie pierwszy obraz pokazuje właściwości spoiny w modelu. Można dodawać spoiny w modelu, wybierając jedno z poleceń spawania na karcie Stal. Niektóre właściwości spoin są oznaczone numerami na obrazie. Drugi obraz przedstawia, w jaki sposób te właściwości są wyświetlane w znaku spoiny na rysunku.
(1) Krawędź/Obwodowa - używany jest symbol spoiny obwodowej
(2) Warsztat/Budowa - używany jest symbol spawania na budowie
(3) Przedrostek spoiny
(4) Typ spoiny
(5) Rozmiar spoiny
(6) Kąt spoiny
(7) Symbol konturu spoiny
(8) Symbol wykończenia spoiny
(9) Pokrycie efektywne
(10) Szerokość grani
Przykład 2
Poniższy przykład przedstawia spoinę przerywaną naprzemienną. Długość jest ustawiona na 50, a odległość na 100.
(1) Spoina przerywana przestawna
(2) Długość segmentu spoiny
(3) Odległość (od środka do środka) między segmentami spoiny
Przykład 3
Poniższy przykład przedstawia spoinę przerywaną symetryczną. Długość ma wartość 50 a odległość 100. Odległość jest pokazywana w znaku spoiny, gdy jej wartość jest większa niż 0,0.
Przykład 4
Poniżej przedstawiono przykład spoiny ciągłej.
Przykład 5
W tym przykładzie wybrana jest opcja przerywanej spoiny naprzemiennej, a opcja zaawansowana XS_AISC_WELD_MARK jest ustawiona na FALSE w celu utworzenia znaku spoiny zgodnego z normą ISO.
Przykład 6
W tym przykładzie wybrana jest opcja przerywanej spoiny naprzemiennej, tak jak w poprzednim przykładzie, ale opcja zaawansowana XS_AISC_WELD_MARK ma wartość TRUE, aby utworzyć znak spoiny zgodny z normą AISC.
Znak spoiny AISC jest również zgodny ze standardem Amerykańskiego Towarzystwa Spawalniczego (AWS).
Aby uzyskać instrukcje dotyczące dostosowywania symboli spoin, zobacz sekcję „Dostosowywanie symboli typów spoin” w dalszej części strony.
Modyfikowanie właściwości znaku spoiny modelu na poziomie widoku na rysunku
Właściwości spoin modelu są ustawione w modelu. Podczas tworzenia rysunku można zdefiniować właściwości znaku spoiny, w tym widoczność i wygląd znaku. Można również modyfikować właściwości spawania, które mają być pokazywane w znakach spoin modelu, oraz dostosować wygląd znaków spoin modelu we właściwościach znaku spoiny na poziomie rysunku (rysunki zestawcze) i na poziomie widoku rysunku.
Przykłady
Pierwszy przykład przedstawia znak spoiny modelu, w którym widocznych jest wiele właściwości:
W drugim przykładzie wszystkie inne właściwości znaku spoiny modelu zostały ukryte, z wyjątkiem Typ i Tekst referencyjny:
- Możesz także pomijać spoiny na rysunku według typu spoiny, korzystając z opcji zaawansowanej XS_OMITTED_WELD_TYPE. W takim przypadku należy najpierw ustawić wartość opcji Limit rozmiaru spoiny.
- Możesz także dostosować niektóre symbole typu spoiny.
- Aby uzyskać więcej informacji na temat definiowania właściwości automatycznego znaku spoiny, które mają być używane podczas tworzenia rysunku, zobacz Definiowanie automatycznych właściwości spoiny modelu na rysunkach.
Zmiana sposobu prezentacji i wyglądu na rysunku obiektu spoiny modelu
Możesz ręcznie zmienić sposób prezentacji i wygląd obiektu spoiny modelu na poziomie obiektu.
Przykłady
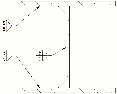
W pierwszym przykładzie poniżej spoiny znajdujące się z prawej strony i po środku mają obrysy oraz niewidoczne własne linie. W spoinie z lewej strony wyświetlana jest ścieżka oraz linie niewidoczne.
Drugi przykład przedstawia przekrój konstrukcji. Spoiny znajdujące się z lewej strony i po środku mają obrysy, a w przypadku spoiny z prawej strony wyświetlana jest ścieżka. Spoiny z prawej i lewej strony przebiegają przez róg elementu. Spoiny te mają wymiary ustawiane ręcznie.
Możesz określić właściwości spoin automatycznych dla spoin modelu przed utworzeniem rysunku. Można także zmieniać właściwości spoin na otwartym rysunku na poziomie widoku, klikając dwukrotnie ramkę widoku rysunku zawierającego obiekty spoiny i wybierając pozycję Spoina w drzewie opcji. Na poziomie rysunku i widoku możesz także zmieniać ustawienia widoczności.
Przeciąganie znaków spoin
Możesz przeciągać znaki spoiny za punkt powiązania linii odniesienia znaku spoiny wzdłuż szwu spoiny. W ten sposób możesz określać pozycję znaków spoin w bardziej zoptymalizowany sposób w celu uzyskania większej przejrzystości rysunków. Ręczne znaki spoin, które nie są powiązane ze spoinami modelu na rysunku, można swobodnie przeciągać.
Zaznaczenie opcji Przeciągnij i upuść () znacznie ułatwia zaznaczanie i przeciąganie punktu bazowego linii odniesienia.
Ograniczenie: Nie możesz przeciągać punktu bazowego linii odniesienia znaku spoiny na drugą stronę spoiny obustronnej.
Przykład
Pierwszy z poniższych obrazów pokazuje spoiny w modelu.
Drugi obraz pokazuje znaki spoin modelu na rysunku. Obszar, po którym może być przesuwany punkt powiązania linii odniesienia znaku spoiny, ma kolor ciemnozielony.
Łączenie znaków spoin
Można sprawić, że Tekla Structures będzie używać tego samego znaku dla identycznych spoin na rysunku, scalając znaki spoin.
|
Opis |
Przykład |
|---|---|
|
Rysunek początkowy |
|
|
Scalone znaki spoin. |
|
Dostosowywanie symboli typu spoiny
Większości symboli typu spoiny nie można zmieniać, ale niektóre z nich można edytować w Edytorze symboli.
Dolne siedem symboli (symbole 20-26) na liście Typ, we właściwościach spoiny modelu i w oknie właściwości znaku spoiny rysunku (patrz obraz poniżej) jest pobieranych z pliku TS_Welds.sym. Każdy z tych siedmiu symboli możesz edytować za pomocą Edytora symboli w celu utworzenia symbolu spoiny użytkownika. Pozostałych symboli spoin nie można zmieniać. Należy pamiętać, że symbol na liście Typ nie zmienia się podczas aktualizacji symbolu.
Spoina przetopowa
Spoina czołowa V ze stromym brzegiem
Spoina czołowa 1/2 V ze stromym brzegiem
Spoina grzbietowa
Powierzchnia napawana
Złącze zawijane
Złącze doczołowe ukośne
- Otwórz Edytor symboli jako administrator.
- Kliknij i przejdź do folderu, w którym znajduje się plik TS_Welds.sym.
- Wybierz plik i kliknij OK.
- Zmodyfikuj symbol.
W trakcie tej operacji symbol musi mieć tę samą skalę co inne symbole. Jeśli symbol jest zbyt duży i nie mieści się w polu, możesz go rozciągnąć poza jego granice:
- Zapisz symbol, wybierając .
Aby uzyskać więcej informacji na temat Edytora symboli, kliknij łącze Podręcznik Edytora symboli na stronie Dokumentacja PDF Tekla Structures.
Co zrobić, jeśli spoiny lub znaki spoin nie są widoczne na rysunku
Jeśli na rysunku nie są widoczne spoiny modelu lub znaki spoin, należy sprawdzić następujące ustawienia:
-
Sprawdź ustawienia dotyczące widoczności spoiny i znaku spoiny w obszarze Wspólne ustawienia dla wszystkich widoków na karcie Tworzenie widoku we właściwościach rysunku. Aby to zrobić, otwórz okno dialogowe właściwości rysunku, klikając dwukrotnie tło rysunku i klikając Tworzenie widoku w drzewie opcji po lewej stronie:
-
Limit rozmiaru spoiny: Filtruje spoiny i znaki spoin o określonym i mniejszym rozmiarze spoiny z wszystkich widoków na rysunku. To ustawienie jest dostępne w przypadku rysunków pojedynczych elementów i rysunków zespołów.
-
Znaki spoin widoczne: Steruje widocznością znaków spoin modelu na rysunkach zespołu. Dostępne ustawienia:
- W jednym widoku: Tekla Structures automatycznie znajdzie najbardziej odpowiedni widok do wyświetlenia znaków spoin w modelu. Każdy znak spoiny jest wyświetlany na rysunku tylko w jednym widoku.
- We wszystkich widokach: Tekla Structures dodaje znaki spoin w modelu we wszystkich widokach rysunku, które zawierają element ze spoiną.
-
- Sprawdź ustawienia widoczności znaku spoiny dla widoku i zmodyfikuj je, jeśli to konieczne. Aby to zrobić, kliknij dwukrotnie ramkę widoku i kliknij Znak spoiny w drzewie opcji po lewej stronie:
- Sprawdź pola wyboru widoczności znaków spoin modelu na karcie Zawartość.
- Sprawdź następujące wartości: Spoiny, Spoiny w podzespołach, Spoiny w ukrytych elementach, Limit rozmiaru spoiny.
- Sprawdź ustawienia koloru linii na karcie Wygląd.
Można użyć koloru standardowego lub koloru niestandardowego RGB.
- Sprawdź ustawienia widoczności spoiny dla widoku i zmodyfikuj je, jeśli to konieczne. Kliknij dwukrotnie ramkę widoku i kliknij Spoina w drzewie opcji po lewej stronie:
- Sprawdź następujące wartości: Spoiny, Spoiny w podzespołach, Limit rozmiaru spoiny
- Sprawdź ustawienia koloru linii na karcie Wygląd.
Można użyć koloru standardowego lub koloru niestandardowego RGB.
- Sprawdź kartę Prezentacja użytkownika w oknie właściwości widoku spoiny i znaku spoiny.
- W oknie właściwości widoku rysunku sprawdź, czy nie zostały ustawione jakiekolwiek filtry wyświetlania, które uniemożliwiają wyświetlanie spoin i znaków spoin. Aby to zrobić, kliknij dwukrotnie ramkę widoku i kliknij Filtr w drzewie opcji po lewej stronie oraz sprawdź, czy istnieją aktywne filtry.
i
, możesz kopiować wartości między kolumnami
, aby włączać lub wyłączać łączenie.
. Oznacza to, że w przypadku zmiany wartości w jednej z kolumn nastąpi również odpowiednia zmiana w drugiej kolumnie. 
i wybierania obszarem lub za pomocą
. Naciśnij klawisz
obok właściwości spoiny, aby wyświetlić właściwości w znakach spoin modelu. 
