Szybkie wprowadzenie do rysunków Tekla Structures
Przeczytaj ten artykuł, jeśli nie masz doświadczenia z rysunkami Tekla Structures.
Dowiesz się:
-
Jakie są specyficzne cechy rysunków Tekla Structures i co jest zawarte w tych rysunkach
-
Co należy zrobić przed utworzeniem jakichkolwiek rysunków
-
Jak utworzyć rysunki w swoim pierwszym projekcie przy użyciu predefiniowanych ustawień w stosowanym środowisku
-
Jak ręcznie modyfikować utworzone rysunki w trybie rysunku
Aby dowiedzieć się więcej, kliknij niebieskie łącza. Oto przykładowe łącze.
Podstawy rysunków Tekla Structures
-
W Tekla Structures rysunek jest oknem reprezentującym model, w którym trójwymiarowy model konstrukcji jest przedstawiany w dwóch wymiarach, wraz z wymiarami obiektów i innymi oznaczeniami bazującymi na danych modelu. Poniżej znajduje się przykład widoku rysunku zawierającego obiekty budowlane, znaki i wymiary:

-
W Tekla Structures można uzyskać rysunki zestawcze, rysunki pojedynczych elementów, rysunki zespołów, rysunki zespołów betonowych i rysunki zbiorcze.
Aktualne rysunki
Rysunki Tekla Structures są zawsze aktualne, ponieważ:
-
Obiekty budowlane przedstawiane na rysunku są dokładnie takie same, jak obiekty modelu utworzone w modelu. Można zmieniać ich prezentację na rysunku, jednak nie można zmienić geometrii ani położenia obiektu budowlanego. Nie można również usuwać obiektów budowlanych. Wszystkie zmiany w obiektach budowlanych są wprowadzane w modelu.
-
Większość obiektów na rysunku jest powiązana i są one automatycznie aktualizowane po zmianie odpowiednich obiektów modelu. Jeśli na przykład zostanie zmieniony rozmiar obiektu modelu, powiązane punkty wymiarów przesuwają się wraz z odpowiednim obiektem na rysunku, wymiary są obliczane ponownie, a powiązane dane w znakach są aktualizowane. Nie powoduje to utraty żadnych zmian wprowadzonych ręcznie na rysunku. Zauważ, że jeśli punkty wymiarów nie przesuwają się, oznacza to, że nie są powiązane z żadnymi obiektami budowlanymi.
Obiekty rysunku, widoki i układ rysunku
Obiekty rysunku są zorganizowane w obrębie widoków rysunku, które są umieszczane w wybranym układzie rysunku zgodnie z wybranymi ustawieniami:
-
Obiekty rysunku obejmują obiekty budowlane (elementy, śruby, spoiny, fazowania, zbrojenie, wykończenie powierzchni itd.), obiekty opisowe (znaki, uwagi, wymiary, teksty, obiekty połączone, obiekty referencyjne itd.) oraz obiekty szkicu (linie, prostokąty, chmurki, okręgi itd.).
Wszystkie te obiekty można dostosowywać.
Kilka przykładów obiektów budowlanych, wymiarów, znaków, tekstów i chmurek:

-
Widoki rysunku uwzględniają obiekty budowlane lub obszary w modelu, które zostały wybrane do uwzględnienia na rysunku. Rozmiar widoku rysunku jest dostosowywany automatycznie w taki sposób, aby w razie potrzeby zmieścić więcej zawartości. Widoki rysunku mogą przedstawiać obiekty budowlane pokazane z różnych stron (góra, przód, tył, dół) lub w postaci przekrojów. Ustawienia widoku, na przykład jego głębokość i skalę, można dostosowywać.
Przykład rysunku zestawczego z widokiem montażowym elewacji i widokami detali:

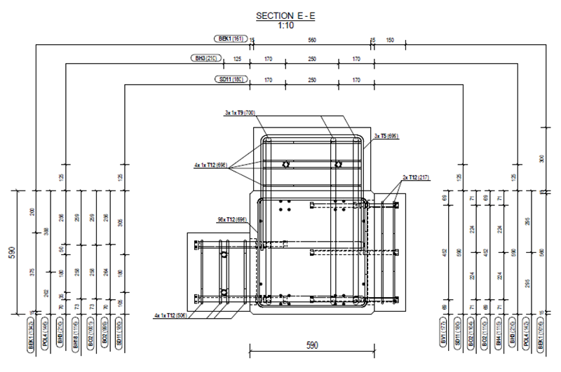
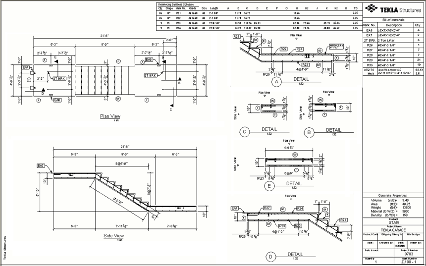
Przykład połączonego rysunku formy i zbrojenia przedstawiającego schody ze spocznikami, zawierającego dwa widoki główne oraz kilka widoków detali:

Przykład rysunku zespołu belki z jednym widokiem głównym i widokiem przekroju:

-
Układ rysunku definiuje:
-
Format rysunku, a także odstępy między ramką rysunku a widokami oraz między widokami rysunku
-
Zestaw tabel zawierający tabelę rewizji, blok tytułowy, listę materiałów, zestawienie materiałowe i uwagi ogólne.
Dane w tabelach pochodzą bezpośrednio z danych modelu. Można tworzyć tabele w Edytorze szablonów, a także dodawać tabele w układzie rysunku i dostosowywać ustawienia układu w Edytorze układu.
Poniżej przedstawiono przykład typowego układu rysunku wykonawczego:

(1) Marginesy między ramką rysunku a znajdującymi się najbardziej na zewnątrz widokami
(2) Odstępy między widokami
(3) Widok z góry
(4) Widok z przodu
(5) Widoki przekroju A-A oraz B-B
(6) Ramka rysunku
(7) Plan orientacyjny
(8) Lista materiałów
(9) Tabela rewizji
(10) Blok tytułowy rysunku
(11) Znaczniki gięcia
-
Predefiniowane ustawienia rysunku
Środowisko zawiera predefiniowane ustawienia rysunków dostosowane do różnych celów, na wielu poziomach.
W przypadku tworzenia rysunku po raz pierwszy jedyne, co trzeba zrobić, to wybrać najbardziej odpowiedni plik predefiniowanych ustawień rysunku z listy w oknie dialogowym właściwości rysunku.
Zauważ, że ustawienia na poziomie rysunku określają również, który układ jest używany.
Można te ustawienia zmodyfikować i zapisać własne pliki ustawień do wykorzystania przy przyszłych rysunkach.
Poniżej znajduje się przykład listy ustawień rysunku na rysunku zestawczym:

Czynności przed utworzeniem rysunków w Tekla Structures
-
Rysunki można tworzyć na dowolnym etapie projektu, jednak w celu zminimalizowania nakładu pracy należy przed utworzeniem rysunku w możliwie jak najszerszym zakresie przeprowadzić detalowanie i dokończyć numerację. Numeracja jest warunkiem koniecznym do tworzenia rysunków pojedynczych elementów, rysunków zespołów i rysunków zespołów betonowych.
-
Upewnij się, że klasyfikacje i nazewnictwo obiektów w modelu są zgodne z filtrowaniem. Postępuj zgodnie z wytycznymi obowiązującymi w firmie.
-
W modelu utwórz wszystkie wymagane widoki dla rysunków zestawczych. Widoki rysunku zestawczego będą miały taką samą orientację i zawartość jak widok modelu. Utwórz na przykład widok montażowy elewacji lub widok rzutu stropu. Dobrym pomysłem jest dopasowanie obszaru roboczego w widoku modelu za pomocą dwóch punktów w celu wybrania obszaru, który ma być wyświetlany na rysunku.
-
Określ głębokość widoku która ma być używana w rysunkach zestawczych. Ustaw żądaną głębokość widoku w początkowym widoku modelu, aby zapewnić sobie wydajny i przejrzysty proces pracy. W rysunkach będzie używana głębokość określona dla tego widoku w modelu.
-
Określ, których predefiniowanych ustawień i którego układu rysunku chcesz użyć. Wybierz odpowiednie ustawienia domyślne i układ dostępny w środowisku.
Tworzenie rysunku zestawczego
W Twoim pierwszym projekcie zamysł jest taki, aby utworzyć rysunek zestawczy (GA) przy wykorzystaniu predefiniowanych ustawień z używanego środowiska, a następnie ręcznie zmodyfikować rysunek w trybie rysunku zgodnie z potrzebami.
Aby uzyskać więcej informacji na temat rysunków zestawczych, zobacz Tworzenie rysunków zestawczych i Właściwości rysunku zestawczego.
Modyfikowanie rysunku zestawczego
W trybie rysunku ręcznie zmodyfikuj rysunek, aby uzyskać żądany wynik.
Jeśli wynik jest zadowalający, użyj tego rysunku jako szablonu dla tworzenia rysunków w przypadku innych modeli o podobnej zawartości. Można również używać rysunków w bieżącym projekcie jako szablonów w przyszłych projektach.
Poniżej przedstawiono przykład rysunku planu fundamentów.
Aby wyświetlić rysunek w pełnym rozmiarze, kliknij prawym przyciskiem myszy tutaj i wybierz opcję otwarcia rysunku PDF w innym oknie przeglądarki.

(1) Wymiary siatki
(2) Znaki elementów
(3) Znaki przekrojów A-A, B-B i C-C
(4) Wymiary ręczne
(5) Widoki przekrojów A-A, B-B i C-C
(6) Znak grupy prętów
(7) Znak zbrojenia ze szkicem pręta
(8) Znaki poziomu
(9) Tabela rewizji
(10) Tabela bloku tytułowego rysunku
(11) Ramka i margines rysunku
Tworzenie rysunku produkcyjnego prefabrykatów
Ponieważ jest to pierwszy projekt, zalecamy utworzenie rysunku produkcyjnego prefabrykatów przy użyciu predefiniowanych ustawień ze środowiska, a następnie ręczne zmodyfikowanie rysunku w trybie rysunku zgodnie z potrzebami.
Aby uzyskać więcej informacji na temat rysunków zespołów betonowych, zapoznaj się z sekcjami Tworzenie rysunków produkcyjnych i Właściwości rysunku zespołu betonowego.
Modyfikowanie rysunku produkcyjnego prefabrykatów
W trybie rysunku ręcznie zmodyfikuj rysunek produkcyjny prefabrykatów, aby uzyskać żądany wynik.
Jeśli wynik jest zadowalający, użyj tego rysunku jako szablonu dla tworzenia rysunków w przypadku podobnych zespołów betonowych.
Poniżej znajduje się przykład rysunku szalunkowego zespołu betonowego.
Aby wyświetlić rysunek w pełnym rozmiarze, kliknij prawym przyciskiem myszy tutaj i wybierz opcję otwarcia rysunku PDF w innym oknie przeglądarki.

(1) Uwaga powiązana
(2) Utworzony automatycznie widok 3D
(3) Symbol (środek ciężkości)
(4) Linia
(5) Tekst
(6) Detal 2D z Biblioteka rysunków 2D lub obraz
(7) Zestawienie kształtów gięcia z polami graficznymi szkiców prętów
(8) Tabela listy materiałów z wierszem nagłówka tabeli, wierszami zawartości tabeli, wierszem całkowitego ciężaru zbrojenia i wierszem całkowitego ciężaru zespołu betonowego
(9) Wnęka z liniami ukrytymi
(10) Element betonowy
(11) Element osadzony/zbrojenie
(12) Wymiary całkowite utworzone automatycznie
(13) Wymiary wnęki utworzone automatycznie
(14) Wymiary filtra utworzone automatycznie
(15) Widok szalunku z przodu
(16) Znak przekroju A-A
(17) Kontur elementu
(18) Etykieta wymiaru
(19) Widok przekroju A-A utworzony automatycznie
(20) Znak zbrojenia ze szkicem pręta
(21) Znak grupy prętów
(22) Zbrojenie
(23) Widok zbrojenia z przodu
(24) Wymiar grupy prętów
(25) Znak detalu
(26) Widok detalu
(27) Tabela bloku tytułowego rysunku
(28) Atrybut (Tekla Corporation) i tekst ustalony (nazwa produktu) w tabeli
(29) Tabela rewizji
(30) Obraz w tabeli
(31) Ramka i margines rysunku
Tworzenie rysunku produkcyjnego elementów stalowych
Ponieważ jest to pierwszy projekt, zalecamy utworzenie rysunku produkcyjnego elementów stalowych przy użyciu predefiniowanych ustawień ze środowiska, a następnie ręczne zmodyfikowanie rysunku w trybie rysunku zgodnie z potrzebami. Poniższe instrukcje odnoszą się do rysunków zespołów.
Aby uzyskać więcej informacji na temat rysunków zespołów, zobacz Tworzenie rysunków produkcyjnych i Właściwości rysunku zespołu.
Modyfikowanie rysunku produkcyjnego elementów stalowych
W trybie rysunku ręcznie zmodyfikuj rysunek produkcyjny elementów stalowych, aby uzyskać żądany wynik.
Jeśli wynik jest zadowalający, użyj tego rysunku jako szablonu dla tworzenia rysunków w przypadku podobnych zespołów.
Poniżej przedstawiono przykład rysunku zespołu słupa.
Aby wyświetlić rysunek w pełnym rozmiarze, kliknij prawym przyciskiem myszy tutaj i wybierz opcję otwarcia rysunku PDF w innym oknie przeglądarki.

(1) Tabela położenia siatki wskazuje, na której linii siatki znajduje się zespół w modelu
(2) Przekrój A-A utworzony automatycznie, ręczne znaki oraz wymiary
(3) Znaki spoin modelu
(4) Znaki elementów
(5) Znaki przekrojów A-A, B-B i C-C
(6) Widok z przodu
(7) Znak śruby
(8) Śruby
(9) Słup C/54
(10) Kontur słupa
(11) Ręczny znak przekroju C-C (bez widoku przekroju). Identyfikator to C-C, aby wskazać, że ten przekrój jest identyczny z przekrojem C-C, który ma widok przekroju.
(12) Przekrój C-C utworzony automatycznie, ręczne znaki oraz wymiary
(13) Widok z góry
(14) Śruby, blachy i znaki ukryte przez inne elementy
(15) Ramka i margines rysunku
(16) Tabela rewizji
(17) Blok tytułowy rysunku
(18) Tabela odwołań wskazująca całkowitą liczbę elementów głównych na rysunku
(19) Tabela listy materiałów
(20) Wymiary: większość wymiarów to automatyczne Wymiary zintegrowane. Wymiary widoku przekroju są ręczne.
(21): Przekrój B-B utworzony automatycznie, ręczne znaki oraz wymiary






















