Verbeterde tekeningautomatisering: beter klonen en bijwerken van aanzichten en maatlijnen
Tekla Structures 2025 biedt verbeteringen in het klonen van tekeningen en updates, met name voor wat betreft het plaatsen van maatlijnen en tekeningaanzichten.
- De logica voor het plaatsen van het aanzicht is verbeterd. Nu wordt voorkomen dat aanzichten overlappen, verkeerd zijn uitgelijnd en aanzichten buiten het tekeningkader worden geplaatst. De aanzichten in de tekeningen worden nu op dezelfde manier geplaatst als in de templatetekeningen. Ook wordt voortaan voldaan aan de relatieve locatie van de doorsneden. Vroeger waren er veel problemen met overlappende aanzichten en gevallen waarin aanzichten buiten het tekeningkader werden geplaatst, wat extra werk kostte om de tekeningen op te schonen.
- De plaatsingslogica van maatlijnen en het mechanisme om het overlappen van maatlijnen met andere teksten te voorkomen, is verbeterd, In de gekloonde tekeningen worden maatlijnen nu op dezelfde manier geplaatst als in de templatetekeningen. De logica van de maatvoering van boutobjecten bij het bijwerken van een tekening is ook verbeterd. Voorheen werden in gekloonde tekeningen de maatlijnen niet altijd geplaatst volgens het oorspronkelijke plaatsingspatroon in de templatetekening. Dat leverde weer extra werk op om maatlijnen naar geschikte locaties te verplaatsen.
Vanwege verbeteringen in het klonen en bijwerken van tekeningen werken de volgende Tekla Structures-functies nu betrouwbaarder en met betere resultaten:
- Slim maken in het maken van productietekeningen
- Klonen via de Documentmanager
- Algemeen gedrag bij bijwerken van tekeningen veroorzaakt door wijzigingen in het model
Voorbeelden van verbeteringen
Klik op de koppeling Afbeelding op ware grootte onder elke afbeelding om de afbeeldingen in volledige grootte te bekijken. U kunt ook met de rechtermuisknop op de afbeelding klikken en het gewenste commando selecteren om de afbeelding op een nieuw tabblad te openen.
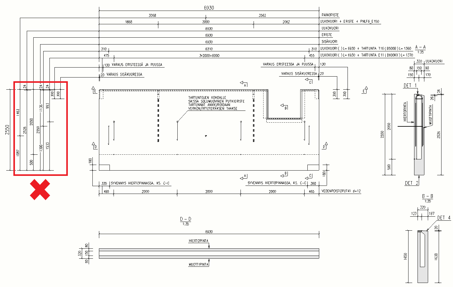
Voorbeeld 1a: vóór
De volgorde van de maatlijnen is onjuist, met onregelmatige afstanden tussen de maatlijnen.

Afbeelding op volledige grootte
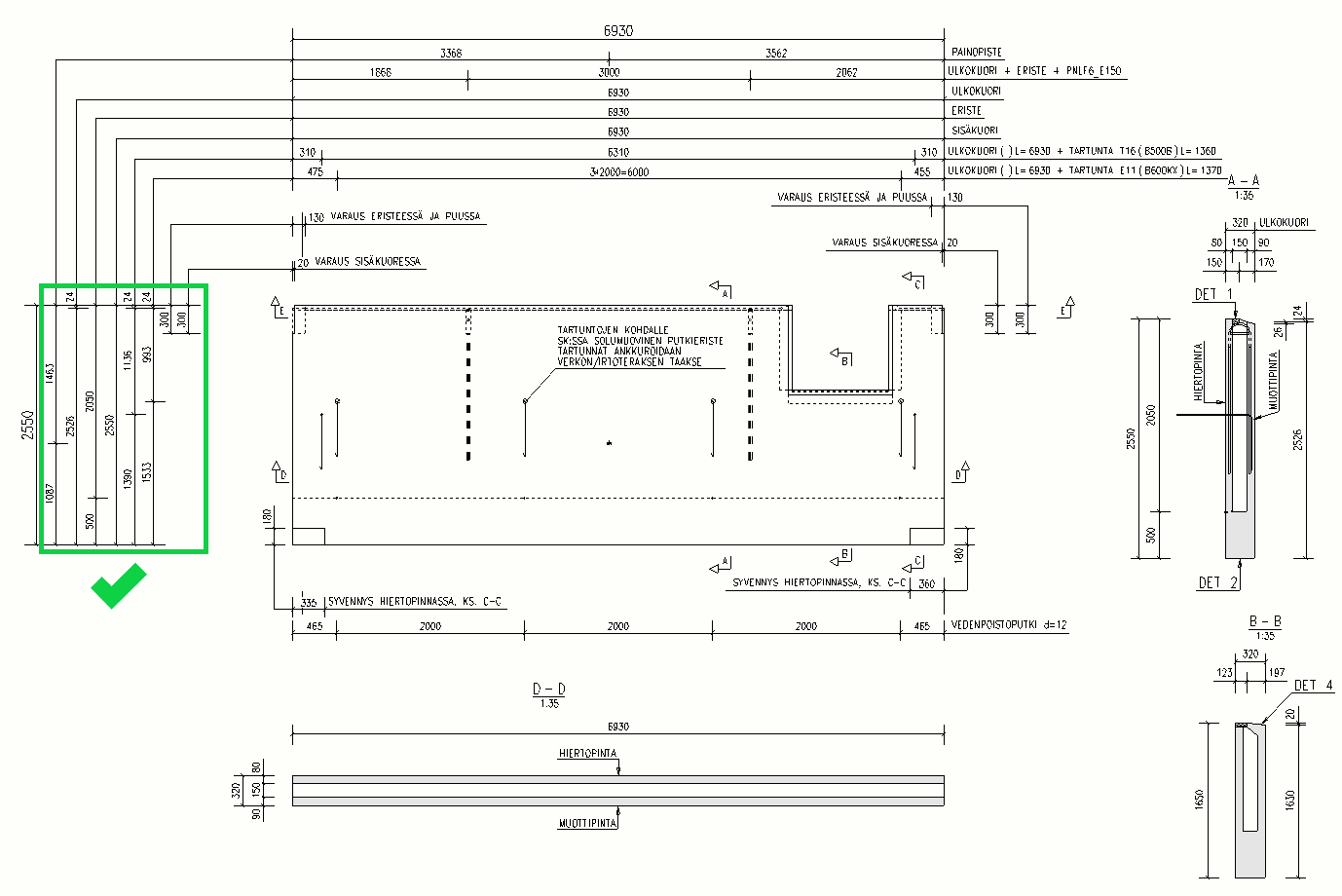
Voorbeeld 1b: na
De volgorde van de maatlijnen is correct, met regelmatige afstanden tussen de maatlijnen.

Afbeelding op volledige grootte
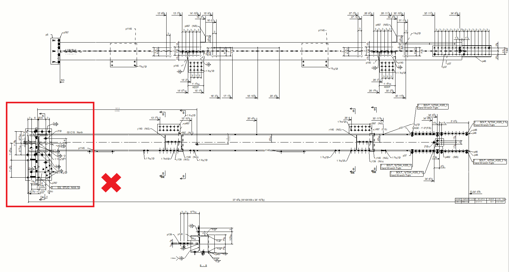
Voorbeeld 2a: vóór
Hoofdaanzichten en doorsneden overlappen.

Afbeelding op volledige grootte
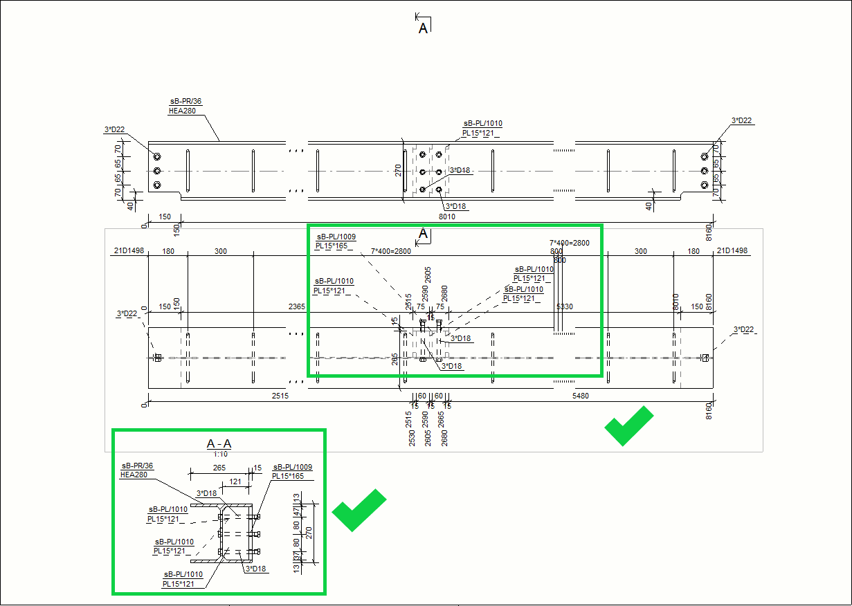
Voorbeeld 2b: na
Aanzichten zijn uitgelijnd en geplaatst zonder elkaar te overlappen.

Afbeelding op volledige grootte
Voorbeeld 3a: vóór
De volgorde van de maatlijnen is niet juist, met onregelmatige afstanden tussen de maatlijnen.

Afbeelding op volledige grootte
Voorbeeld 3b: na
De volgorde van de maatlijnen is correct, met regelmatige afstanden tussen de maatlijnen.

Afbeelding op volledige grootte
Voorbeeld 4a: vóór
De volgorde van de maatlijnen is niet juist en sommige labels overlappen met andere objecten.

Afbeelding op volledige grootte
Voorbeeld 4b: na
De volgorde van de maatlijn is correct en labels worden geplaatst zonder overlapping.

Andere verbeteringen bij klonen en bijwerken
- De referentiepunten voor bemating blijven nu beter bewaard bij klonen.
- Het verwerken van radiale maatlijnen bij het bijwerken en klonen van tekeningen is verbeterd.
- Vroeger konden in gekloonde tekeningaanzichten handmatig gemaakte maatlijnen voor staafobjecten of instortvoorzieningen in bepaalde gevallen niet-associatief zijn. Dit probleem is nu opgelost.
- De detailvensters worden bij het klonen niet meer gekoppeld aan objecten die niet bestaan in het aanzicht.