Merktekeningen

Tekla Structures
2021
Tekla Structures

Merktekeningen

Merktekeningen zijn specifieke werkplaatstekeningen die fabricagegegevens voor één merk weergeven.Een merk bestaat meestal uit een hoofdonderdeel en aansluitende onderdelen.Aansluitende onderdelen worden gelast of aan een hoofdonderdeel gebout.In merktekeningen worden grotere papierformaten gebruikt dan in onderdeeltekeningen, bijvoorbeeld A3 of het Brits-Amerikaanse formaat 11" x 17".

U kunt met lint- of contextmenucommando's merktekeningen maken.Klik voor meer informatie op onderstaande koppelingen:

Onderdeel-, merk- of betontekeningen maken

Onderdeel-, merk- en betontekeningen maken met opgeslagen instellingen in de Tekeningendatabase

Tekeningen maken met de voorwaarden of wizards in de Tekeningendatabase

Tekening Generator maken

Raadpleeg voor details over merktekeningeigenschappen Merktekening eigenschappen

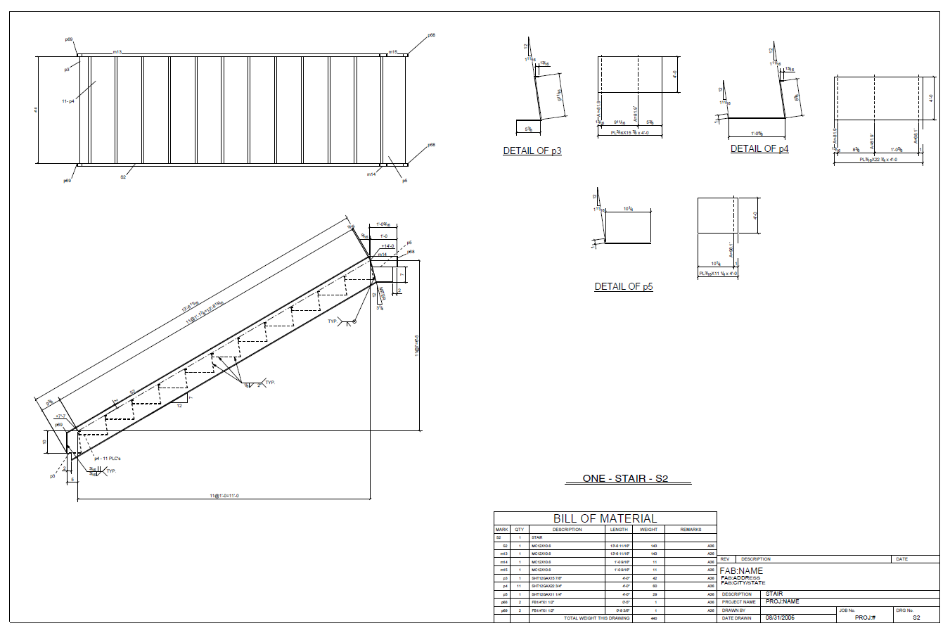
Voorbeelden van merktekeningen

Liggermerktekening:

Trapmerktekening:

Regelmerktekening:

Was dit nuttig?
Indienen
Vorige
Volgende