향상된 도면 자동화 - 뷰 및 치수의 복제 및 업데이트 기능 향상
Tekla Structures 2025에서는 특히 치수 및 도면 뷰의 배치와 관련하여 도면 복제 및 업데이트가 개선되었습니다.
- 뷰 중복 및 오정렬을 방지하고, 도면 프레임 외부에 뷰가 배치되지 않도록 뷰 배치 로직이 개선되었습니다. 이제 도면의 뷰가 템플릿 도면에 배치된 방식과 유사하게 배치됩니다. 또한 단면 뷰의 상대 위치가 존중됩니다. 이전에는 뷰가 겹치는 문제와 뷰가 도면 시트 외부에 배치되는 경우가 많아 추가로 도면 정리 작업이 필요했습니다.
- 치수 배치 로직과 더불어 치수가 다른 텍스트와 겹치는 것을 방지하는 메커니즘이 개선되어 이제 복제된 도면의 치수가 템플릿 도면에 배치된 방식과 유사하게 배치됩니다. 도면 업데이트 시 볼트 객체 치수 생성 로직도 개선되었습니다. 이전에는 치수가 템플릿 도면에 사용된 원 배치 패턴에 따라 복제된 도면에 배치되지 않는 경우가 있어 치수를 적절한 위치로 이동해야 할 때 추가 작업이 발생했습니다.
도면 복제 및 업데이트의 개선 사항 덕분에 다음 Tekla Structures 기능이 더욱 안정적으로 작동하고 보다 우수한 결과를 제공합니다.
- 제작 도면 생성의 스마트 생성
- 문서 관리자를 통한 복제
- 모델 변경으로 인한 일반 도면 업데이트 동작
개선 사항 예
이미지를 전체 크기로 보려면 각 이미지 아래에 있는 전체 크기 이미지 링크를 클릭합니다. 이미지를 마우스 오른쪽 버튼으로 클릭하고 적절한 명령을 선택하여 새 탭에서 이미지를 열 수도 있습니다.
예 1a: 이전
치수 줄 간격이 불규칙하여 치수 순서가 올바르지 않습니다.

예 1b: 이후
치수 줄 간격이 일정하여 치수 순서가 올바릅니다.

예 2a: 이전
메인 뷰와 단면 뷰가 겹칩니다.

예 2b: 이후
뷰가 겹치지 않고 정렬 및 배치됩니다.

예 3a: 이전
치수 줄 간격이 불규칙하여 치수 순서가 올바르지 않습니다.

예 3b: 이후
치수 줄 간격이 일정하여 치수 순서가 올바릅니다.

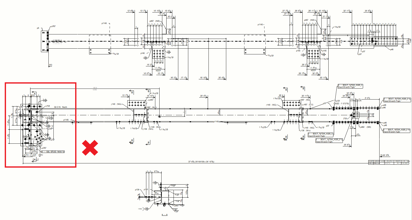
예 4a: 이전
치수 순서가 올바르지 않으며 일부 마크가 다른 객체와 겹칩니다.

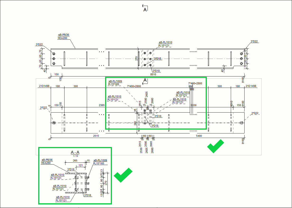
예 4b: 이후
치수 순서가 올바르며 마크가 겹치지 않고 배치됩니다.

복제 및 업데이트의 기타 개선 사항
- 복제 시 이제 녹오프 치수가 효과적으로 보존됩니다.
- 도면 업데이트 및 도면 복제 시 반경 방향 치수 처리가 개선되었습니다.
- 이전에는 복제된 도면 뷰에서 철근 객체 또는 임베디드에 대해 수동으로 생성된 치수가 연결되지 않는 경우가 있었습니다. 현재 이 문제가 수정되었습니다.
- 복제 시 더 이상 상세 뷰가 뷰에 존재하지 않는 객체와 연결되지 않습니다.