図面の自動化の向上 - ビューと寸法の複製および更新の改良
Tekla Structures 2025 では、特に寸法と図面ビューの配置に関連して、図面の複製と更新が改良されています。
- ビューの重なりや位置ずれ、図面枠外へのビューの配置が起きないよう、ビューの配置ロジックが改良されました。図面内のビューが、テンプレート図面内のビューと同様の方法で配置されるようになりました。さらに、断面図の相対位置も考慮されるようになりました。以前は、ビューの重なりの問題が多数発生したり、ビューが図面シートの外側に配置されて図面をクリーンアップする余分な作業が発生したりすることがありました。
- 寸法配置ロジックと、寸法が他のテキストと重なるのを防ぐメカニズムが改良され、複製された図面の寸法がテンプレート図面に配置されたときと同様に配置されるようになりました。図面更新時のボルト オブジェクト寸法内容ロジックも改良されました。以前は、複製された図面に対して、テンプレート図面で使用されている元の配置パターンに従って寸法が配置されるとは限らなかったため、寸法を適切な位置に移動するときに余分な作業が発生していました。
図面の複製と更新が改良されたあめ、Tekla Structures の以下の機能がより確実に動作し、より良い結果が得られるようになりました。
- 製作図の作成における [スマートクリエイト]
- [ドキュメント管理] を通じた複製
- モデルの変更により生じた一般的な図面更新動作
改良点の例
画像をフルサイズで表示するには、各画像の下にある [フルサイズ画像] リンクをクリックします。画像を右クリックし、適切なコマンドを選択して新しいタブで画像を開くこともできます。
例 1a: 変更前
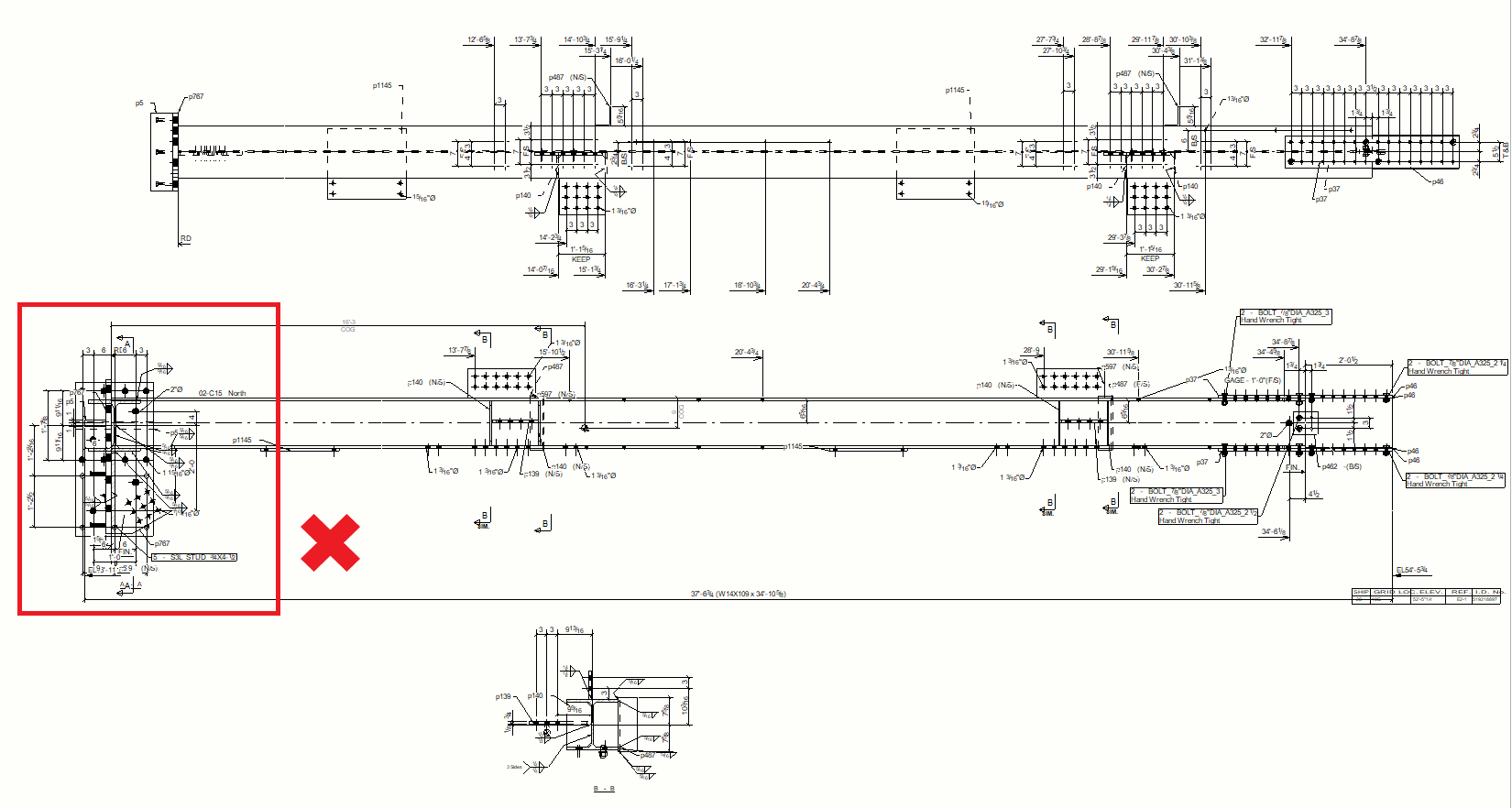
寸法線間の距離が不規則になっており、寸法の順序が正しくありません。

例 1b: 変更後
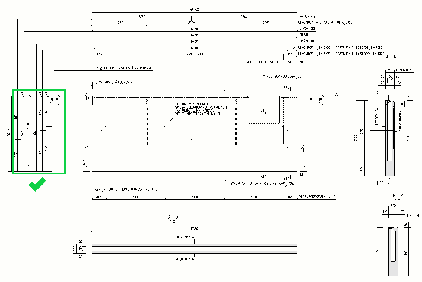
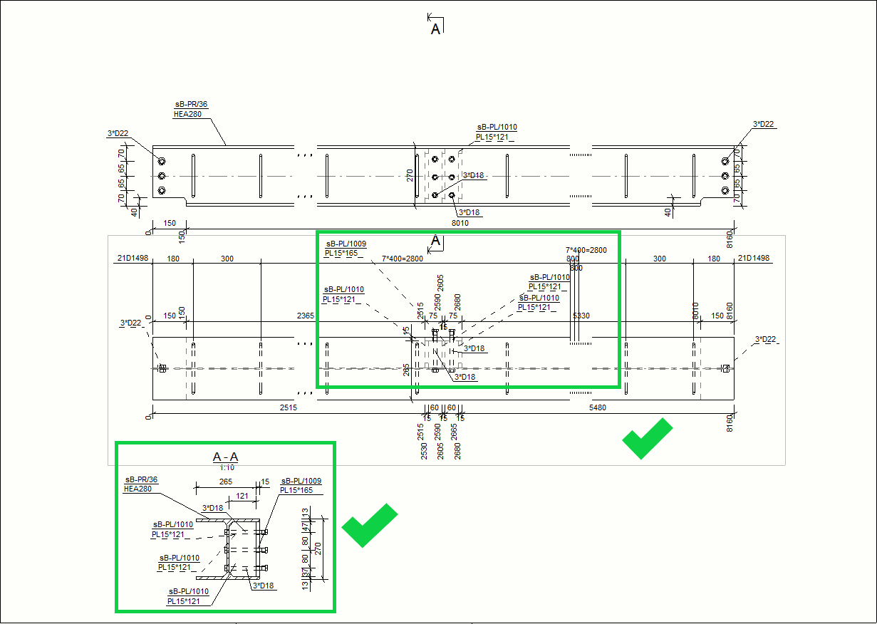
寸法線間の間隔が一定になっており、寸法の順序が正しくなっています。

例 2a: 変更前
メイン ビューと断面図が重なっています。

例 2b: 変更後
ビューは重ならずに整列して配置されます。

例 3a: 変更前
寸法線の間隔が不規則であり、寸法の順序が正しくありません。

例 3b: 変更後
寸法線間の間隔が一定になっており、寸法の順序が正しくなっています。

例 4a: 変更前
寸法の順序が正しくなく、一部のマークが他のオブジェクトと重なっています。

例 4b: 変更後
寸法の順序は正しく、マークは重ならずに配置されます。

複製と更新における他の改良点
- 複製時に控え寸法がより適切に保持されるようになりました。
- 図面の更新および図面の複製における半径寸法の処理が改良されました。
- 以前は、複製された図面ビューで、鉄筋オブジェクトまたは埋込み材の手動で作成された寸法が、特定のケースでは関連付けられないことがありました。この問題は修正されました。
- 複製では、ビューに存在しないオブジェクトに部分詳細ビューが関連付けられなくなりました。