一般図への自動的寸法の追加

Tekla Structures
変更済み: 18 11月 2024
2025
Tekla Structures

一般図への自動的寸法の追加

一般図の [一般図 - 寸法内容プロパティ] ダイアログ ボックスで、部材、基準線および外形寸法を作成し、それらの作成方法を制御できます。これらのオプションのさまざまな組み合わせをテストして、どのような寸法内容の結果が得られるのかを確かめることができます。

寸法一般図

  1. [図面とレポート] タブで 図面のプロパティ > 一般図 をクリックします。
  2. 必要なものとできる限り近い図面プロパティを読み込みます。
  3. [寸法内容...] をクリックします。
  4. 寸法を選択して、関連する設定を作成または変更します。
  5. [基準線] タブで、基準線寸法、全体的な寸法作成設定、および寸法の位置を調整します。
  6. [部材] タブで、部材寸法作成設定および寸法の位置を調整します。
  7. [OK] をクリックし、図面を作成します。

一般図の寸法設定におけるオブジェクト グループ

一般図の寸法設定において、オブジェクト グループという用語は、さまざまな寸法線上でオブジェクト グループの寸法内容の設定を行う目的でグループ化されたオブジェクトを指します。

オブジェクトグループ (選択フィルター) はモデルで作成したものを使用するか、[一般図 - 寸法内容プロパティ]ダイアログ ボックスの [部材] タブで [オブジェクトグループ] ボタンを使用して必要なグループを作成できます。たとえば、特定のサイズの梁のオブジェクト グループを作成できます。

異なる寸法線上のオブジェクト グループの寸法設定

オブジェクト グループを使用して、別々の寸法線に寸法を表示する各オブジェクトを指定します。

  1. [図面とレポート] タブで、[図面プロパティ] > [一般図] をクリックします。
  2. [寸法内容] をクリックして、[部材] タブに移動します。
  3. [ルールを追加] をクリックし、[オブジェクト グループ] 列のリスト ボックスからルールを選択して、目的のオブジェクト グループを寸法内容のルールに追加します。
  4. 必要に応じて、[オブジェクトグループ] をクリックして新しいオブジェクト グループを作成できます。たとえば、異なるサイズの梁に対するオブジェクト グループのルールを追加します。
  5. 各オブジェクト グループに対して、グループ内のオブジェクトのタイプに応じて [配置] オプション、[水平位置] オプション、および [垂直位置] オプションを選択します。

    たとえば梁グループに対して、[水平位置][左側] に設定し、梁の寸法を基準線の左側に配置します。

  6. 必要に応じて、図面内のそれぞれのオブジェクト グループで表示するテキスト注記を [注記] 列に入力します。たとえば、梁のサイズを入力します。

この例では、寸法設定する各梁サイズに 1 つの別々の梁グループが作成され、それぞれのグループにおいて寸法の位置が選択されて、各グループで表示する注記が追加されています。

例:基準線と外形寸法

以下の例では、[基準線] タブで選択した設定に従って、一般図で基準線と外形寸法がどのように表示されるかを示しています。

自動部材寸法設定

[基準線寸法] = [オン]

[全体の寸法] = [オン]

[水平] = [左]

[垂直] = [上]

[基準線寸法] = [オン]

[外形寸法] = [オフ]

[水平] = [左]

[垂直] = [上]

例:引き出し線の最大長オプション

以下の例では、[部材] タブで [引き出し線の最大長] オプション [基準線外の寸法] および [基準線内の寸法] に値を設定した際に、どのように寸法が配置されるかを示します。

自動部材寸法設定

[基準線外の寸法] に値が設定されています。

[基準線内の寸法] に値が設定されています。

例:一部がビューの外に出る部材の寸法設定

以下の例は、[一般図 - 寸法内容プロパティ] ダイアログ ボックスの [部材] タブで [完全には表示されない部材を含める] オプションを [オン] に設定した際に部材の寸法がどのように表示されるかを示します。

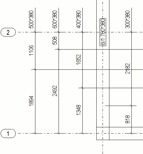
例:基準線外の寸法の数の制限

以下の例は、一般図の寸法プロパティで、[部材] タブの [基準線外の寸法の最大数] オプションの値を 3 に設定した場合の部材寸法の表示を示します。Tekla Structures によって、3 つの寸法が基準線の外側に、4 つ目が基準線の内側に作成去れています。

例:部材寸法の配置

以下の例では、[部材] タブで選択したさまざまな配置設定によって部材寸法が一般図にどのように配置されるかを示します。

以下の例では、[配置][基準線内] に設定されており、これによりすべての寸法は基準線の横または近くに配置されます。

以下の例では、[配置][基準線外] に設定されており、これによりすべての寸法は基準線の外側に配置されます。

以下の例では、[水平位置][左側] に設定されており、これにより水平部材のすべての寸法は基準線の左側に配置されます。

以下の例では、[水平位置][右側] に設定されており、これにより水平部材のすべての寸法は基準線の右側に配置されます。

以下の例では、[水平位置][両側分配] に設定されており、これにより水平部材のすべての寸法は、寸法を表示している部材に最も近い基準線の側に配置されます。

以下の例では、[垂直位置][上] に設定されており、これにより垂直部材のすべての寸法は基準線の上に配置されます。

以下の例では、[垂直位置][下] に設定されており、これにより垂直部材のすべての寸法は基準線の下に配置されます。

以下の例では、[垂直位置][両側分配] に設定されており、これにより垂直部材のすべての寸法は、寸法を表示している部材に最も近い基準線の側に配置されます。

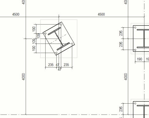
例:アンカープランの寸法設定

以下の例は、さまざまな状況でアンカープランの寸法がどのように表示されるかを示します。

まず、すべての列が基準線交点に配置されている一般的な状況の例を示します。

柱の参照点が基準線上にない場合は、基準線を基準とした参照点の寸法が Tekla Structures により自動的に設定されます。下の例を参照してください。

柱が図面に対して回転している場合、回転した柱も自動的に寸法表示されます。下の例を参照してください。

詳細設定 XS_ANCHOR_BOLT_PLAN_USE_VIEW_COORDSYS_FOR_BOLT_DIMENSIONSFALSE に設定して図面を作成すると、すべての寸法が図面の座標系に表示されます。

役に立ちましたか?
前へ
次へ