初めての Tekla Structures 図面
Tekla Structures 図面を初めて使用する場合は、この記事をお読みください。
次の内容について説明します。
-
Tekla Structures 図面に固有の内容と図面に含まれるもの
-
図面を作成する前にすべきこと
-
環境の事前定義された設定を使用して初めてのプロジェクトで図面を作成する方法
-
図面モードで作成された図面を手動で変更する方法
詳細については、青色のリンクをクリックしてください。これはサンプル リンクです。
Tekla Structures 図面の基本
-
Tekla Structures は、図面は 3D モデル構造を 2D で表現するモデルへの入り口であり、オブジェクトの寸法やモデル データから派生するその他のマークも表示されます。建築オブジェクト、マーク、寸法を含む図面ビューの例を次に示します。

-
Tekla Structures では、一般図、単品図、製品図、キャスト ユニット図 、マルチ図を取得できます。
最新状態の図面
次の理由により、Tekla Structures 図面は常に最新の状態になります。
-
図面に表示される建築オブジェクトは、モデル内に作成されたモデル オブジェクトとまったく同じです。図面では、建築オブジェクトの表示方法は変更できますが、建築オブジェクトの形状や場所の変更、および建築オブジェクトの削除はできません。建築オブジェクトの変更はすべて、モデルで行います。
-
図面内のほとんどのオブジェクトは連動しており、対応するモデル オブジェクトが変更されると、自動的に更新されます。たとえば、モデル オブジェクトのサイズを変更すると、関連付けられている寸法点が図面内の対応するオブジェクトと共に移動し、寸法が再計算されて、マークで関連データが更新されます。図面に手動で加えられた変更は失われません。寸法点が移動しない場合、建築オブジェクトに関連付けられていない点に注意してください。
図面オブジェクト、ビュー、図面レイアウト
図面オブジェクトは、図面ビューの内部で整理され、選択した設定に従って選択した図面レイアウトに配置されます。
-
図面オブジェクトには、建築オブジェクト (部材、ボルト、溶接、角処理、鉄筋、仕上げ材など)、注記オブジェクト (マーク、注記、寸法、テキスト、リンクされたオブジェクト、参照オブジェクトなど)、スケッチ オブジェクト (線、四角形、クモ マーク、円など) があります。
これらのオブジェクトはすべて調整できます。
建築オブジェクト、寸法、マーク、テキスト、クモ マークの例を示します。

-
図面ビューは、図面への追加対象として選択したモデル内の建築オブジェクトや建物領域を含むコンテナのような役割を果たします。図面ビューのサイズは、より多くの内容が収まるように必要に応じて自動的に調整されます。図面ビューでは、建築オブジェクトをさまざまに異なる方向 (上面、正面、背面、下面) から表示したり、断面を表示したりすることができます。ビュー デプスや縮尺などのビュー設定は調整できます。
立面図 (軸組図) と部分詳細ビューがある一般図の例:

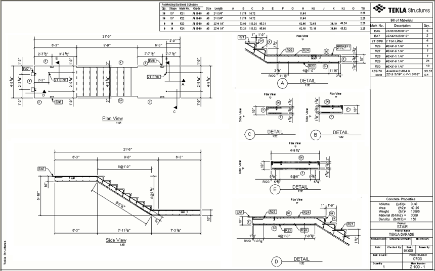
2 つのメイン ビューといくつかの部分詳細ビューを備えた、踊り場のある階段の結合された形状と鉄筋図の例:

1 つのメイン ビューと断面図を備えた、梁の製品図の例:

-
図面レイアウトでは、以下の内容が定義されます。
-
リビジョン テーブル、表題欄、材質リスト、部品表、および一般的な注記が含まるテーブル セット
テーブル内のデータは、モデル データから直接取得されます。テンプレート エディターでテーブルを作成し、図面レイアウトにテーブルを追加して、レイアウト エディターでレイアウト設定を調整できます。
以下は、一般的な製作図面レイアウトの例です。

(1) 図面枠と一番外側のビューの間の余白
(2) ビュー間の間隔
(3) 上面ビュー
(4) 正面ビュー
(5) 断面図 A-A と B-B
(6) 図面枠
(7) キー プラン
(8) 材質リスト
(9) リビジョン テーブル
(10) 図面の表題欄
(11) 折り目マーク
事前定義の図面設定
環境には、さまざまな目的に応じて、複数のレベルで事前定義された図面設定が含まれています。
初めて図面を作成するときは、図面プロパティ ダイアログ ボックスのリストから最適な事前定義の図面設定ファイルを選択するだけです。
使用するレイアウトは、図面レベル設定でも定義されることに注意してください。
これらの設定を変更し、後で図面に使用できるように独自の設定ファイルを保存できます。
一般図の図面設定のリストの例を次に示します。

Tekla Structures での図面作成前の準備
-
プロジェクトの任意の段階で図面を作成することができますが、やり直しを最小限に抑えるため、ディテールをできるだけ多く取得し、図面の作成前にナンバリングを終了してください。ナンバリングは、単品図、製品図、キャスト ユニット図を作成するための前提条件となります。
-
モデル内のオブジェクトの分類と名前付けがフィルターに一致することを確認します。会社の規則に従ってください。
-
モデルで、一般図に必要なすべてのビューを作成します。一般図ビューの配置と内容は、モデル ビューと同じになります。たとえば、立面図 (軸組図) または床伏図ビューを作成します。2 つの点を使用してモデル ビューで作業領域を調整し、図面に表示する領域を選択することをお勧めします。
-
一般図で使用するビュー デプスを決定します。初期モデル ビューで目的のビュー デプスを設定して、効率的で透過的なワークフローを実現します。図面では、モデル内のビューに定義されたデプスが使用されます。
-
使用する事前定義の設定と図面レイアウトを決定します。環境で使用できる適切なデフォルト設定とレイアウトを選択します。
一般図の作成
一般図の変更
図面モードで、目的の結果を得るために図面を手動で変更します。
結果に満足したら、この図面を、他の同様のモデルの内容で図面を作成するためのテンプレートとして使用します。今後のプロジェクトでは、現在のプロジェクトの図面をテンプレートとして使用することもできます。
以下は基礎平面図の例です。
図面をフルサイズで表示するには、ここを右クリックして、別のブラウザー ウィンドウで PDF 図面を開くオプションを選択します。

(1) 基準線寸法
(2) 部材マーク
(3) 断面マーク A-A、B-B、C-C
(4) 手動寸法
(5) 断面図 A-A、B-B、C-C
(6) 鉄筋グループ マーク
(7) 解説図付き鉄筋マーク
(8) エレベーション マーク
(9) リビジョン テーブル
(10) 図面の表題欄テーブル
(11) 図面枠と余白
プレキャスト製作図の作成
初めてのプロジェクトでは、環境から事前定義の設定を使用してプレキャスト製作図を作成し、必要に応じて図面モードで図面を手動で変更することをお勧めします。
キャスト ユニット図の詳細については、「製作図の作成」および「キャスト ユニット図のプロパティ」を参照してください。
プレキャスト製作図の変更
図面モードで、プレキャスト製作図を手動で変更して目的の結果を得ます。
結果に満足したら、この図面を、類似するキャスト ユニットで使用できるように図面を作成するためのテンプレートとして使用します。
キャスト ユニットの型枠図面の例を次に示します。
図面をフルサイズで表示するには、ここを右クリックして、別のブラウザー ウィンドウで PDF 図面を開くオプションを選択します。

(1) アソシエート マーク
(2) 自動的に作成された 3D ビュー
(3) シンボル (重心)
(4) 線
(5) テキスト
(6) [図面2Dライブラリ] またはイメージからの 2D ディテール
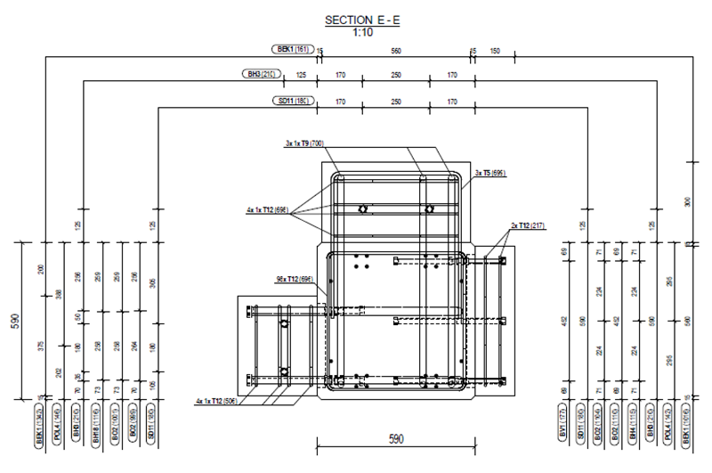
(7) 解説図のグラフィック フィールドのある鉄筋加工図
(8) テーブル ヘッダー行、テーブルの内容の行、全鉄筋重量の行、総キャスト ユニット重量の合計行のある材質リスト テーブル
(9) 陰線のあるへこみ
(10) コンクリート部材
(11) 埋込み材/鉄筋
(12) 自動的に作成された [外形寸法]
(13) 自動的に作成されたリセス寸法
(14) 自動的に作成された [フィルター寸法]
(15) 型枠の正面ビュー
(16) 断面マーク A-A
(17) 部材ポリゴン
(18) 寸法注記
(19) 自動的に作成された断面図 A-A
(20) 解説図付き鉄筋マーク
(21) 鉄筋グループ マーク
(22) 鉄筋
(23) 鉄筋正面ビュー
(24) 鉄筋グループ寸法
(25) 部分詳細マーク
(26) 部分詳細ビュー
(27) 図面の表題欄テーブル
(28) テーブル内の属性 (Tekla Corporation) および固定テキスト (製品名)
(29) リビジョン テーブル
(30) テーブル内のイメージ
(31) 図面枠と余白
鉄骨製作図の作成
鉄骨製作図の変更
図面モードで、鉄骨製作図を手動で変更して目的の結果を得ます。
結果に満足したら、この図面を、類似する製品で使用できるように図面を作成する際のテンプレートとして使用します。
柱製品図の例を次に示します。
図面をフルサイズで表示するには、ここを右クリックして、別のブラウザー ウィンドウで PDF 図面を開くオプションを選択します。

(1) 製品をモデルに配置する際の基準線を示す基準線位置テーブル
(2) 自動的に作成された断面 A-A、手動マーク、および寸法
(3) モデル溶接マーク
(4) 部材マーク
(5) 断面マーク A-A、B-B、C-C
(6) 正面ビュー
(7) ボルト マーク
(8) ボルト
(9) 柱 C/54
(10) 柱の輪郭
(11) 手動断面マーク C-C (断面図なし)。この識別子は、断面図のある C-C 断面とこの断面が同一であることを示す C-C です。
(12) 自動的に作成された断面 C-C、手動マーク、および寸法
(13) 上面ビュー
(14) 他の部材で隠れているボルト、プレート、マーク
(15) 図面枠と余白
(16) リビジョン テーブル
(17) 図面の表題欄
(18) 図面内のメイン部材の総数を示す付記テーブル
(19) 材質リスト テーブル
(20) 寸法: ほとんどの寸法は自動 [統合寸法] です。断面図寸法は手動です。
(21):自動的に作成された断面 B-B、手動マーク、および寸法






















