製品図に含まれる半製品の寸法表示
Not version-specific
Tekla Structures
Environment
Japan
Q:
柱の仕口部を半製品にしました。
この柱の製品図を作成したところ、仕口部に寸法がありません。
他の製品図のように、仕口の寸法を表示する方法はありますか。
A:
ある製品の下層にある半製品(サブアセンブリ)は、上位の製品とは異なるため、製品図に寸法が表示されません。
サブアセンブリの寸法を表示するには、[詳細設定]を開き、次の環境変数の値を”TRUE”に設定します。
XS_IGNORE_SUBASSEMBLY_HIERARCHY_IN_DIMENSIONING
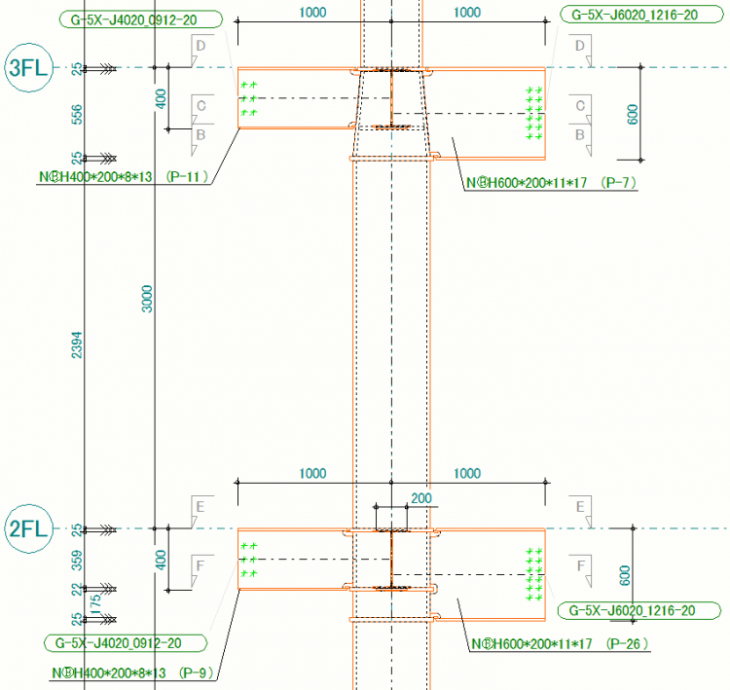
例えば、柱製品の仕口の短柱とダイヤフラムをサブアセンブリにします。
柱の製品図を作成すると、仕口のダイヤフラム位置などの寸法が正確に表示されません。
環境変数”XS_IGNORE_SUBASSEMBLY_HIERARCHY_IN_DIMENSIONING”を”TRUE”に変更すると、サブアセンブリの部材の位置寸法が作成されるようになります。
柱の仕口部を半製品にしました。
この柱の製品図を作成したところ、仕口部に寸法がありません。
他の製品図のように、仕口の寸法を表示する方法はありますか。
A:
ある製品の下層にある半製品(サブアセンブリ)は、上位の製品とは異なるため、製品図に寸法が表示されません。
サブアセンブリの寸法を表示するには、[詳細設定]を開き、次の環境変数の値を”TRUE”に設定します。
XS_IGNORE_SUBASSEMBLY_HIERARCHY_IN_DIMENSIONING
例えば、柱製品の仕口の短柱とダイヤフラムをサブアセンブリにします。
Image
柱の製品図を作成すると、仕口のダイヤフラム位置などの寸法が正確に表示されません。
Image
環境変数”XS_IGNORE_SUBASSEMBLY_HIERARCHY_IN_DIMENSIONING”を”TRUE”に変更すると、サブアセンブリの部材の位置寸法が作成されるようになります。
Image