図面編集時のズームウィンドウについて

Tekla Structures TIPS HINT
Not version-specific
Tekla Structures
Environment
Japan

図面上で寸法の追加や、ラインや修正線コマンド等を使って図面に必要な情報の追加や編集を行う際には、矢印キーやマウスの中ボタンを押した状態での画面移動や、PageUp/PageDownキーやマウスのホイール操作での拡大や縮小操作を使って、位置の指示をする必要があります。
寸法点として指示する点が、隣接している場合には、移動や拡大~縮小操作も必要なく、操作が煩雑になることはないですが、大梁や柱等の部材長が長い部材について寸法を作成する際には、移動や拡大~縮小操作等も組み合わせる必要があり、煩雑な操作が必要となります。
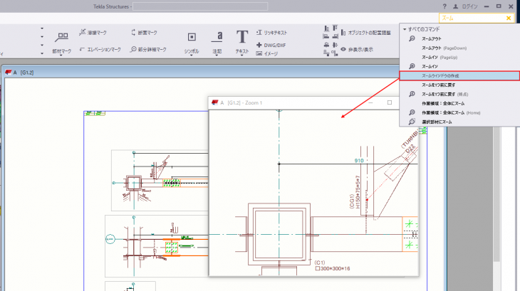
こういったケースでは、指示する位置毎に予めズームウィンドウを作成しておくことで、移動や拡大~縮小をすることなく、それぞれズームウィンドウ上で寸法点等の指示を行うことができます。

ズームウィンドウは、クイック起動から呼び出せ、複数のウィンドウを作成することができます。また、リボンへのコマンド追加やショートカットキーを割り当てにも対応しています。

Image
AAA.png

なお、図面ウィンドウ及び図面のズームウィンドウについては、モデルビュー数の制限(最大9画面)には含まれませんので、必要なビューを複数個作成して、表示することが可能です。

役に立ちましたか?