Aggiunta di quote automatiche ai disegni di progetto e montaggio

Tekla Structures
Modificato: 18 Nov 2024
2025
Tekla Structures

Aggiunta di quote automatiche ai disegni di progetto e montaggio

Nella finestra di dialogo del disegno di progetto e montaggio Progetto/Montaggio - Proprietà quotatura, è possibile creare quote delle parti, della griglia e generali e controllare come vengono create. È possibile sperimentare diverse combinazioni di opzioni per ottenere diversi tipi di effetti di quotatura.

Quota disegni di progetto e montaggio

  1. Nella scheda Disegni & report cliccare su Proprietà disegni > Disegno di progetto/montaggio.
  2. Caricare proprietà del disegno quanto più simili possibile a quelle necessarie.
  3. Cliccare su Quotatura...
  4. Selezionare le quote per creare e modificare le relative impostazioni.
  5. Nella scheda Griglia regolare le impostazioni di creazione delle quote della griglia e generali e il posizionamento delle quote.
  6. Nella scheda Parti regolare le impostazioni di creazione delle quote della parte e il posizionamento delle quote.
  7. Cliccare su OK e creare il disegno.

Gruppi di oggetti nella quotatura dei disegni di progetto e montaggio

Durante la quotatura dei disegni di progetto e montaggio, il termine gruppo di oggetti si riferisce agli oggetti che sono stati raggruppati allo scopo di quotare gruppi di oggetti su diverse linee di quota.

È possibile utilizzare i gruppi di oggetti (filtri di selezione) creati nel modello oppure creare i gruppi necessari nella scheda Parti della finestra di dialogo progetto e montaggio - Proprietà quotatura utilizzando il pulsante Gruppi oggetti. Ad esempio, è possibile creare un gruppo di oggetti per le travi di una determinata dimensione.

Quotatura di gruppi di oggetti su diverse linee di quota

È possibile utilizzare i gruppi di oggetti per specificare oggetti diversi da quotare su linee di quota diverse.

  1. Nella scheda Disegni & Report cliccare su Proprietà disegni > Disegno di progetto/montaggio.
  2. Cliccare su Quotatura e aprire la scheda Parti.
  3. Aggiungere i gruppi di oggetti desiderati alle regole di quotatura cliccando su Aggiungi regola e selezionando la regola dall'elenco nella colonna Gruppo oggetti.
  4. Se necessario, è possibile creare nuovi gruppi di oggetti, cliccando su Gruppo oggetti. Ad esempio, aggiungere regole a un gruppo di oggetti per le travi di dimensioni diverse.
  5. Per ciascun gruppo di oggetti, selezionare le opzioni Posizionamento, Posizione orizzontale e Posizione verticale, a seconda del tipo di oggetti appartenenti al gruppo.

    Ad esempio, per i gruppi di travi, impostare Posizione orizzontale su Lato sinistro per posizionare le quote delle travi sul lato sinistro della griglia.

  6. Se necessario, nella colonna Etichette inserire le etichette del testo da visualizzare per i diversi gruppi di oggetti presenti nel disegno. Ad esempio, inserire le misure della trave.

Esempio

In questo esempio, sono stati creati diversi gruppi di travi, uno per ciascuna misura della trave da quotare, quindi è stata selezionata la posizione delle quote nei diversi gruppi e sono state aggiunte le etichette da visualizzare per ciascun gruppo:

Esempio: quote della griglia e totali

Di seguito sono riportati alcuni esempi di come appaiono le quote della griglia e totali nei disegni di progetto e montaggio quando sono selezionate diverse impostazioni nella scheda Griglia.

Impostazione quotatura Esempio

Quote linee griglia =

Quota totale =

Orizzontale = Sinistra

Verticale = Sopra

Quote linee griglia =

Quota totale = No

Orizzontale = Sinistra

Verticale = Sopra

Esempio: opzioni della lunghezza massima della linea guida

Di seguito sono riportati alcuni esempi di posizionamento delle quote dopo l'impostazione dei valori delle opzioni Lunghezza massima della linea guida Quote esterne e Quote interne nella scheda Parti.

Impostazione quotatura Esempio

È stato impostato un valore per le Quote esterne.

È stato impostato un valore per le Quote interne.

Esempio: quotatura delle parti non interamente nella vista

Di seguito è riportato un esempio di come vengono quotate le parti se si imposta l'opzione Includi le parti non completamente incluse nella vista su nella scheda Parti della finestra di dialogo progetto e montaggio - Proprietà quotatura.

Esempio: limitazione del numero di quote esterne

Di seguito è riportato un esempio di come appaiono le quote della parta quando si imposta 3 come valore per l'opzione Numero massimo di quote esterne nella scheda Parti nelle proprietà di quotazione disegno di progetto e montaggio. Tekla Structures crea tre quote all'esterno della griglia e la quarta all'interno della griglia.

Esempio: posizionamento quote parte

Di seguito sono riportati alcuni esempi di come le quote delle parti vengono posizionate nei disegni di progetto e montaggio quando sono selezionate diverse impostazioni di posizionamento nella scheda Parti.

Nell'esempio seguente, l'opzione Posizionamento è impostata su Interne alla griglia e tutte le quote vengono posizionate adiacenti o vicino alla griglia.

Nell'esempio seguente, l'opzione Posizionamento è impostata su Griglia esterna e tutte le quote vengono posizionate fuori dalla griglia.

Nel seguente esempio, l'opzione Posizione orizzontale è impostata su Lato sinistro e tutte le quote vengono posizionate nelle parti orizzontali a sinistra della griglia.

Nel seguente esempio, l'opzione Posizione orizzontale è impostata su Lato destro e tutte le quote vengono posizionate nelle parti orizzontali a destra della griglia.

Nel seguente esempio, l'opzione Posizione orizzontale è impostata su Distribuiti su entrambi i lati e tutte le quote vengono posizionate nelle parti orizzontali a lato della griglia accanto alla parte a cui si riferiscono.

Nel seguente esempio, l'opzione Posizione verticale è impostata su Sopra e tutte le quote vengono posizionate nelle parti verticali sopra la griglia.

Nel seguente esempio, l'opzione Posizione verticale è impostata su Sotto e tutte le quote vengono posizionate nelle parti verticali sotto la griglia.

Nel seguente esempio, l'opzione Posizione verticale è impostata su Distribuiti su entrambi i lati e tutte le quote vengono posizionate nelle parti verticali a lato della griglia accanto alla parte a cui si riferiscono.

Esempio: quota nelle piante di ancoraggio tirafondi

Di seguito sono riportati alcuni esempi di come appaiono le quote nelle piante di ancoraggio tirafondi in diverse situazioni.

Innanzitutto un esempio di situazione tipica, in cui tutte le colonne si trovano nelle intersezioni della linea griglia:

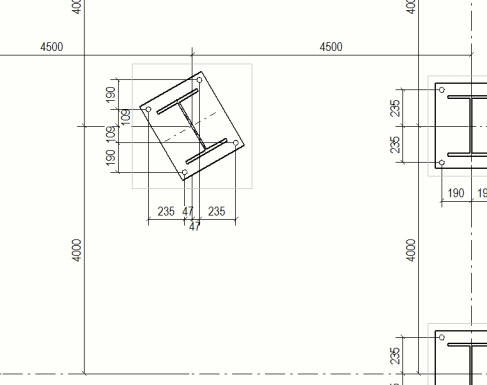
Se il punto di riferimento della colonna non si trova sulla linea griglia, Tekla Structures quota automaticamente il punto di riferimento rispetto alle linee griglia. Vedere l'esempio riportato di seguito.

Se la colonna viene ruotata in relazione al disegno, anche la rotazione viene quotata automaticamente. Vedere l'esempio riportato di seguito.

Se si imposta l'opzione avanzata XS_ANCHOR_BOLT_PLAN_USE_VIEW_COORDSYS_FOR_BOLT_DIMENSIONS su FALSE e si crea il disegno, tutte le quote sono nel sistema di coordinate del disegno.

È stato utile?
Precedente
Successivo