Démarrage rapide avec les dessins Tekla Structures
Lisez cet article si les dessins Tekla Structures sont nouveaux pour vous !
Vous apprendrez :
-
Les spécificités des dessins Tekla Structures et ce qui est inclus dans les dessins
-
Que faire avant de créer des dessins
-
Comment créer des dessins dans votre premier projet à l'aide des paramètres prédéfinis dans votre environnement
-
Comment modifier manuellement les dessins créés en mode dessin
Cliquez sur les liens bleus pour en savoir plus. Voici un exemple de lien.
Bases des dessins Tekla Structures
-
Dans Tekla Structures, un dessin est une fenêtre du modèle présentant les structures du modèle 3D en 2D, ainsi que les cotations de l’objet et d’autres repères dérivés des données du modèle. Voici un exemple d’une vue de dessin contenant des objets de construction, des repères et des cotations :

-
Dans Tekla Structures, vous pouvez créer des plans d'ensemble, des croquis de débits, des croquis d'assemblages, des dessins d'éléments béton et des dessins composés.
Dessins à jour
Les dessins Tekla Structures sont toujours à jour parce que :
-
Les objets de construction apparaissant dans le dessin correspondent exactement aux objets créés dans le modèle. Vous pouvez changer leur représentation dans le dessin, mais il est impossible d'en modifier la géométrie et l'emplacement ou de les supprimer ; les objets de structure doivent être modifiés directement dans le modèle.
-
La plupart des objets du dessin sont associatifs et automatiquement mis à jour lorsque les objets du modèle correspondants changent. Par exemple, si vous redimensionnez un objet du modèle, les points de cotation associés se déplacent avec l’objet correspondant dans le dessin, les cotations sont recalculées, et les données connexes sont mises à jour dans les repères. De plus, aucune modification manuelle apportée au dessin n'est perdue. Notez que si les points de cotations ne bougent pas, ils ne sont associés à aucun objet de construction.
Objets, vues et mise en page de dessin
Les objets de dessin sont organisés à l'intérieur des vues de dessin, qui sont placées dans la mise en page sélectionnée en fonction des paramètres sélectionnés :
-
Les objets de dessin comprennent les objets de construction (pièces, boulons, soudures, chanfreins, armature, traitement de surface, etc.), les objets d’annotation (repères, notes, cotations, textes, objets liés, nuages, objets de référence, etc.) et les objets graphiques (lignes, rectangles, cercles, etc.).
Tous ces objets sont ajustables.
Quelques exemples d'objets de construction, de cotations, de repères, de textes et de nuages :

-
Les vues de dessin jouent le rôle de conteneurs pour les objets ou zones de construction du modèle que vous avez sélectionnés en vue de les inclure dans le dessin. La taille de la vue de dessin s’ajuste automatiquement pour accueillir plus de contenu si nécessaire. Les vues de dessin peuvent montrer les objets de construction depuis différentes directions (dessus, face, dessous, arrière) et en sections. Les paramètres de vue, par exemple la profondeur et l’échelle de vue, sont réglables.
Exemple d’un plan d'ensemble avec une vue en élévation et des détails :

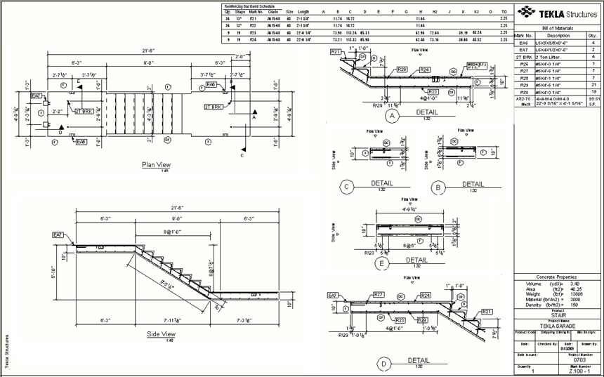
Exemple de dessin de coffrage et ferraillage combinés d'escalier avec des paliers avec deux vues principales et quelques vues détaillées :

Exemple d'un croquis d'assemblage de poutre avec une vue principale et une vue en coupe :

-
Une mise en page définit :
-
La taille du dessin, et les espaces entre le cadre et les vues du dessin, et entre les vues du dessin.
-
Le jeu de gabarits comprend un gabarit de révision, un bloc de titre, une liste des matériaux, une nomenclature et des notes générales.
Les données dans les gabarits sont dérivées directement des données du modèle. Vous pouvez créer des gabarits dans l'Éditeur de gabarits, ajouter des gabarits dans la mise en page et ajuster les paramètres de mise en page dans l'Éditeur de mise en page.
Voici un exemple de mise en page d'un plan de fabrication :

(1) Marges entre le cadre du dessin et les vues extrêmes
(2) Espaces entre les vues
(3) Vue de face
(4) Vue de dessus
(5) Coupe A-A et B-B
(6) Cadre du dessin
(7) Plan guide
(8) Liste de matériaux
(9) Gabarit de révision
(10) Cartouche du dessin
(11) Marques de pliage
-
Paramètres de dessin prédéfinis
Votre environnement contient des paramètres de dessin prédéfinis adaptées à diverses fins, sur plusieurs niveaux.
Lorsque vous créez des dessins pour la première fois, tout ce que vous avez à faire consiste à sélectionner les paramètres de dessin prédéfinis les plus appropriés.
Notez que les paramètres au niveau des dessins définissent également la mise en page utilisée.
Vous pouvez modifier ces paramètres et enregistrer vos propres fichiers de paramètres pour vos futurs dessins.
Voici un exemple d’une liste de paramètres de dessin dans un plan d'ensemble :

Avant la création des dessins dans Tekla Structures
-
Vous pouvez créer des dessins à n’importe quelle étape du projet, mais pour minimiser le re-travail, avancez l'exécution autant que possible, et terminez le repérage avant la création du dessin. Le repérage est une condition préalable à la création des croquis de débits, d'assemblages et d'éléments béton.
-
Assurez-vous que les classifications et dénominations des objets dans votre modèle correspondent aux filtres. Suivez les conventions de l’entreprise.
-
Dans le modèle, créez toutes les vues nécessaires aux plans d'ensemble. Les vues des plans d'ensemble disposent de la même orientation et du même contenu que la vue du modèle. Par exemple, créez une vue en élévation ou une vue en plan d’étage. Une bonne pratique consiste à adapter la zone de travail dans la vue du modèle à l'aide de deux points pour sélectionner la zone à afficher dans le dessin.
-
Choisissez la profondeur de vue à utiliser dans les plans d'ensemble. Définissez la profondeur de vue souhaitée dans la vue du modèle initiale pour un flux de travail efficace et transparent. Les dessins utiliseront la profondeur définie pour la vue dans le modèle.
-
Choisissez les paramètres prédéfinis et la mise en page que vous souhaitez utiliser. Sélectionnez les paramètres par défaut appropriés et une mise en page disponible dans votre environnement.
Création d'un plan d'ensemble
Dans votre premier projet, l'idée est de créer un plan d'ensemble en utilisant les paramètres prédéfinis de votre environnement, puis de le modifier manuellement en mode dessin si nécessaire.
Pour plus d’informations sur les plans d'ensemble, voir Création de plans d'ensemble et Propriétés du plan d'ensemble.
Modifier un plan d'ensemble
En mode dessin, modifiez le dessin manuellement pour obtenir le résultat souhaité.
Lorsque vous êtes satisfait du résultat, utilisez ce dessin comme gabarit pour créer des dessins pour d’autres modèles similaires. Vous pouvez également utiliser les dessins du modèle en cours comme gabarits dans vos futurs projets.
L'exemple ci-dessous présente la mise en page d'un plan d'implantation.
Pour voir le dessin en taille réelle, cliquez avec le bouton droit ici et sélectionnez l’option qui ouvre le dessin PDF dans une autre fenêtre du navigateur.

(1) Cotations du maillage
(2) Repères de pièce
(3) Repères de coupe A-A, B-B et C-C
(4) Cotations manuelles
(5) Coupes A-A, B-B et C-C
(6) Repère groupe d'armatures
(7) Repère d'armature avec image extraite
(8) Repères de niveau
(9) Gabarit de révision
(10) Gabarit de cartouche du dessin
(11) Cadre et marge du dessin
Création d'un dessin de fabrication d'éléments préfabriqués
Comme il s’agit de votre premier projet, nous vous recommandons de créer un dessin de fabrication d'un élément béton à l’aide des paramètres prédéfinis de votre environnement, puis de modifier le dessin manuellement en mode dessin si nécessaire.
Pour plus d’informations sur les dessins d'éléments béton, voir Créer plan de fabrication et Propriétés des dessins d'éléments béton.
Modification d'un dessin d'éléments béton
En mode dessin, modifiez manuellement le dessin de fabrication d'un élément béton pour obtenir le résultat souhaité.
Lorsque vous êtes satisfait du résultat, vous pouvez utiliser ce dessin comme gabarit pour créer des dessins pour des éléments béton similaires.
L’exemple ci-dessous présente un dessin de coffrage d’élément béton.
Pour voir le dessin en taille réelle, cliquez avec le bouton droit ici et sélectionnez l’option qui ouvre le dessin PDF dans une autre fenêtre du navigateur.

(1) Note associative
(2) Vue 3D créée automatiquement
(3) Symbole (centre de gravité)
(4) Ligne
(5) Texte
(6) Détail 2D de la Bibliothèque de dessins 2D ou image
(7) Liste d'armatures avec images extraites
(8) Gabarit de liste de matériaux avec ligne d'en-tête, lignes de contenu, ligne de poids total d'armature et ligne de somme du poids total de l'élément béton
(9) Réservation avec arêtes cachées
(10) Pièce en béton
(11) Levage
(12) Cotations hors-tout créées automatiquement
(13) Cotations des réservations créées automatiquement
(14) Cotations de filtre créées automatiquement
(15) Vue de face du coffrage
(16) Repère de coupe A-A
(17) Contour de pièce
(18) Étiquette de cotation
(19) Coupe A-A créée automatiquement
(20) Repère d'armature avec image extraite
(21) Repère groupe d'armatures
(22) Armature
(23) Vue de face de l'armature
(24) Cotation du groupe d'armatures
(25) Symbole de détail
(26) Vue détail
(27) Gabarit de cartouche du dessin
(28) Attribut (Tekla Corporation) et texte fixe (nom du produit) dans le gabarit
(29) Gabarit de révision
(30) Image dans le gabarit
(31) Cadre et marge du dessin
Création d'un plan de fabrication d'éléments acier
Comme il s’agit de votre premier projet, nous vous recommandons de créer un Croquis de fabrication d'éléments acier à l’aide des paramètres prédéfinis de votre environnement, puis de modifier le dessin manuellement en mode dessin si nécessaire. Les instructions ci-dessous s’appliquent aux croquis d'assemblages.
Pour plus d’informations sur les croquis d'assemblages, voir Création de plan de fabrication et Propriétés des croquis d'assemblages.
Modification d’un plan de fabrication d'éléments acier
En mode dessin, modifiez manuellement le dessin de fabrication d'éléments acier pour obtenir le résultat souhaité.
Lorsque vous êtes satisfait du résultat, vous pourrez utiliser ce dessin comme gabarit lorsque vous créez des dessins pour des assemblages similaires.
L'exemple ci-dessous présente une mise en page de croquis d'assemblage de poteau.
Pour voir le dessin en taille réelle, cliquez avec le bouton droit ici et sélectionnez l’option qui ouvre le dessin PDF dans une autre fenêtre du navigateur.

(1) Le gabarit de position de maillage indique sur quelle ligne de maillage l'assemblage se trouve dans le modèle
(2) Coupe A-A créée automatiquement, repères et cotations manuels
(3) Symboles de soudure du modèle
(4) Repères de pièce
(5) Repères de coupe A-A, B-B et C-C
(6) Vue de face
(7) Repère boulon
(8) Boulons
(9) Poteau C/54
(10) Contour de poteau
(11) Repère de coupe manuel C-C (sans vue en coupe). L'identifiant est C-C pour indiquer que cette coupe est identique à la coupe C-C déjà présente
(12) Coupe C-C créée automatiquement, repères et cotations manuels
(13) Vue de dessus
(14) Boulons, plats et repères cachés par d'autres pièces
(15) Cadre et marge du dessin
(16) Gabarit de révision
(17) Cartouche du dessin
(18) Gabarit de rappel indiquant le nombre total d'assemblages
(19) Gabarit de liste de pièces pour fabriquer cet assemblage
(20) Cotations : la plupart des cotations sont des Cotations intégrées automatiques. Les cotations de la coupe sont manuelles.
(21) : Coupe B-B créée automatiquement, repères et cotations manuels





















