XS_SET_HATCH_ORIGIN_INTO_VIEW_ORIGIN

Tekla Structures
Modifié: 14 nov 2024
2025
Tekla Structures

XS_​SET_​HATCH_​ORIGIN_​INTO_​VIEW_​ORIGIN

Catégorie dans la boîte de dialogue Options avancées: Hachures

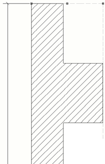
Définissez l’option avancée XS_SET_HATCH_ORIGIN_INTO_VIEW_ORIGIN sur TRUE et réglez la mise à l’échelle et la rotation des hachures sur zéro (0) pour dessiner les hachures systématiquement entre les pièces et définies à partir de l’origine. La valeur par défaut est FALSE.

Pour les hachures automatiques, l’échelle et la rotation sont définies dans le fichier .htc. Par exemple, CONCRETE,0,hardware_LINES,,120, où la valeur 0 (ou vide) définit l’échelle et la rotation automatiques sur false (faux).

Pour les hachures manuelles, l'échelle et la rotation sont définies dans les propriétés de la forme, dans lesquelles vous devez définir l'option Echelle sur Personnalisé et cochez la case Conserver le rapport x/y.

Dans l’exemple ci-dessous, les pièces qui appartiennent au même élément béton sont hachurées uniformément.

Cette option avancée est spécifique au modèle et le paramètre est enregistré dans la base de données des options.

Cela a-t-il été utile?
Précédent
Suivant