Automatisation améliorée des dessins - Clonage et mise à jour améliorés des vues et des cotations
Tekla Structures 2025 propose des améliorations dans le clonage et les mises à jour des dessins, notamment en ce qui concerne la position des cotations et les vues des dessins.
- La logique de positionnement des vues a été améliorée afin d’éviter le chevauchement, le désalignement des vues et le positionnement de vues en dehors du cadre du dessin. Les vues des dessins sont désormais placées de la même manière que dans les gabarits. De plus, l’emplacement relatif des coupes est désormais respecté. Auparavant, il y avait beaucoup de problèmes de chevauchement de vues et de cas où les vues étaient placées en dehors de la feuille de dessin, ce qui entraînait un travail supplémentaire pour nettoyer les dessins.
- La logique de positionnement des cotations et le mécanisme permettant d’éviter le chevauchement des cotations avec d’autres textes ont été améliorés. Les cotations des dessins clonés sont désormais placées de la même manière que dans les gabarits. La logique de cotation des boulons lors de la mise à jour du dessin a également été améliorée. Auparavant, les cotations n’étaient pas toujours placées dans les dessins clonés selon le mode de positionnement d’origine utilisé dans le gabarit, ce qui entraînait un surcroît de travail lorsque les cotations devaient être déplacées aux emplacements appropriés.
Grâce aux améliorations apportées au clonage et aux mises à jour des dessins, les fonctions suivantes de Tekla Structures fonctionnent désormais de manière plus fiable et avec de meilleurs résultats :
- Création intelligente dans la création de plans de fabrication
- Clonage via le Gestionnaire de documents
- Comportement de mise à jour du dessin générique provoqué par des modifications apportées au modèle
Exemples d’améliorations
Pour afficher les images en taille réelle, cliquez sur le lien Image en taille réelle sous chaque image. Vous pouvez également cliquer avec le bouton droit de la souris sur l’image et sélectionner la commande appropriée pour ouvrir l’image dans un nouvel onglet.
Exemple 1a : Avant
L’ordre des cotations est incorrect avec des distances irrégulières entre les lignes de cotation.

Exemple 1b : Après
L’ordre des cotations est correct avec des intervalles réguliers entre les lignes de cotation.

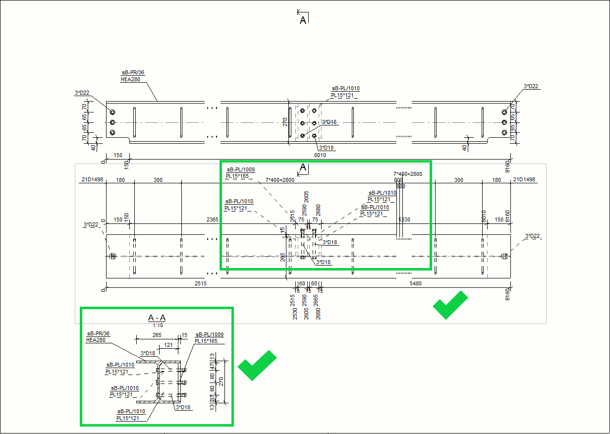
Exemple 2a : Avant
Les vues principales et les coupes se chevauchent.

Exemple 2b : Après
Les vues sont alignées et placées sans chevauchement.

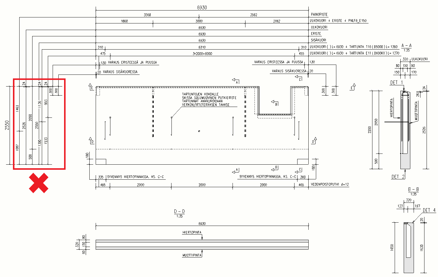
Exemple 3a : Avant
L’ordre des cotations est incorrect avec des intervalles irréguliers entre les lignes de cotation.

Exemple 3b : Après
L’ordre des cotations est correct avec des intervalles réguliers entre les lignes de cotation.

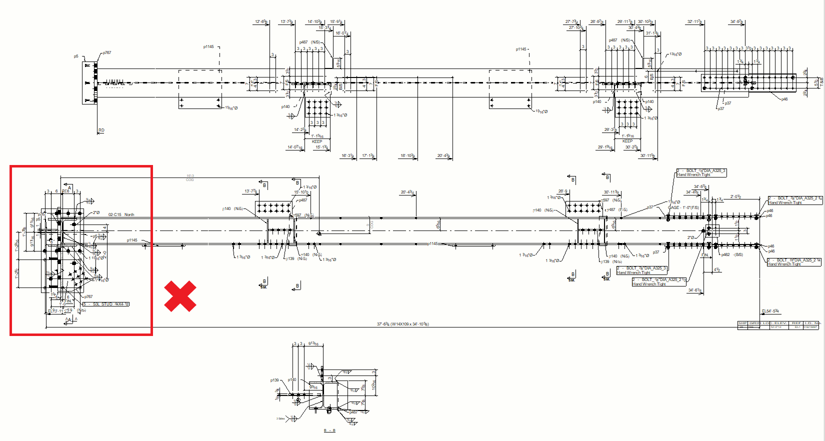
Exemple 4a : Avant
L’ordre des cotations est incorrect et certains repères chevauchent d’autres objets.

Exemple 4b : Après
L’ordre des cotations est correct et les repères sont placés sans chevauchement.

Autres améliorations apportées au clonage et aux mises à jour
- Les cotations d’épure sont désormais mieux conservées lors du clonage.
- La gestion des cotations radiales dans la mise à jour et le clonage des dessins a été améliorée.
- Auparavant, dans les vues de dessin clonées, les cotations créées manuellement pour les armatures ou les inserts pouvaient être non associatives dans certains cas. Ce problème est maintenant résolu.
- Lors du clonage, les vues de détails ne sont plus associées à des objets qui n’existent pas dans la vue.