Ajout de cotations automatiques dans des plans d'ensemble

Tekla Structures
Modifié: 18 nov 2024
2025
Tekla Structures

Ajout de cotations automatiques dans des plans d'ensemble

Dans la boîte de dialogue Plan d'ensemble - Propriétés cotation du plan d'ensemble, vous pouvez créer des cotations de pièces, de maillages et hors-tout ainsi que gérer la manière dont elles sont créées. Vous pouvez utiliser différentes combinaisons d’options pour obtenir divers types d’effets de cotation.

Cotation des plans d’ensemble

  1. Dans l'onglet Dessins & listes, cliquez sur Propriétés des dessins > Plan d'ensemble.
  2. Chargez les propriétés de dessin qui sont les plus proches de celles dont vous avez besoin.
  3. Cliquez sur Cotation...
  4. Sélectionnez les cotes à créer et modifiez les paramètres associés.
  5. Dans l'onglet Maillage, réglez les paramètres de création des cotes hors-tout et des cotes de maillage ainsi que le positionnement des cotes.
  6. Dans l'onglet Pièces, réglez les paramètres de création des cotes de pièces et le positionnement des cotes.
  7. Cliquez sur OK, puis créez le dessin.

Groupes d'objets dans la cotation de plans d'ensemble

Lors de la cotation des plans d'ensemble, le terme groupe d'objets fait référence aux objets qui ont été regroupés pour la cotation dans différentes lignes de cotes.

Vous pouvez utiliser les groupes d'objets (filtres de sélection) que vous avez créés dans le modèle ou créer les groupes nécessaires via l'onglet Pièces dans la boîte de dialogue Plan d'ensemble - Propriétés cotation à l'aide du bouton Groupes d'objets. Par exemple, vous pouvez créer un groupe d'objets pour les poutres d'une certaine taille.

Cotation de groupes d'objets sur différentes lignes de cotation

Vous pouvez utiliser les groupes d'objets pour spécifier différents objets à coter sur différentes lignes de cotation.

  1. Dans l’onglet Dessins & listes, cliquez sur Propriétés du dessin > Plan d'ensemble.
  2. Cliquez sur Cotation, puis accédez à l'onglet Pièces
  3. Ajoutez les groupes d'objets souhaités aux règles de cotation en cliquant sur Ajouter critère et en sélectionnant le filtre dans le menu déroulant de la colonne Groupe objets.
  4. Si nécessaire, vous pouvez créer de nouveaux groupes d'objets en cliquant sur Groupe d'objets. Par exemple, ajoutez des règles de groupes d'objets pour des poutres de différentes tailles.
  5. Pour chaque groupe d'objets, sélectionnez l'option Mise en place, l'option Position horizontale et l'option Position verticale, selon le type d'objets du groupe.

    Par exemple, pour les groupes de poutres, définissez Position horizontale sur Gauche afin de placer les cotations des poutres à gauche du maillage.

  6. Si besoin, entrez dans la colonne Etiquette les étiquettes de texte que vous souhaitez afficher pour les différents groupes d'objets du dessin. Par exemple, entrez la taille de la poutre.

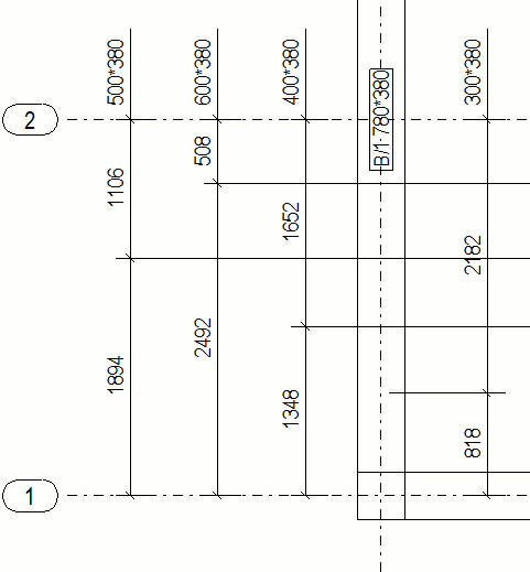
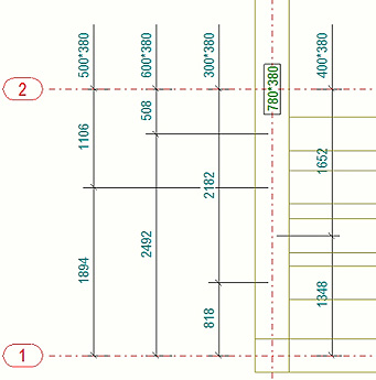
Exemple

Dans cet exemple, plusieurs groupes de poutres ont été créés (un pour chaque taille de poutre à coter), puis la position des cotations dans différents groupes a été sélectionnée et des étiquettes à afficher pour chaque groupe ont été ajoutées :

Exemple : maillage et cotes hors-tout

Voici quelques exemples de maillages et de cotations hors-tout dans des plans d'ensemble avec différents paramètres sélectionnés dans l'onglet Maillage.

Paramètre de cotation Exemple

Cotation ligne de maillage = Oui

Dimensions hors-tout = Oui

Horizontale = Gauche

Verticale = Dessus

Cotation ligne de maillage = Oui

Dimension hors-tout = Non

Horizontale = Gauche

Verticale = Dessus

Exemple : options Longueur maximale du trait de rappel

Les exemples ci-dessous illustrent la manière dont les cotations sont placées lorsque des valeurs sont définies pour les options Longueur maximale trait de rappel Dimensions externes et Dimensions internes dans l'onglet Pièces.

Paramètre de cotation Exemple

Une valeur est définie pour Dimensions externes.

Une valeur est définie pour Dimensions internes.

Exemple : Cotation des pièces se trouvant partiellement à l'extérieur de la vue

L'exemple ci-dessous illustre la manière dont les pièces sont cotées lorsque vous définissez l'option Inclure les pièces partiellement dà l'extérieur de la vue sur Oui dans l'onglet Pièces de la boîte de dialogue Général - Propriétés cotation.

Exemple : Limiter le nombre de cotes externes

Voici un exemple de l'apparence des cotations de pièces lorsque vous définissez 3 comme valeur pour l'option Nombre maximum de cotations externes  dans l'onglet Pièces des propriétés de cotations des plans d'ensemble. Tekla Structures crée trois cotations en dehors du maillage et la quatrième à l'intérieur du maillage.

Exemple : Positionner les cotes de pièces

Voici quelques exemples de mise en place des cotes des pièces dans les plans d'ensemble avec différents paramètres de positionnement sélectionnés dans l'onglet Pièces.

Dans l'exemple ci-dessous, Mise en place est défini sur Intérieur maillage, ce qui permet de placer toutes les cotes à proximité du maillage.

Dans l'exemple ci-dessous, Mise en place est défini sur Extérieur maillage, ce qui permet de placer toutes les cotes en-dehors du maillage.

Dans l'exemple ci-dessous, Position horizontale est définie sur Gauche, ce qui permet de placer toutes les cotes des pièces horizontales à gauche du maillage.

Dans l'exemple ci-dessous, Position horizontale est définie sur Droit, ce qui permet de placer toutes les cotes des pièces horizontales à droite du maillage.

Dans l'exemple ci-dessous, Position horizontale est définie sur Distribué des deux côtés, ce qui permet de placer toutes les cotes des pièces horizontales sur le côté du maillage le plus proche de la pièce à coter.

Dans l'exemple ci-dessous, Position verticale est défini sur Dessus, ce qui permet de placer toutes les cotes des pièces verticales au-dessus du maillage.

Dans l'exemple ci-dessous, Position verticale est définie sur Dessous, ce qui permet de placer toutes les cotes des pièces verticales en-dessous du maillage.

Dans l'exemple ci-dessous, Position verticale est définie sur Distribué des deux côtés, ce qui permet de placer toutes les cotes des pièces verticales sur le côté du maillage le plus proche de la pièce à coter.

Exemple : Cote des plans d'implantation

Voici quelques exemples de cotations de plans d'implantation dans différentes situations.

Premier exemple : tous les poteaux se trouvent aux intersections des lignes de maillage :

Si le point de référence du poteau n'est pas situé à une intersection de lignes de maillage, Tekla Structures cote automatiquement le point de référence par rapport aux lignes de maillage. Référez-vous à l’exemple qui suit.

Si le poteau est tourné par rapport au dessin, la rotation est automatiquement cotée. Référez-vous à l’exemple qui suit.

Si vous définissez l’option avancée XS_ANCHOR_BOLT_PLAN_USE_VIEW_COORDSYS_FOR_BOLT_DIMENSIONS sur FALSE et que vous créez le dessin, toutes les cotes se trouvent dans le système de coordonnées du dessin.

Cela a-t-il été utile?
Précédent
Suivant