Añadir dimensiones automáticas en los dibujos generales

Tekla Structures
Modificado: 18 Nov 2024
2025
Tekla Structures

Añadir dimensiones automáticas en los dibujos generales

En el cuadro de diálogo General - Propiedades Dimensionamiento del dibujo general, puede crear dimensiones de partes, malla y totales, así como controlar su forma de creación. Puede experimentar con las distintas combinaciones de opciones para obtener distintos tipos de efectos de dimensionamiento.

Dimensión de dibujos generales

  1. En la pestaña Dibujos e informes, haga clic en Propiedades dibujo > Dibujo general.
  2. Cargue las propiedades de dibujo que se aproximen más a las que necesite.
  3. Haga clic en Dimensionamiento...
  4. Seleccione las dimensiones a crear y modifique las configuraciones relacionadas.
  5. En la pestaña Malla, ajuste las configuraciones de creación de dimensión de malla y dimensión total, así como el posicionamiento de las dimensiones.
  6. En la pestaña Partes, ajuste las configuraciones de creación de dimensiones de parte y el posicionamiento de las dimensiones.
  7. Haga clic en OK y cree el dibujo.

Grupos de objetos en el dimensionamiento de dibujos generales

Cuando se dimensionan dibujos generales, el término grupo de objetos hace referencia a objetos que se han agrupado con el fin de dimensionar los grupos de objetos en líneas de dimensión diferentes.

Puede utilizar los grupos de objetos (filtros de selección) que ha creado en el modelo, o bien crear los grupos necesarios mediante la pestaña Partes del cuadro de diálogo General - Propiedades Dimensionamiento mediante el botón Grupos de objetos. Por ejemplo, puede crear un grupo de objetos para las vigas de un tamaño concreto.

Dimensionar grupos de objetos en líneas de dimensión diferentes

Es posible utilizar grupos de objetos para especificar los diferentes objetos a dimensionar en las diferentes líneas de dimensión.

  1. En la pestaña Dibujos e informes, haga clic en Propiedades dibujo > Dibujo general.
  2. Haga clic en Dimensionamiento y vaya a la pestaña Partes.
  3. Añada los grupos de objetos que desee a las reglas de dimensionamiento haciendo clic en Añadir Regla y seleccionando la regla en la lista en la columna Grupo objetos.
  4. Si fuese necesario, puede crear nuevos grupos de objetos haciendo clic en Grupos objetos. Por ejemplo, puede añadir reglas de grupos de objetos para vigas de diferente tamaño.
  5. Para cada grupo de objetos, seleccione la opción Posicionamiento, la opción Posición horizontal y la opción Posición vertical, dependiendo del tipo de objetos del grupo.

    Por ejemplo, para grupos de vigas, defina Posición horizontal como lado izquierdo para colocar las dimensiones de las vigas en el lado izquierdo de la malla.

  6. Si fuese necesario, en la columna Etiqueta introduzca las etiquetas de texto que desee visualizar correspondientes a los distintos grupos de objetos del dibujo. Por ejemplo, introduzca el tamaño de la viga.

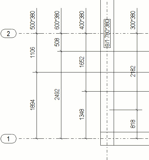
Ejemplo

En este ejemplo se han creado varios grupos de vigas, uno para cada tamaño de viga que se desea dimensionar, a continuación, se ha seleccionado la posición para las dimensiones en grupos diferentes y se han añadido etiquetas que se visualizarán para cada grupo:

Ejemplo: dimensiones de malla y totales

A continuación se muestran algunos ejemplos del aspecto de las dimensiones totales y de malla en los dibujos generales con distintas configuraciones seleccionadas en la pestaña Malla.

Configuración de dimensionamiento Ejemplo

Dimensiones de línea de malla = On

Dimensión total = On

Horizontal = Izquierda

Vertical = Arriba

Dimensiones de línea de malla = On

Dimensión total = Off

Horizontal = Izquierda

Vertical = Arriba

Ejemplo: opciones de longitud máxima de línea de referencia

A continuación se muestran algunos ejemplos sobre cómo se colocan las dimensiones cuando se han definido valores para las opciones de Longitud máxima de línea de referencia Dimensiones exteriores y Dimensiones interiores en la pestaña Partes.

Configuración de dimensionamiento Ejemplo

Se ha definido un valor para Dimensiones exteriores.

Se ha definido un valor para Dimensiones interiores.

Ejemplo: Partes de dimensión parcialmente fuera de la vista

A continuación se muestra un ejemplo de cómo se dimensionan las partes si la opción Incluir partes no totalmente en vista se define como On en la pestaña Partes del cuadro de diálogo General - Propiedades Dimensionamiento.

Ejemplo: Limitación del número de dimensiones externas

A continuación se muestra un ejemplo del aspecto que tienen las dimensiones de parte cuando se define 3 como el valor de la opción Número máximo de dimensiones externas en la pestaña Partes en la propiedades de dimensionamiento de dibujos generales. Tekla Structures crea tres dimensiones fuera de la malla y la cuarta en el interior.

Ejemplo: posicionamiento de dimensiones de parte

A continuación se muestran algunos ejemplos sobre cómo se posicionan las dimensiones de parte en los dibujos generales con distintas configuraciones de posicionamiento seleccionadas en la pestaña Partes.

En el siguiente ejemplo, Posicionamiento está definido como Malla interior, colocando todas las dimensiones junto a la malla o cerca de ella.

En el siguiente ejemplo, Posicionamiento está definido como Malla exterior, colocando todas las dimensiones fuera de la malla.

En el siguiente ejemplo, Posición horizontal está definido como Lado izquierdo, colocando todas las dimensiones de las partes horizontales a la izquierda de la malla.

En el siguiente ejemplo, Posición horizontal está definido como Lado derecho, colocando todas las dimensiones de las partes horizontales a la derecha de la malla.

En el siguiente ejemplo, Posición horizontal está definido como Distribuido a ambos lados, colocando todas las dimensiones de las partes horizontales en el lado de la malla más cercano a la parte que están dimensionando.

En el siguiente ejemplo, Posición vertical está definido como Arriba, colocando todas las dimensiones de las partes verticales por encima de la malla.

En el siguiente ejemplo, Posición vertical está definido como Debajo, colocando todas las dimensiones de las partes verticales por debajo de la malla.

En el siguiente ejemplo, Posición vertical está definido como Distribuido a ambos lados, colocando todas las dimensiones de las partes verticales en el lado de la malla más cercano a la parte que están dimensionando.

Ejemplo: dimensiones en planos de anclaje

A continuación se muestran algunos ejemplos del aspecto de las dimensiones en los planos de anclaje en distintas situaciones.

En primer lugar, un ejemplo de una situación habitual, en la que todas las columnas están situadas en intersecciones de líneas de malla:

Si el punto de referencia de la columna no está situado sobre la línea de malla, Tekla Structures dimensionará automáticamente el punto de referencia en relación con las líneas de malla. Observe el siguiente ejemplo.

Si se gira el pilar en relación con el dibujo, la rotación también se dimensionará automáticamente. Observe el siguiente ejemplo.

Todas las dimensiones se encuentran en el sistema de coordenadas del dibujo si define la opción avanzada XS_ANCHOR_BOLT_PLAN_USE_VIEW_COORDSYS_FOR_BOLT_DIMENSIONS como FALSE y crea el dibujo.

¿Le ha resultado útil?
Anterior
Siguiente