Verification Example - RC Cantilever Retaining Wall
Description
This verification example represents the analysis and design of a reinforced concrete cantilever retaining wall utilizing Tekla Tedds. This example is based on Design Example 2 of the ACI Reinforced Concrete Design Handbook, A Companion to ACI 318-19, Volume 2: Special Topics (Pages 32 through 58). Comparisons and contrasts are tabularized and discussed regarding the results from Tedds and the ACI Design Example.
Problem statement
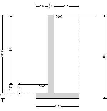
Design a normal-weight reinforced concrete cantilever retaining wall that retains a level earth bank 15’ high above the final earth level as shown in Figure E2.1 of the ACI Design Example and in Figure 1 below. Assume that the cantilever retaining wall is not subjected to any other load and the frost line is 3’ below the finished grade.
Tedds calculation
Retaining wall analysis & design (ACI318/TMS/MSJC) - Compared using version 2.9.22
Running the example in Tedds
The Tedds verification examples referenced in this document can be run in Tekla Tedds from the Engineering library index, in the Verification Examples\Retaining wall analysis & design (ACI318/TMS/MSJC) folder.
References
International Building Code (IBC) 2018
ACI Reinforced Concrete Design Handbook, A Companion to ACI 318-19, Volume 2: Special Topics
ACI 318-19: Building Code Requirements for Structural Concrete and Commentary
Example information
Concrete:
γconcrete = 150 lb/ft3
λa = 1.0
f’c = 4.5 ksi
fy = 60 ksi
Soil:
γsoil = 110 lb/ft3
qall = 3,000 lb/ft2 (gross)
ɸ = 35 degrees
μ = 0.5 (in Tedds δbb = tan-1 (μ) = tan-1 (0.5) = 26.57 degrees)
Retaining Wall Dimensions (used during analysis):
tstem = 15”
tbase = 15”
bbase = 9’-3”
btoe = 2’-6”
bheel = 5’-6”
Retaining Wall Dimensions (used during design):
tstem = 15”
tbase = 24”
bbase = 9’-3”
btoe = 2’-6”
bheel = 5’-6”
Concrete cover to reinforcement:
Front face and rear face of stem = 2”
Top face of base = 2” (Note that in the ACI design example, a 2” cover is used in the calculations, but a 3” cover is shown in the final design diagram)
Bottom face of base = 3”
Governing load combinations for retaining wall design:
1.2D + 1.6H
0.9D + 1.6H
Retaining Wall Reinforcement:
See Figure E2.12 of the ACI Design Example for retaining wall reinforcement
Stem vertical reinforcement (entire height): #7 @ 9” o.c. inside face, #5 @ 18” o.c. outside face
Stem horizontal reinforcement: #5 @ 18” o.c.
Footing top reinforcement: #7 @ 4-½” o.c.
Footing bottom reinforcement: #7 @ 9” o.c.
Footing transverse reinforcement: (8) #7 in top of heel, (4) #5 in bottom of toe

Figure 1: Cantilever retaining wall (Tedds)
| Comparison of Results between Tedds and ACI Example 2 | |||
|---|---|---|---|
| Retaining Wall Analysis | |||
| Component | Tedds Result | ACI Example 2 | % Difference |
| Total vertical load (Fv)a | 15,009 lb/ft | 15,008 lb/ft | 0.0% |
| Overturning Moment (MOTM) | 28,974 lb-ft/ft | 28,974 lb-ft/ft | 0.0% |
| Restoring Moment (MR) | 83,705 lb-ft/ft | 83,704 lb-ft/ft | 0.0% |
| Total vertical load for bearing (Fv) | 15,490 lb/ft | 15,008 lb/ft | 3.2%b |
| Distance to reaction (a) | 3.572’ | 3.65’ | 2.2%b |
| Eccentricity of reaction (e) | 1.053’ | 0.98’ | 7.5%b |
| qtoe | 2,818 lb/ft2 | 2,653 lb/ft2 | 6.2%b |
| qheel | 531 lb/ft2 | 591 lb/ft2 | 11.3%b |
| F.S.sliding | 1.554 | 1.55 | 0.0% |
| F.S.overturning | 2.889 | 2.89 | 0.0% |
| Retaining Wall Designc | |||
| Stem Wall Design | |||
| Moment at base of stem (Mu) | 32,559 lb-ft/ft | 32,560 lb-ft/ft | 0.0% |
| Depth of compression block (a) | 1.048” | 1.048” | 0.0% |
| Design flexural strength (φMn) | 43,434 lb-ft/ft | 43,114 lb-ft/ft | 0.7%d |
| Shear force (Vu) | 6,105 lb/ft | 6,105 lb/ft | 0.0% |
| Design concrete shear strength (φVc) | 9972 lb/ft | 9968 lb/fte | 0.0% |
| Heel Designf | |||
| Moment at inside face of stem (Mu) | 22,100 lb-ft/ft | 48,000 lb-ft/ft | 217%g,i |
| Depth of compression block (a) | 2.096” | 2.096”h | 0.0% |
| Design flexural strength (φMn) | 148,029 lb-ft/ft | 147,686 lb-ft/ft | 0.2% |
| Shear force (Vu) | 6,107 lb/ft | 17,470 lb/ft | 286%g,i |
| Design concrete shear strength (φVc) | 19,129 lb/ft | 19,100 lb/ft | 0.2% |
| Toe Design | |||
| Moment at inside face of stem (Mu) | 9,043 lb-ft/ft | 11,928 lb-ft/ft | 31.9%j |
| Depth of compression block (a) | 1.048” | 1.048” | 0.0% |
| Design flexural strength (φMn) | 72,297 lb-ft/ft | 71,914 lb-ft/ft | 0.5%k |
| Shear force (Vu) | 2,399 lb/ft | 3,148 lb/ft | 31.2%j |
| Design concrete shear strength (φVc) | 14,710 lb/ft | 14,600 lb/ft | 0.8% |
Comparison Notes
aThe soil weight over the toe is neglected as it may erode away or be removed.
bThe ACI example does not include the soil weight over the toe in the calculation of the bearing pressure. This is unconservative, and we believe that the soil load over the toe should be included in calculating the bearing pressure of the retaining wall footing, as this will produce the most critical effect.
cValues listed in retaining wall design are based on the final design of the retaining wall in the ACI example, not the 1st iteration.
dThe ACI example incorrectly calculates d = 12.5”. d = 15” - 2” - 0.875”/2 = 12.5625”. This causes the design moment strength difference. Tedds provides a more accurate value.
eThe ACI example incorrectly calculates φVc = 13,290 lb/ft in the 1st design iteration and φVn = 17,500 lb/ft in the final design iteration. The inputs of φVn match the Tedds calculation, so it is confirmed that the Tedds calculation is performing the correct design method.
fNote that the calculations performed in the ACI example utilize a cover of 2” from the top of the footing base to reinforcement (meeting ACI requirements), but in the retaining wall diagram, the example shows a 3” cover. A 2” cover is used in the Tedds calculations to follow the ACI example calculations.
gThe ACI example neglects the soil pressure contribution below the heel, while Tedds considers this pressure, causing the large disparity.
hNote that the ACI example incorrectly displays As,prov = 1.2 in2/ft. As,prov should equal 1.6 in2/ft (#7 @ 4-½” o.c.). The ACI example uses the correct provided steel area throughout the rest of the calculations.
iThe ACI example multiplies the load from the retained soil above the heel by 1.6. The load from the soil over the heel should be factored by 1.2, since it is a vertical load and contributes to the heel pressure, and not a lateral earth load. This causes the discrepancy in values between Tedds and the ACI example.
jThe ACI example multiplies the soil reaction at the toe by 1.6. However, some of this soil reaction is due to vertical load of the retained soil. So the soil reaction at the toe due to the vertical load of the retained soil should be factored by 1.2, not 1.6. This causes the discrepancy in values between Tedds and the ACI example.
kThe ACI example incorrectly calculates d= 20.5”. d= 24” - 3” - 0.875”/2 = 20.5625”. This causes the design moment strength difference. Tedds provides a more accurate value.
Conclusion
Upon reviewing the results above, the analysis of the retaining wall within Tedds matches closely with the ACI example. Also, the concrete member design values are similar to the ACI example. The inconsistencies with the factored shear and moment values are mainly due to differing engineering judgements and methodologies. The ACI example utilizes conservative assumptions for the sake of brevity, while the Tedds program provides more detailed and in-depth results.