Show welds in drawings
Tekla Structures shows the welds that you have created in a model as weld seams and weld marks in drawings. In drawings, you can add intelligent marks to model welds both automatically and manually. You can also add drawing weld marks manually, but these marks do not necessarily have an associated physical weld in the model.
How welds are displayed in drawings
Tekla Structures shows the welds that you have added in a model as weld seams and weld marks in drawings. You can also add weld marks manually in an open drawing.
Weld concepts
Model welds are displayed as weld marks and welds or weld seams in drawings. Welds and weld marks can be controlled separately. For example, you may want to show the welds in one drawing view and the weld marks in another.
3D model welds are representations of welds in the real world. Weld solids in drawings are representations of the welds in models. Weld seam is the part of the weld path where the weld solid is drawn. Weld path may consist of several weld seams.
Weld solids are shown in drawings for the following welds:
-
Weld solids are shown in drawings for those weld types that have real solid support. Welds that have no real solid support are shown in the model with a hexagonal placeholder, and in drawings weld solids are not shown.
-
Custom cross-section welds are also supported.
Weld solids can be shown as outlines or paths, with or without hidden lines.
In the first example, the welds on the right and in the middle are drawn with outlines and own hidden lines. The weld on the left shows the weld path and hidden lines:
The second example is a cross-section of the structure. The welds on the left and in the middle are drawn with outlines, and the weld on the right shows the path. The weld dimensions have been added manually.
The weld symbols inside the weld marks indicate the weld properties defined for the model weld in the model or for the drawing weld mark in the drawing. Below is an example of a model weld seam (in red) and a model weld mark (in green) in a drawing.
See also: Weld types and weld type symbols.
In addition to the weld symbols, the weld mark contains a reference line and an arrow. The arrow connects the reference line to the arrow side of a connection. The welds on the arrow and other sides of a part can have different weld properties.
Weld placement
When parts are welded together, you can place welds on:
-
The arrow sides only
-
The other sides only
-
Both the arrow and other sides
The following images describe the basic placement principles of welds.
(1) Above line
(2) Below line
(3) Arrow side for weld
(4) Other side for weld
By
default Tekla Structures places the welds above line according to the
ISO standard. You can change this to below line to comply with the AISC standard
with the advanced option XS_AISC_WELD_MARK.
Model weld properties
To change model weld properties, you need to modify the weld in the model. When you update the model, the weld objects and weld marks are updated in the drawing according to the model changes. In drawings, you can modify the contents and the appearance of the model weld marks and the visibility, representation and appearance of model weld objects.
Weld solids can be shown in single-part, assembly, and general arrangement drawings.
Add drawing weld marks manually
You can add weld marks manually in an open drawing. Tekla Structures creates manual drawing weld marks using the current drawing weld mark properties. To add manual drawing weld marks, you do not need to have a model weld present in the drawing.

Example: Drawing weld marks added in drawings
In this example, the first image below shows the drawing weld mark properties in the drawing property pane. The properties are numbered in the image. The second image shows a drawing weld mark in a drawing, and how and where the properties are displayed in the mark.
(1) Edge/Around, here a weld around symbol is used
(2) Workshop/Site, here a site weld symbol is used
(3) Weld prefix
(4) Weld type
(5) Weld size
(6) Weld angle
(7) Weld contour symbol
(8) Weld finishing symbol
(9) Effective throat
(10) Root opening
Add model weld marks manually
You can add marks to model welds in an open drawing, for example, if you have not created those already at the drawing creation. To add model weld marks manually, you need to have a model weld present in the drawing. Tekla Structures creates model weld marks using the properties defined for the model weld in the model. You can also adjust the visibility and appearance of the model weld marks in the drawing.
The changes are applied.
You can drag the weld marks to another location. Note that you cannot drag the mark away from the associated weld, but you can only drag it along the weld seam. For more information, see section "Drag weld marks" below.
Examples: Model weld marks in drawings
Model welds are welds that you have added in the model. In drawings, they are represented by weld seams and weld marks. See some examples below representing the weld properties in the model and what the weld marks look like in drawings.
Example 1
In the first example, the first image below shows an example of weld properties in the model. You can add welds in the model by selecting one of the welding commands on the ribbon Steel tab. Some of the weld properties are numbered in the image, and the second image shows how these properties are shown in a weld mark in a drawing.
(1) Edge/Around, weld around symbol is used
(2) Workshop/Site, site weld symbol is used
(3) Weld prefix
(4) Weld type
(5) Weld size
(6) Weld angle
(7) Weld contour symbol
(8) Weld finishing symbol
(9) Effective throat
(10) Root opening
Example 2
The example below shows a staggered, intermittent weld. The length is set to 50 and the pitch to 100.
(1) Staggered, intermittent weld
(2) Length of weld segment
(3) Pitch (center-to-center spacing) of weld segments
Example 3
The example below shows a non-staggered, intermittent weld. The length is set to 50 and the pitch to 100. The pitch is shown in the weld mark when the pitch value is greater than 0.0.
Example 4
Below is an example of a continuous weld.
Example 5
In this
example, the staggered, intermittent weld option is selected, and the advanced
option XS_AISC_WELD_MARK is set to FALSE to produce an
ISO-compliant weld mark.
Example 6
In this
example, the staggered, intermittent weld option is selected like in the
previous example, but the advanced option XS_AISC_WELD_MARK is set
to TRUE to
produce an AISC-compliant weld mark.
The AISC weld mark also complies with the American Welding Society (AWS) standard.
For instructions on how to customize weld symbols, see section "Customize weld type symbols" later on this page.
Modify model weld mark properties on view level in a drawing
Model weld properties are set in the model. At drawing creation, you can define the weld mark properties, including the mark visibility and appearance. You can also modify which welding properties you want to show in model weld marks, and adjust the appearance of the model weld marks in weld mark properties on the drawing level (GA drawings) and on the drawing view level.
Examples
The first example shows a model weld mark where a lot of properties are visible:
In the second example, all other model weld mark properties have been hidden, except Type and , and Reference text:
- You can omit welds from drawings by weld type using the advanced option XS_OMITTED_WELD_TYPE. Then you first need to set a value for the Weld size limit.
- You can also customize some weld type symbols.
- For more information about defining automatic weld mark properties to be used at drawing creation, see Define automatic model weld properties in drawings.
Modify model weld object representation and appearance in a drawing
You can modify the model weld object representation and appearance manually on object level.
Examples
In the first example below, the welds on the right and in the middle are drawn with outlines and hidden lines. The weld on the left shows the path and hidden lines.
The second example is a cross-section of the structure. The welds on the left and in the middle are drawn with outlines, and the weld on the right shows the path. The welds on the right and left go around the part corner. The welds have manual dimensions.
You can define automatic weld properties for model welds before creating a drawing. You can also modify the weld properties on view level in an open drawing by double-clicking frame of the drawing view containing the weld objects and selecting Weld in the options tree. On drawing and view level, you can also modify the visibility settings.
Drag weld marks
You can drag model weld marks by the associativity point of the weld mark leader line along the weld seam. This way you can position the weld marks more optimally for increased clarity in the drawings. Manual drawing weld marks not associated to model welds can be dragged freely.
Having Drawing drag & drop() selected makes selecting the leader line base point and dragging it much easier.
Limitation: You cannot drag the weld mark leader base point to the back-side of a double-sided weld.
Example
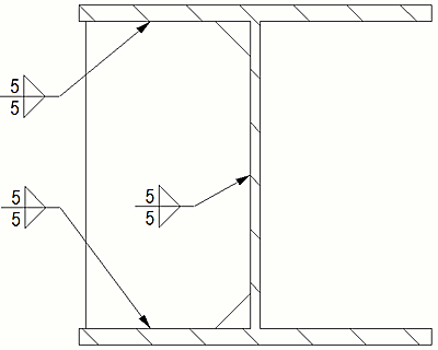
The first image below shows the welds in the model.
The second image shows the model weld marks in a drawing. The area within which the weld mark leader line associativity point can be dragged is indicated with dark green.
Merge weld marks
You can force Tekla Structures to use the same mark for identical welds in a drawing by merging the weld marks.
|
Description |
Example |
|---|---|
|
Original drawing |
|
|
Merged weld marks. |
|
Customize weld type symbols
Most of the weld type symbols are hard coded, but you can edit some of them in Symbol Editor.
The bottom seven symbols (symbols 20 - 26) in the Type list in model weld properties and drawing weld mark properties (see image below) are taken from the TS_Welds.sym file. You can edit any of these seven symbols in Symbol Editor to create a custom weld symbol. The rest of the weld symbols are hard coded. Note that the symbol in the Type list does not change when you update the symbol.
Melt through
Steep flanked single V butt
Steep flanked single bevel
butt
Edge
ISO Surfacing
Fold
Inclined
- Open Symbol Editor as administrator.
- Click and browse to the folder were you have the TS_Welds.sym file.
- Select the file and click OK.
- Modify the desired symbol.
When doing this, you need to keep the symbol in the same scale as the other symbols. If your symbol is too large to fit in the box, you can let it extend beyond the borders:
- Save the symbol by selecting .
For more information about Symbol Editor, click the Symbol Editor User's Guide link on the Tekla Structures PDF documentation page.
What if welds or weld marks are not visible in a drawing
If you cannot see model welds or weld marks in the drawing, check the following settings:
-
Check the settings related to weld and weld mark visibility under Common settings for all views on the View creation page in drawing properties. To do this, open the drawing properties by double-clicking the drawing background and clicking View creation in the options tree on the left:
-
Weld size limit: Filters welds and weld marks of the defined weld size and smaller out of all views in a drawing. This setting is available in single-part and assembly drawings.
-
Weld marks visible: Controls the visibility of model weld marks in assembly drawings. The options are:
- In one view: Tekla Structures automatically finds the most relevant view for showing the model weld marks. Every weld mark is shown in a drawing in one view only.
- In all views: Tekla Structures adds the model weld marks in all drawing views that contain the part with the weld.
-
- Check the weld mark visibility settings for the view and modify those if
necessary. To do this, double-click the view frame and click Weld mark in the options tree on the left:
- Check the model weld mark visibility checkboxes on the Content tab.
- Check the values for the following: Welds, Welds in sub-assemblies, Welds in hidden parts, Weld size limit.
- Check the line color settings on the Appearance tab.
You can use a standard color or a custom RGB color.
- Check the weld visibility settings for the view and modify those if necessary..
Double-click the view frame and click Weld in the options tree on the left:
- Check the values for the following: Welds, Welds in sub-assemblies, Weld size limit
- Check the line color settings on the Appearance tab.
You can use a standard color or a custom RGB color.
- Check the Custom presentation tab in weld and weld mark view properties.
- In drawing view properties, check that you have not set any view filters that prevent the welds or weld marks from showing. To do this, double-click the view frame and click Filter in the options tree on the left, and check if there are any active filters.
and
buttons to copy
values between the
button to switch
the linking on or off.
when
the values are linked. This means that if you change a value in
either of the columns, the corresponding value in the other column
also changes. 
and area
selection, or
. Then press down
next to weld
properties to show the properties in model weld marks. 
