Examples of cast unit drawings

Tekla Structures
Upraveno: 7 Bře 2025
2026
Tekla Structures

Examples of cast unit drawings

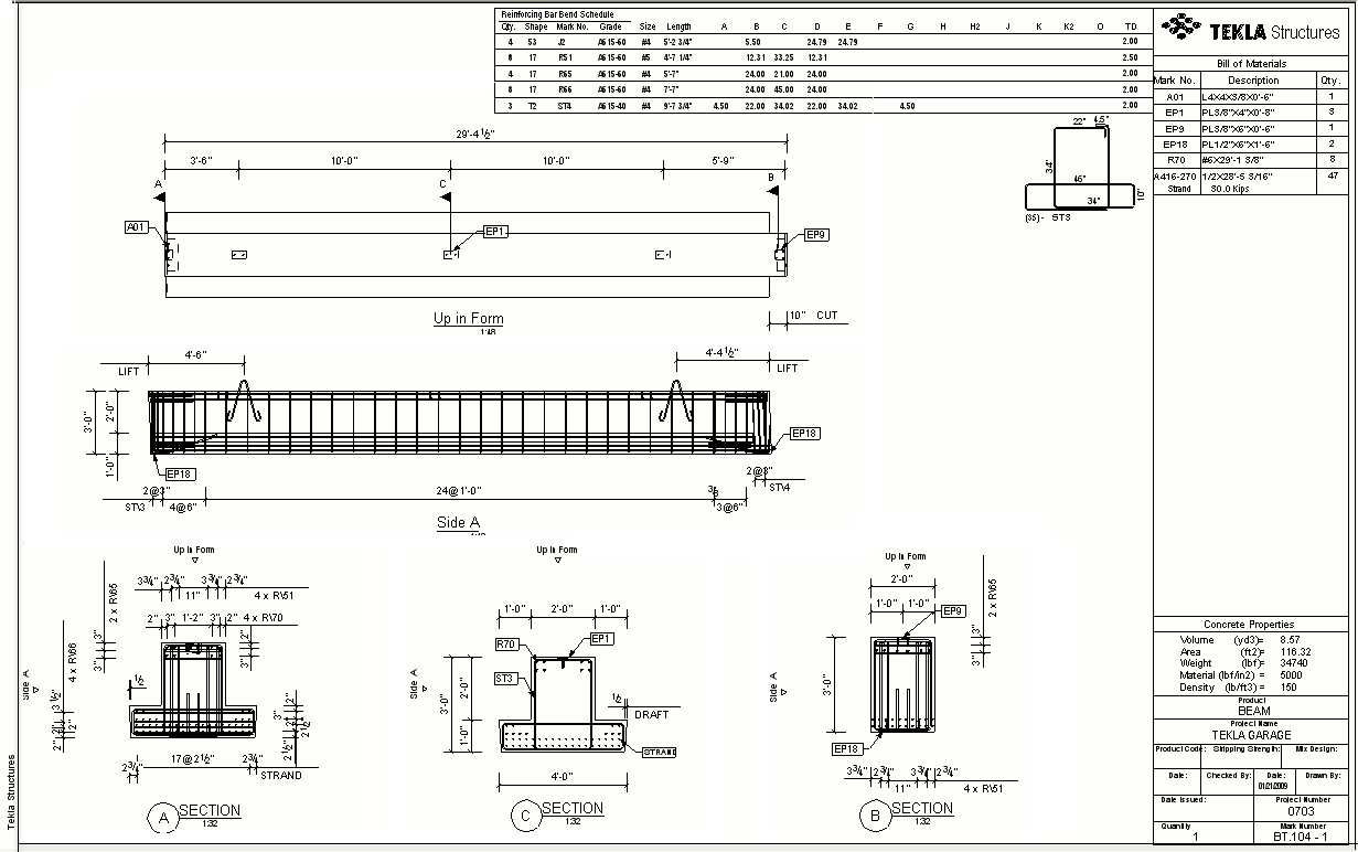
Cast unit drawings are dimensional, form work, or reinforcement drawings used in concrete design and construction. They show cast-in embeds, edge chamfers, and hard and soft insulation. Cast unit drawings that show cast-in-place concrete structures usually use large sheet sizes, for example, A1 or imperial standard size 24" x 36". Drawings that show precast structures usually use smaller sheet sizes, for example, A3 or imperial standard size 11" x 17".

You can only create cast unit drawings of concrete parts and cast-in embeds (steel parts or assemblies added to a cast unit). Cast unit drawings also show bolts and welds in steel parts. The volume and weight information of the cast unit remains accurate even if there are cuts inside the cast unit.

Click the links to find out more about creating cast unit drawings:

Quick start to Tekla Structures drawings

Create fabrication drawings

Create fabrication drawings using AI and cloud collections (Preview)

Create single-part, assembly, or cast unit drawings through Quick launch

Create single-part, assembly and cast unit drawings using saved settings in Master drawing catalog

Create drawings using rule sets or wizards in Master drawing catalog

Create AutoDrawings

For details about cast unit drawing properties, see Cast unit drawing properties

Examples of cast unit drawings

A combined form and reinforcing bar drawing of an inverted tee beam:

A combined form and reinforcing bar drawing of an exterior column with no corbels or plats for beams:

A combined form and reinforcing bar drawing of stairs with landings:

Bylo to užitečné?
Odeslat
Předchozí
Další